3295 River Exchange Drive
3295 River Exchange Drive
Description
River Exchange is a professional Class A office environment. This property provides quality, affordable office space with free space planning and tenant apps via website. Tenants will also enjoy access to on-site property management, maintenance and leasing. Amenities include common conference room, tenant center, ample surface parking, on-site security cameras, and 24-hour secure key card access. River Exchange is located within the Norcross/Sandy Springs area, with easy access to 400, 85 and Peachtree Industrial.
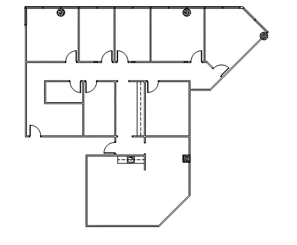
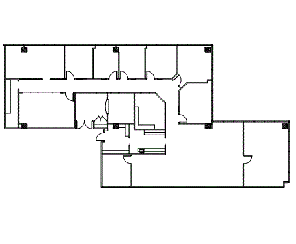
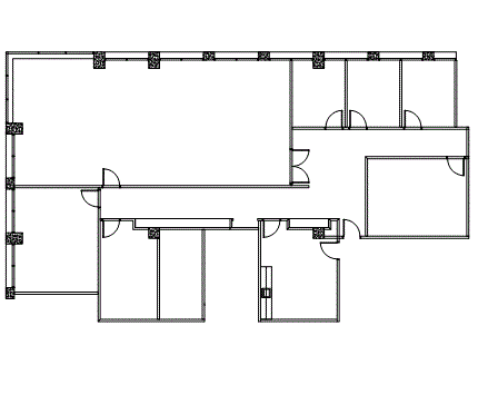
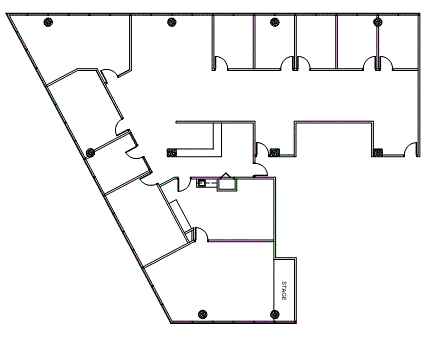
Floor Plans
- Rentable Square Feet 1,019
Description:
Reception Area, 2 Window Offices, 1 Interior Office, Open Area, Kitchen, Sink
- Rentable Square Feet 379
- Number of Offices 1
Description:
Window office includes shared waiting areas, conference rooms, huddle rooms, lounge, coffee bar, and WiFi.
- Rentable Square Feet 783
- Number of Offices 2
Description:
Reception, 1 window office, 1 interior office
- Rentable Square Feet 1,425
Description:
Reception, 2 window offices, open area
- Rentable Square Feet 446
- Number of Offices 1
Description:
Window office includes shared waiting areas, conference rooms, huddle rooms, lounge, coffee bar, and WiFi.
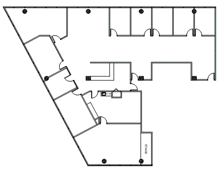
- Rentable Square Feet 4,981
- Number of Offices 12
Description:
Reception Area, 9 Window Offices, 1 Conference Room, 1 Bullpen, Open Area, Kitchen, Break Area, Sink, 1 Closets, Corner Location, 3 Entrances
- Rentable Square Feet 2,372
Description:
Reception, bull pen, 4 window offices, 1 interior office, and Kitchen
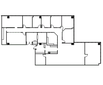
- Rentable Square Feet 3,643
Description:
Reception Area, 5 Window Offices, 6 Interior Offices, 1 Conference Room, Break Area, Sink, Work Area, File Or Storage Area, 1 Closets, 2 Entrances
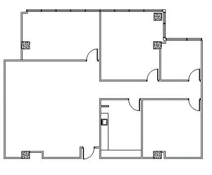
- Rentable Square Feet 759
- Number of Offices 2
Description:
Reception Area, 1 Window Office, File Or Storage Area, 1 Entrance
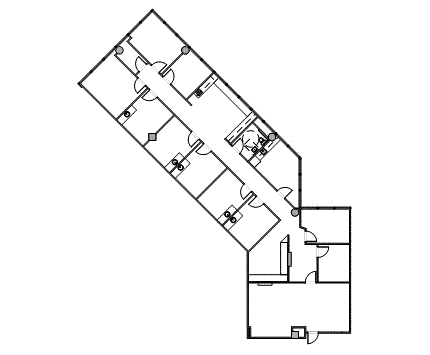
- Rentable Square Feet 3,817
Description:
Large Reception, Off of Elevator, 6 Floor-to-Ceiling Window Offices, 3 Interior Offices, Large Glass Wall Conference Room, Large Kitchen/Break Area, Storage Closet
- Rentable Square Feet 513
- Number of Offices 1
Description:
1 Window Office, Corner Location, 1 Entrance
- Rentable Square Feet 4,828
Description:
Reception Area, 13 Window Offices, 1 Conference Room, Open Area, Corner Location
- Rentable Square Feet 289
Description:
Window office includes shared waiting areas, conference rooms, huddle rooms, lounge, coffee bar, and WiFi.
- Rentable Square Feet 289
Description:
Window office includes shared waiting areas, conference rooms, huddle rooms, lounge, coffee bar, and WiFi.
- Rentable Square Feet 1,141
Description:
One window office, one interior office, open area.
Amenities
- Class A Building
- Ample Surface Parking
- 24-Hour Secure Key Card Access
- Security Cameras & Video Surveillance
- Common Area Conference Room
- Suites Available in a Wide Range of Sizes & Configurations
- 24 Hours Badge access
- Coffee Bar
- Conference Room
- Filtered Water
- Mailroom
- Mail Drop Boxes
- On-site Leasing
- On-site Maintenance
- On-site Management
- Outside Seating
- Parking : Complimentary
- Parking : Surface
- Vending Machine
- Signage : Monument Sign
- Lounge Space
- Vending Machines
- Internet Ready
- Training Room
- Huddle Room