1995 North Park Place

Atlanta, GA 30339

Property Size: 99,920 SqFt


1995 North Park Place - Eric Piazza
MEET THE AGENT
Eric Piazza
(404) 688-RENT (7368)
1995 North Park Place - chat icon
Available Suites ()
(Updated 11/11/2025 )
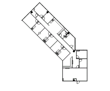
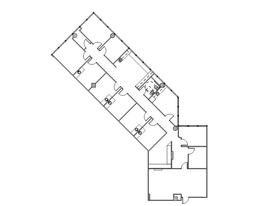
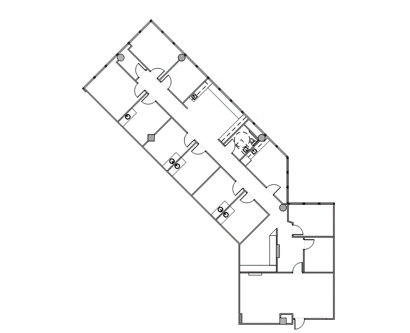
Suite: 310.WS 435 Virtual Office | SqFt: 5,866
  • Reception Area
  • 12 Window Offices
  • 9 Interior Offices
  • 2 Conference Rooms
  • 1 Bullpen
  • Open Area
  • Kitchen
  • Break Area
  • Sink
  • Corner Location
  • 2 Entrances
1995 North Park Place - 310.WS
Suite: 550 435 Virtual Office | SqFt: 3,454
  • Corner suite
  • private bathroom
  • tremendous potential for medical tenant or use that requires substantial plumbing.
1995 North Park Place - 550
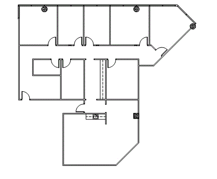
Suite: 325 435 Virtual Office | SqFt: 3,062
  • Reception Area
  • 4 Window Offices
  • 3 Interior Offices
  • 1 Conference Room
  • Open Area
  • Break Area
  • Sink
  • Work Area
  • 1 Entrance
1995 North Park Place - 325
Suite: 450 435 Virtual Office | SqFt: 2,338
  • Reception Area
  • 4 Window Offices
  • 2 Interior Offices
  • Kitchen
  • Break Area
  • Sink
  • Work Area
1995 North Park Place - 450
Suite: 565 435 Virtual Office | SqFt: 1,741
  • Bullpen
  • conference room
  • three window offices
1995 North Park Place - 565
Suite: 425 435 Virtual Office | SqFt: 1,463
  • Reception
  • 2 window office
  • 2 interior office
1995 North Park Place - 425
Suite: 435 435 Virtual Office | SqFt: 1,290
  • reception
  • 4 exterior window offices
1995 North Park Place - 435
Suite: 400A 435 Virtual Office | SqFt: 583
  • Private reception area and Fully Furnished interior office. Includes shared conference rooms
  • huddle rooms
  • lounge
  • coffee bar
  • and WiFi.
1995 North Park Place - 400A
Suite: 400B 435 Virtual Office | SqFt: 583
  • Private reception area and interior office. Includes shared conference rooms
  • huddle rooms
  • lounge
  • coffee bar
  • and WiFi.
1995 North Park Place - 400B
Suite: 400D 435 Virtual Office | SqFt: 565
  • Private reception area and interior office. Includes shared conference rooms
  • huddle rooms
  • lounge
  • coffee bar
  • and WiFi.
1995 North Park Place - 400D
Suite: 518 435 Virtual Office | SqFt: 468
  • Private reception area and window office. Includes shared conference rooms
  • huddle rooms
  • lounge
  • coffee bar
  • and WiFi.
1995 North Park Place - 518
Suite: 400L 435 Virtual Office | SqFt: 404
  • Window office includes shared waiting areas
  • conference rooms
  • huddle rooms
  • lounge
  • coffee bar
  • and WiFi.
1995 North Park Place - 400L
Suite: 400K 435 Virtual Office | SqFt: 401
  • Window office includes shared waiting areas
  • conference rooms
  • huddle rooms
  • lounge
  • coffee bar
  • and WiFi.
1995 North Park Place - 400K
Suite: 310A 435 Virtual Office | Private Office
  • Leasing Office
1995 North Park Place - 310A
Suite: 310D 435 Virtual Office | Private Office
  • Window office includes shared waiting areas
  • conference rooms
  • huddle rooms
  • lounge
  • coffee bar
  • Wi-Fi.
1995 North Park Place - 310D
Suite: 310T 435 Virtual Office | Private Office
  • Interior office includes shared waiting areas
  • conference rooms
  • huddle rooms
  • lounge
  • coffee bar
  • and WiFi.
1995 North Park Place - 310T
Suite: 310G 435 Virtual Office | Private Office
  • Window office includes shared waiting areas
  • conference rooms
  • huddle rooms
  • lounge
  • coffee bar
  • and WiFi.
1995 North Park Place - 310G
Suite: 507 435 Virtual Office | Private Office
  • Window office includes shared waiting areas
  • conference rooms
  • huddle rooms
  • lounge
  • coffee bar
  • and WiFi.
1995 North Park Place - 507
Suite: 310O 435 Virtual Office | Private Office
  • Window office includes shared waiting areas
  • conference rooms
  • huddle rooms
  • lounge
  • coffee bar
  • and WiFi.
1995 North Park Place - 310O
Suite: 310B 435 Virtual Office | Private Office
  • Management Office. Interior executive office with wall of glass. includes shared waiting areas
  • conference rooms
  • huddle rooms
  • lounge
  • coffee bar
  • and WiFi.
1995 North Park Place - 310B
Suite: 310V 435 Virtual Office | Private Office
  • Interior office includes shared waiting areas
  • conference rooms
  • huddle rooms
  • lounge
  • coffee bar
  • and WiFi.
1995 North Park Place - 310V
Suite: 501 435 Virtual Office | Private Office
  • Interior office includes shared waiting areas
  • conference rooms
  • huddle rooms
  • lounge
  • coffee bar
  • and WiFi.
1995 North Park Place - 501
Suite: 503 435 Virtual Office | Private Office
  • Interior office includes shared waiting areas
  • conference rooms
  • huddle rooms
  • lounge
  • coffee bar
  • and WiFi.
1995 North Park Place - 503
Storage: P-1M 435 Virtual Office | Private Office
  • storage
1995 North Park Place - P-1M
more info  
1995 North Park Place - Workstyle Logo
Suite: 516 435 Virtual Office | Private Office
  • Interior office includes shared waiting areas
  • conference rooms
  • huddle rooms
  • lounge
  • coffee bar
  • and WiFi.
1995 North Park Place - 516
Suite: 517 435 Virtual Office | Private Office
  • Interior office includes shared waiting areas
  • conference rooms
  • huddle rooms
  • lounge
  • coffee bar
  • and WiFi.
1995 North Park Place - 517
Virtual Office | Available
  • Need a more flexible option?
    Learn about our virtual office program
more info  
Workstyle Logo
Request a Quote

Request a Quote

By clicking “send” I agree that Boxer Property can contact me by email or phone, including for marketing purposes. I have read and understand the privacy policy.

Book a Tour Today

By clicking “send” I agree that Boxer Property can contact me by email or phone, including for marketing purposes. I have read and understand the privacy policy.

Map

Property Description

North Park Place is a professional Class A office environment. This property provides quality, affordable office space with free space planning. Tenants will also enjoy access to on-site property management, leasing, ample surface and garage parking with covered walkways, on-site security and 24-hour secure key card access. North Park Place is located in Northwest Atlanta, near Cobb Galleria Centre and Dobbin’s Air Force Base with easy access to I-75 and I-285.

Amenities

Multi-level parking garage

24/7 tenant access

On-site security

Loading docks

24 Hour Badge Access

Cafe - Deli

Conference Room

Coffee Bar

Convenience Store

Huddle Room

Lounge space

Mailroom

Mail Drop Boxes

On-site Maintenance

On-site Leasing

On-site Management

Parking : Complimentary

Parking : Surface

Parking : covered

Parking : Garage

Vending Machine

Filtered Water

Signage : Monument Sign

Training Room

Internet Ready

Compare listings

Compare
Skip to content