4241 E Piedras Dr
4241 E Piedras Dr
Description
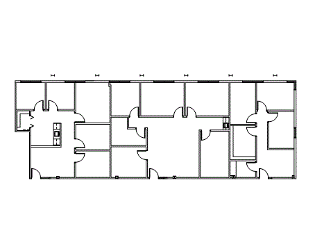
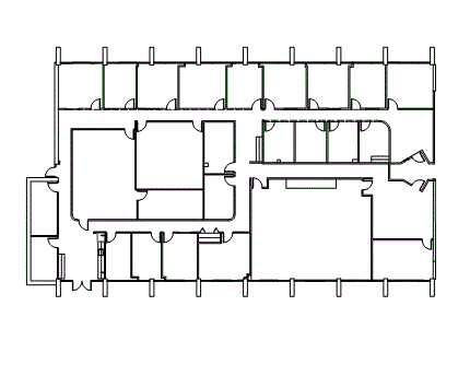
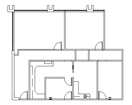
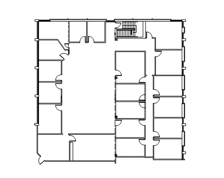
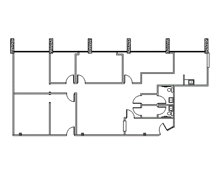
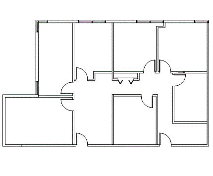
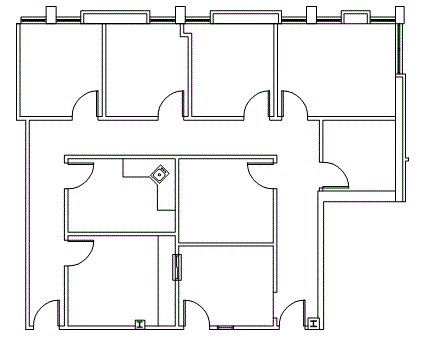
Floor Plans
- Rentable Square Feet 548
- Number of Offices 2
Description:
Reception Area, 1 Window Office, File Or Storage Area, 1 Entrance
- Rentable Square Feet 1,122
- Number of Offices 2
Description:
Reception Area, 1 Window Office, Kitchen, Break Area, Sink, Work Area, 1 Entrance
- Rentable Square Feet 1,670
- Number of Offices 7
Description:
Reception Area, 2 Window Offices, 3 Interior Offices, Kitchen, Break Area, Sink, 1 Closets, 3 Entrances
- Rentable Square Feet 999
- Number of Offices 3
Description:
Reception Area, 1 Window Office, 1 Interior Office, Break Area, Sink, 1 Entrance
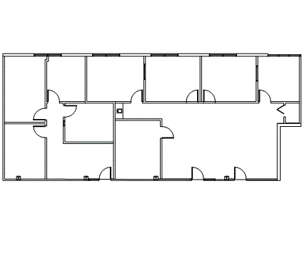
- Rentable Square Feet 3,340
- Number of Offices 8
Description:
Reception Area, 4 Window Offices, 1 Interior Office, 1 Conference Room, Kitchen, Break Area, Sink, Work Area, 1 Closets, Corner Location, 2 Entrances
- Rentable Square Feet 1,038
- Number of Offices 5
Description:
Reception Area, 2 Window Offices, 2 Interior Offices, File Or Storage Area, 1 Entrance
- Rentable Square Feet 1,669
- Number of Offices 6
Description:
Reception Area, 2 Window Offices, 2 Interior Offices, 1 Conference Room, Break Area, Sink, File Or Storage Area, 2 Closets, 1 Entrance
- Rentable Square Feet 1,282
- Number of Offices 5
Description:
Reception Area, 2 Window Offices, 2 Interior Offices, Work Area, 2 Entrances
- Rentable Square Feet 1,757
- Number of Offices 5
Description:
Reception Area, 3 Window Offices, 1 Interior Office, Work Area, 1 Entrance
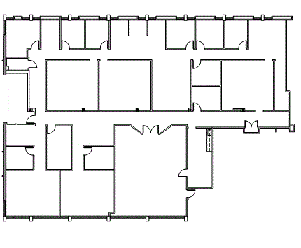
- Rentable Square Feet 5,946
- Number of Offices 19
Description:
Reception Area, 11 Window Offices, 2 Interior Offices, 2 Conference Rooms, 1 Bullpen, Kitchen, Break Area, Sink, Work Area, File Or Storage Area, 1 Closets, Corner Location, 4 Entrances
- Rentable Square Feet 3,050
- Number of Offices 2
Description:
Reception Area, 1 Window Office, 1 Bullpen, Open Area, Break Area, Sink, 1 Closets, 2 Entrances
- Rentable Square Feet 543
- Number of Offices 2
Description:
Reception Area, 1 Window Office, File Or Storage Area, 1 Entrance
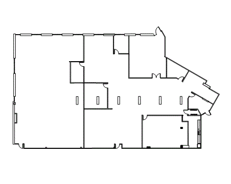
- Rentable Square Feet 2,176
- Number of Offices 7
Description:
Reception Area, 3 Window Offices, 1 Interior Office, 1 Bullpen, 3 Entrances
- Rentable Square Feet 2,945
- Number of Offices 6
Description:
Reception Area, 1 Window Office, 3 Interior Offices, 1 Bullpen, Open Area, Kitchen, Sink, File Or Storage Area, 2 Entrances
- Rentable Square Feet 621
- Number of Offices 2
Description:
Reception Area, 1 Window Office, File Or Storage Area, 1 Entrance
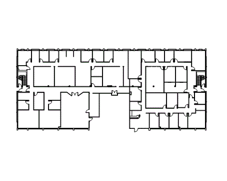
- Rentable Square Feet 6,730
- Number of Offices 20
Description:
1 Reception Area, 11 Window Offices, 5 Interior Offices, 2 Conference Rooms, 1 Bullpen, Kitchen, Sink, Work Area, File Or Storage Area, 1 Closets, Corner Location, 5 Entrances
- Rentable Square Feet 2,037
- Number of Offices 7
Description:
Reception Area, 2 Window Offices, 3 Interior Offices, 1 Conference Room, Open Area, Kitchen, Break Area, Sink, 1 Entrance
Amenities
- Full-service café for on-site dining.(Located at 4400 NW Loop - Chisholm Bldg)
- State-of-the-art
- 24 Hour Badge Access
- Cafe / Deli
- Coffee Bar
- Conference Room
- Internet Ready
- On-site Leasing
- On-site Maintenance
- On-site Management
- Outside Seating
- Parking : Complimentary
- Parking : Surface
- Signage : Monument Sign
- Vending Machines
- Ample Surface Parking
- Drop Boxes
- Surrounding retail options, diverse restaurants, and abundant shopping options