4203 Woodcock Dr
4203 Woodcock Dr
Description
Floor Plans
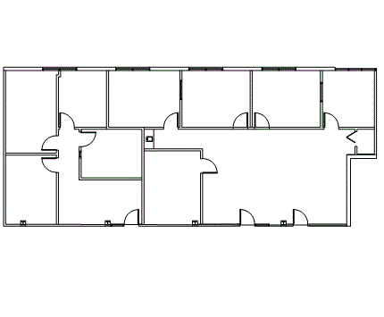
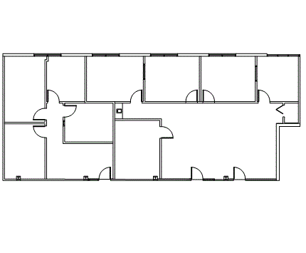
- Rentable Square Feet 3,902
- Number of Offices 11
Description:
Reception Area, 5 Window Offices, 4 Interior Offices, Open Area, 1 Closets, 3 Entrances
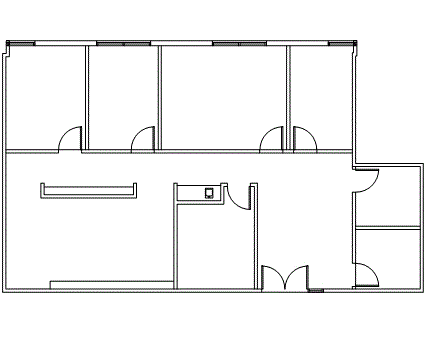
- Rentable Square Feet 3,760
- Number of Offices 5
Description:
Reception Area, 3 Window Offices, 1 Conference Room, Large Open Area, Kitchen, Break Area, Sink, 2 Closets, 2 Entrances
- Rentable Square Feet 1,937
- Number of Offices 5
Description:
Reception Area, 2 Window Offices, 2 Interior Offices, Open Area, Sink, 1 Entrance
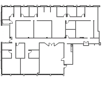
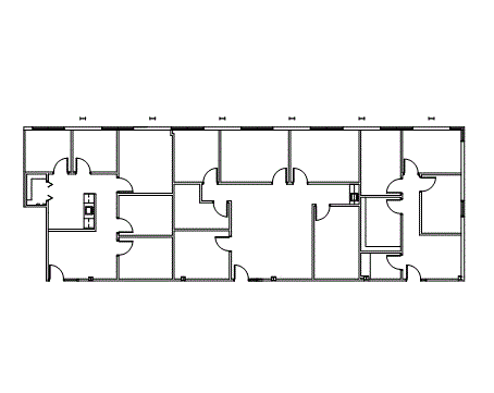
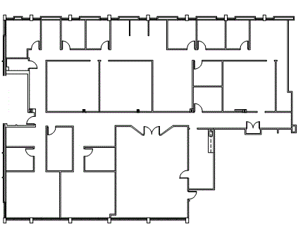
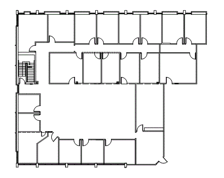
- Rentable Square Feet 8,024
- Number of Offices 23
Description:
Reception Area, 10 Window Offices, 9 Interior Offices, 1 Conference Room, 1 Bullpen, Open Area, Kitchen, Break Area, Sink, Work Area, File Or Storage Area, Corner Location, 3 Entrances
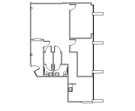
- Rentable Square Feet 822
- Number of Offices 2
Description:
Reception Area, 1 Window Office, Break Area, Sink, File Or Storage Area, 2 Entrances
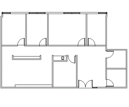
- Rentable Square Feet 1,820
- Number of Offices 7
Description:
Reception Area, 4 Window Offices, 2 Interior Offices, Break Area, Sink, 2 Entrances
- Rentable Square Feet 1,042
- Number of Offices 5
Description:
Reception Area, 2 Window Offices, 2 Interior Offices, Break Area, Sink, 1 Closets, 1 Entrance
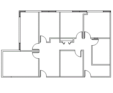
- Rentable Square Feet 544
- Number of Offices 3
Description:
Reception Area, 1 Window Office, 1 Interior Office, 1 Entrance
- Rentable Square Feet 757
- Number of Offices 5
Description:
Reception Area, 2 Window Offices, 2 Interior Offices, 1 Closets, 1 Entrance
- Rentable Square Feet 2,702
- Number of Offices 11
Description:
Reception Area, 6 Window Offices, 4 Interior Offices, 1 Closets, 2 Entrances
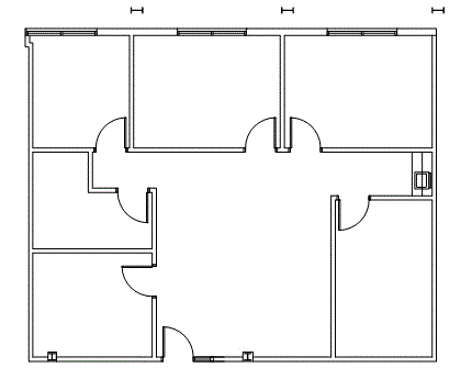
- Rentable Square Feet 443
- Number of Offices 3
Description:
Reception Area, 1 Window Office, 1 Interior Office, File Or Storage Area, 1 Entrance
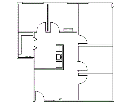
- Rentable Square Feet 811
- Number of Offices 5
Description:
Reception Area, 2 Window Offices, 2 Interior Offices, Kitchen, Sink, File Or Storage Area, 1 Entrance
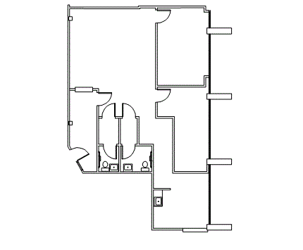
- Rentable Square Feet 2,053
- Number of Offices 6
Description:
Reception Area, 3 Window Offices, 1 Interior Office, 1 Conference Room, Kitchen, Break Area, Sink, 2 Entrances
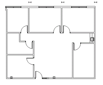
- Rentable Square Feet 1,105
- Number of Offices 6
Description:
Reception Area, 3 Window Offices, 2 Interior Offices, Break Area, Sink, 1 Closets, 1 Entrance
- Rentable Square Feet 1,472
- Number of Offices 8
Description:
Reception Area, 3 Window Offices, 3 Interior Offices, 1 Bullpen, Open Area, Sink, 1 Entrance
- Rentable Square Feet 1,735
- Number of Offices 8
Description:
Reception Area, 4 Window Offices, 3 Interior Offices, Work Area, 1 Closets, 2 Entrances
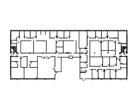
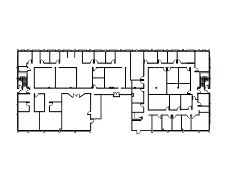
- Rentable Square Feet 15,306
- Number of Offices 60
Description:
Reception Area, 30 Window Offices, 27 Interior Offices, 2 Conference Rooms, Open Area, Kitchen, Break Area, Sink, File Or Storage Area, 4 Closets
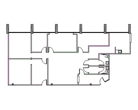
- Rentable Square Feet 5,697
- Number of Offices 10
Description:
Reception Area, 4 Window Offices, 2 Interior Offices, 1 Conference Room, 2 Bullpens, Open Area, 2 Closets, Corner Location, 1 Entrance
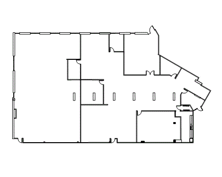
- Rentable Square Feet 8,016
- Number of Offices 29
Description:
Reception Area, 14 Window Offices, 11 Interior Offices, 2 Conference Rooms, Work Area, Corner Location, 3 Entrances
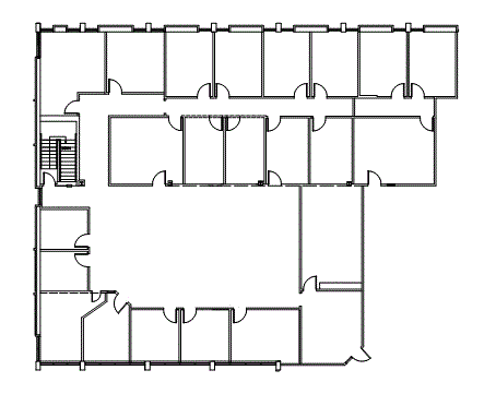
- Rentable Square Feet 15,818
- Number of Offices 36
Description:
Reception Area, 18 Window Offices, 13 Interior Offices, 3 Conference Rooms, 1 Bullpen, Open Area, Kitchen, Break Area, Sink, 2 Closets, 1 Entrance
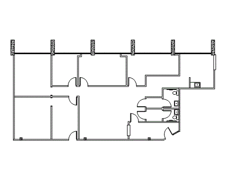
- Rentable Square Feet 3,388
- Number of Offices 12
Description:
Reception Area, 8 Window Offices, 3 Interior Offices, 1 Conference Room, Open Area, Kitchen, Break Area, Sink, File Or Storage Area, 1 Closets, Corner Location, 2 Entrances
Amenities
- Full-service café for on-site dining (Located at 4400 NW Loop - Chisholm Bldg.)
- State-of-the-art
- 24 Hour Badge Access
- Cafe / Deli
- Coffee Bar
- Conference Room
- Internet Ready
- On-site Leasing
- On-site Maintenance
- On-site Management
- Ample Surface Parking
- Drop-Boxes
- Signage : Monument Sign
- Vending Machines
- Surrounding retail options, diverse restaurants, and abundant shopping options
- Parking : Complimentary
- Parking : Surface