4100 E Piedras Dr
4100 E Piedras Dr
Description
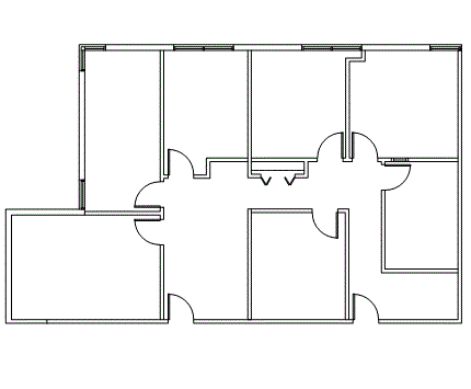
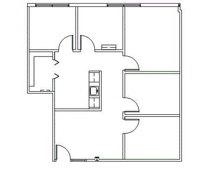
Floor Plans
- Rentable Square Feet 631
- Number of Offices 3
Description:
Reception Area, 2 Window Offices, 1 Entrance
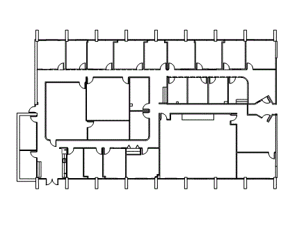
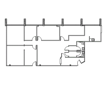
- Rentable Square Feet 4,597
- Number of Offices 18
Description:
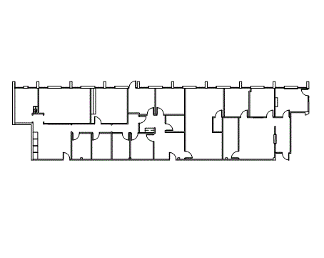
Reception Area 3, 7 Window Offices, 7 Interior Offices, 1 Conference Room, Open Area, Sink, Work Area, 1 Closets, Corner Location, 3 Entrances
- Rentable Square Feet 1,197
- Number of Offices 5
Description:
Reception Area, 3 Window Offices, 1 Interior Office, File Or Storage Area, 1 Closets, 2 Entrances
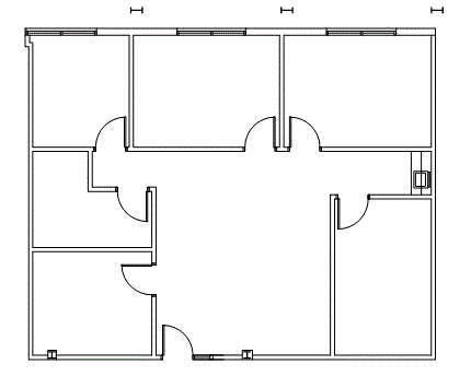
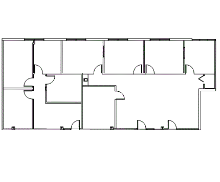
- Rentable Square Feet 3,400
- Number of Offices 10
Description:
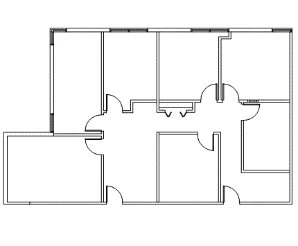
Reception Area 2, 2 Window Offices, 4 Interior Offices, 1 Conference Room, 1 Bullpen, Break Area, Sink, Work Area, 2 Entrances
- Rentable Square Feet 651
- Number of Offices 3
Description:
Reception Area, 2 Window Offices, File Or Storage Area, 1 Entrance
- Rentable Square Feet 510
- Number of Offices 3
Description:
Reception Area, 1 Window Office, 1 Interior Office, 1 Entrance
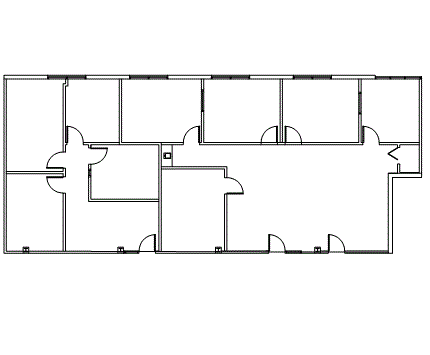
- Rentable Square Feet 794
- Number of Offices 4
Description:
Reception Area, 1 Interior Office, 2 Bullpens, 1 Closets, 1 Entrance
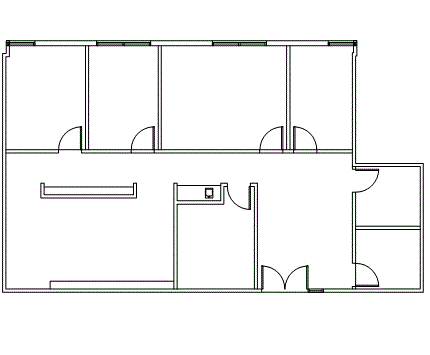
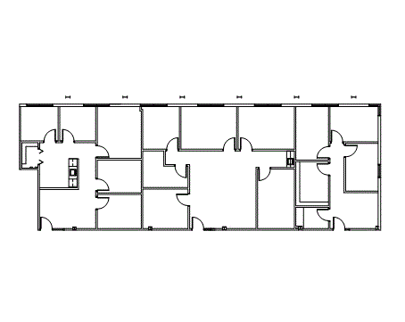
- Rentable Square Feet 1,588
- Number of Offices 9
Description:
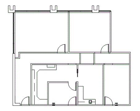
Reception Area, 5 Window Offices, 2 Interior Offices, 1 Conference Room, File Or Storage Area, 1 Closets, 1 Entrance
- Rentable Square Feet 546
- Number of Offices 2
Description:
Reception Area, 1 Window Office, 1 Closets, 1 Entrance
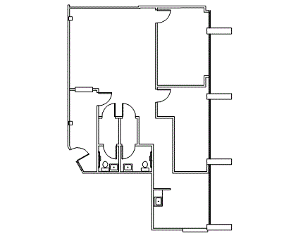
- Rentable Square Feet 2,219
- Number of Offices 7
Description:
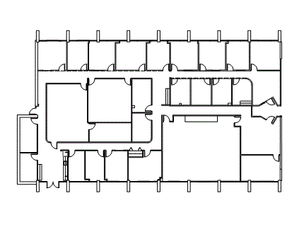
1 Reception Area, 5 Window Offices, 1 Interior Office, Work Area, Corner Location, 2 Entrances
Amenities
- Full-service cafe for on-site dining. (Located at 4400 NW Loop - Chisholm Bldg.) State-of-the-art
- conference rooms
- 24 Hour Badge Access
- Cafe / Deli
- Coffee Bar
- Internet Ready
- On-site Leasing
- On-site Maintenance
- On-site Management
- Ample Surface Parking
- Parking : Complimentary
- Parking : Surface
- Signage : Monument Sign
- Vending Machines
- Drop Boxes
- Surrounding retail options, diverse restaurants, and abundant shopping options
- Mail Drop Boxes