4414 Centerview
4414 Centerview
Description
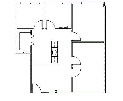
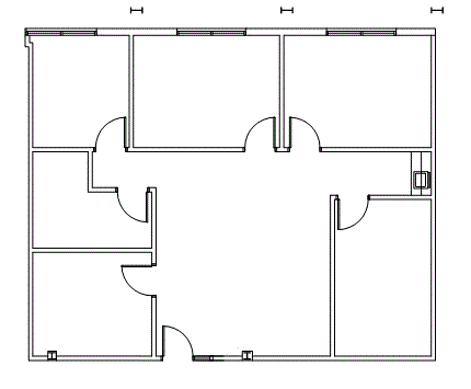
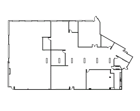
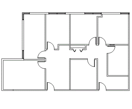
Floor Plans
- Rentable Square Feet 3,972
- Rentable Square Feet 380
- Number of Offices 2
Description:
Reception Area, 1 Window Office
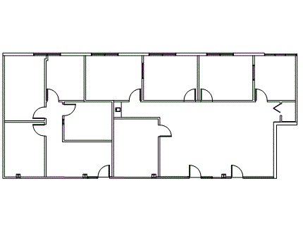
- Rentable Square Feet 865
- Number of Offices 4
Description:
Reception Area, 2 Window Offices, 1 Interior Office, Break Area, Sink, 1 Entrance
- Rentable Square Feet 417
- Number of Offices 2
Description:
Reception Area, 1 Window Office, 1 Entrance
- Rentable Square Feet 402
- Number of Offices 2
Description:
Reception Area, 1 Window Office, File Or Storage Area, 1 Entrance
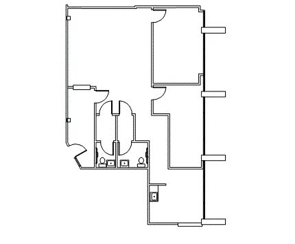
- Rentable Square Feet 2,967
- Number of Offices 10
Description:
Reception Area 2, 5 Window Offices, 2 Interior Offices, 1 Conference Room, 2 Closets, 2 Entrances
- Rentable Square Feet 637
- Number of Offices 2
Description:
Reception Area, 1 Window Office, Break Area, Sink, 1 Closets, 1 Entrance
- Rentable Square Feet 368
- Number of Offices 2
Description:
Reception Area, 1 Window Office, 1 Closets, 1 Entrance
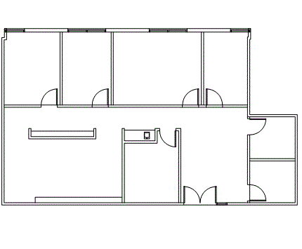
- Rentable Square Feet 944
- Number of Offices 4
Description:
Reception Area, 2 Window Offices, 1 Interior Office, File Or Storage Area, 1 Entrance
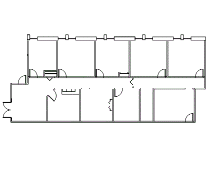
- Rentable Square Feet 1,701
- Number of Offices 7
Description:
Reception Area 2, 3 Window Offices, 2 Interior Offices, Break Area, Sink, File Or Storage Area, 2 Entrances
- Rentable Square Feet 430
- Number of Offices 2
Description:
Reception Area, 1 Window Office, 1 Entrance
Amenities
- Full-service café for on-site dining.(Located at 4400 NW Loop - Chisholm Bldg.)
- State-of-the-art conference rooms
- Ample Surface Parking
- 24 Hour Badge Access
- Cafe / Deli
- Coffee Bar
- Internet Ready
- On-site Leasing
- On-site Maintenance
- On-site Management
- Parking : Complimentary
- Parking : Surface
- Signage : Monument Sign
- Vending Machines
- Drop Boxes
- Surrounding retail options, diverse restaurants, and abundant shopping options.