13333 Midway
Description
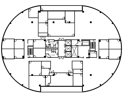
13333 Midway Rd is a standalone bank that includes 3,167 square feet of office space for lease in Dallas, TX. The space includes 1 drive-up ATM, 3 drive-thru teller lanes, 1 drive-up commercial lane, and 15 outdoor parking spots for customers. The space also includes 4 window offices, a vault, and a break area. 13333 Midway Rd is also part of an 11 building campus called The Centre. The campus includes a beautiful spring fed lake in a park setting. You\'ll have easy access to I-635 and the Dallas North Tollway as they are just minutes away. There are many shops and restaurants in the vicinity such as Starbucks, In-N-Out Burger, Walmart, Target, and the Dallas Galleria Shopping Center. Our leasing agents and experts will be happy to assist you with any inquiries you may have about office space for lease in Dallas, TX.
Amenities
- 24 Hour Badge Access
- Coffee Bar
- Conference Room
- Huddle Room
- Internet Ready
- Mailroom
- Mail Drop Boxes
- On-site Bank
- On-site Leasing
- On-site Maintenance
- On-site Management
- Parking : Surface
- Parking : Secured Gated
- Parking : Complimentary
- Parking : Covered
- Parking : Garage
- Fitness Center
- Signage : Monument Sign
- Training Room
- Vending Machines
- Cafe/Deli
- Convenience Store
- Filterd Water
- Loading Dock
- Lounge Space
- Outside Seating
Similar Listings
1910 Pacific Ave, Dallas, TX 75201, USA
1910 Pacific Ave
1910 Pacific Ave, Dallas, TX 75201, USA
91 Available Units
No units available for the selected size range.
Suite 14020
Window office includes shared waiting areas, conference rooms, huddle rooms, lounge, coffee bar, and WiFi.
- Square Feet 226
- Number of Offices 1
Suite 14115
Interior office includes shared waiting areas, conference rooms, huddle rooms, lounge, coffee bar, and WiFi.
- Square Feet 265
- Number of Offices 1
Suite 14120
Interior office includes shared waiting areas, conference rooms, huddle rooms, lounge, coffee bar, and WiFi.
- Square Feet 265
- Number of Offices 1
Suite 17090
Window office includes shared waiting areas, conference rooms, huddle rooms, lounge, coffee bar, and WiFi.
- Square Feet 268
- Number of Offices 1
Suite 17100
Window office includes shared waiting areas, conference rooms, huddle rooms, lounge, coffee bar, and WiFi.
- Square Feet 285
- Number of Offices 1
Suite 14205
Interior office includes shared waiting areas, conference rooms, huddle rooms, lounge, coffee bar, and WiFi.
- Square Feet 287
- Number of Offices 1
Suite 17210
Interior office includes shared waiting areas, conference rooms, huddle rooms, lounge, coffee bar, and WiFi. Glass Sidelight, WORKSTYLE
- Square Feet 288
- Number of Offices 1
Suite 17250
Interior office includes shared waiting areas, conference rooms, huddle rooms, lounge, coffee bar, and WiFi. 1 Glass Sidelight, Corner Location, WORKSTYLE
- Square Feet 289
- Number of Offices 1
Suite 14125
Interior office includes shared waiting areas, conference rooms, huddle rooms, lounge, coffee bar, and WiFi.
- Square Feet 295
- Number of Offices 1
Suite 7014
1 Window Office, 1 Entrance
- Square Feet 297
- Number of Offices 1
Suite 7020
1 Window Office, 1 Entrance
- Square Feet 297
- Number of Offices 1
Suite 7053
- Square Feet 299
- Number of Offices 1
Suite 17280
Interior office includes shared waiting areas, conference rooms, huddle rooms, lounge, coffee bar, and WiFi. 1 Glass Sidelight, WORKSTYLE
- Square Feet 299
- Number of Offices 1
Suite 5080
- Square Feet 299
- Number of Offices 1
Suite 7054
- Square Feet 304
- Number of Offices 1
Suite 17200
Interior office includes shared waiting areas, conference rooms, huddle rooms, lounge, coffee bar, and WiFi. Glass Sidelight, WORKSTYLE
- Square Feet 306
- Number of Offices 1
Suite 17227
Fully furnished & decorated interior office. Includes shared waiting areas, conference rooms, huddle rooms, lounge, coffee bar, and WiFi. 1 Sidelight, WORKSTYLE
- Square Feet 320
Suite 17221
Window office includes shared waiting areas, conference rooms, huddle rooms, lounge, coffee bar, and WiFi. WORKSTYLE
- Square Feet 332
Suite 7052
- Square Feet 336
- Number of Offices 1
Suite 14235
Window office includes shared waiting areas, conference rooms, huddle rooms, lounge, coffee bar, and WiFi.
- Square Feet 338
- Number of Offices 1
Suite 17233
Interior office includes shared waiting areas, conference rooms, huddle rooms, lounge, coffee bar, and WiFi. 1 Glass Wall
- Square Feet 385
Suite 14225
Window office includes shared waiting areas, conference rooms, huddle rooms, lounge, coffee bar, and WiFi.
- Square Feet 385
- Number of Offices 1
Suite 17216
Interior office includes shared waiting areas, conference rooms, huddle rooms, lounge, coffee bar, and WiFi. Glass Sidelight, WORKSTYLE
- Square Feet 389
Suite 7050
- Square Feet 466
- Number of Offices 1
Suite 5020
Reception Area, 1 Window Office, 1 Interior Office
- Square Feet 515
- Number of Offices 2
Suite 6005
Available July 1, 2020.
Reception Area, 1 Window Office
- Square Feet 517
- Number of Offices 1
Suite 7028
- Square Feet 539
- Number of Offices 1
Suite 7040
- Square Feet 567
- Number of Offices 1
Suite 7024
- Square Feet 587
- Number of Offices 1
Suite 16100
- Square Feet 597
- Number of Offices 1
Suite 6070
Reception Area, 2 Window Offices, Corner Location
- Square Feet 678
- Number of Offices 2
Suite 16600
- Square Feet 681
- Number of Offices 3
Suite 15800
Reception with two window offices.
- Square Feet 697
- Number of Offices 2
Suite 15650
Corner office with reception, 2 Window Offices.
- Square Feet 730
- Number of Offices 2
Suite 6090
- Square Feet 743
- Number of Offices 1
Suite 12065
Reception Area, 2 Window Offices
- Square Feet 764
- Number of Offices 2
Suite 2020
Deli space available
- Square Feet 767
Suite 5095
Reception Area, 1 Window Office, 1 Interior Office, Work Area
- Square Feet 784
- Number of Offices 2
Suite 11700
- Square Feet 833
- Number of Offices 3
Suite 5010
Reception Area, 2 Window Offices, Open Area, 1 Closets
- Square Feet 842
- Number of Offices 2
Suite 15950
Reception Area, 2 Interior Offices
- Square Feet 860
- Number of Offices 1
Suite 16650
- Square Feet 862
- Number of Offices 3
Suite 5000
Reception Area, 2 Window Offices, 1 Interior Office, Work Area
- Square Feet 938
- Number of Offices 3
Suite 6055
- Square Feet 966
- Number of Offices 3
Suite 12055
Reception Area, 2 Interior Offices, Work Area
- Square Feet 983
- Number of Offices 2
Suite 11600
Reception Area, 2 Window Offices, 1 Bullpen
- Square Feet 983
- Number of Offices 3
Suite 13400
Reception Area, 3 Window Offices, 1 Interior Office, 1 Entrance
- Square Feet 997
- Number of Offices 4
Suite 9550
- Square Feet 1,079
- Number of Offices 4
Suite 10800
Herculite Glass Entry, Stained Concrete Reception Area, 3 Interior Offices, Kitchen, Sink, 2 Entrances
- Square Feet 1,133
- Number of Offices 3
Suite 15200
Reception Area, 3 Window Offices, 1 Conference Room, Open Area, 1 Entrance
- Square Feet 1,141
- Number of Offices 4
Suite 11800
Reception Area, 2 Window Offices, 3 Interior Offices
- Square Feet 1,268
- Number of Offices 5
Suite 5055
Reception Area, 2 Window Offices, 1 Interior Office, Work Area
- Square Feet 1,303
- Number of Offices 3
Suite 8060
Reception Area, 3 Window Offices, 1 Bullpen, Open Area
- Square Feet 1,329
- Number of Offices 4
Suite 12060
Reception Area, 2 Window Offices, 2 Interior Offices, Open Area, File Or Storage Area
- Square Feet 1,421
- Number of Offices 4
Suite 8040
Herculite Glass Door, Reception Area, 3 Window Offices, 1 Conference Room
- Square Feet 1,524
- Number of Offices 4
Suite 8035
Herculite Glass Door, Stained Concrete Reception Area, 3 Window Offices, 1 Bullpen
- Square Feet 1,655
- Number of Offices 4
Suite 8065
Reception Area, 4 Window Offices, 1 Interior Office, Open Area, Corner Location
- Square Feet 1,682
- Number of Offices 5
Suite 8000
Herculite Double Door Entry Reception Area, 2 Window Offices, 1 Interior Office, 1 Conference Room, 1 Bullpen, Open Area
- Square Feet 1,689
- Number of Offices 5
Suite 14080
4 Window office, Bullpen, Includes shared waiting areas, conference rooms, huddle rooms, lounge, coffee bar, and WiFi.
- Square Feet 1,770
- Number of Offices 5
Suite 13200
Reception Area, 4 Window Offices, 1 Interior Office, 1 Break room, 1 Conference Room, 1 Entrance
- Square Feet 1,804
- Number of Offices 3
Suite 18850
- Square Feet 1,856
- Number of Offices 6
Suite 13350
Reception Area, 6 Window Offices, Break Area, Sink, Corner Location, 1 Entrance
- Square Feet 1,857
- Number of Offices 6
Suite 9350
Reception Area, 3 Window Offices, 1 Conference Room, 1 Bullpen, File Or Storage Area,
- Square Feet 1,882
- Number of Offices 5
Suite 18400
Herculite Glass Entry, Stained Concrete Reception Area, 5 Window Offices, 1 Bullpen, Corner Location, 1 Entrance
- Square Feet 1,885
- Number of Offices 6
Suite 6050
Reception Area, 5 Window Offices, 2 Interior Offices, Break Area, Sink, 2 Entrances
- Square Feet 1,969
- Number of Offices 7
Suite 16000
2 Window Offices, 1 Conference Room, 1 Bullpen, Break Area
- Square Feet 2,046
- Number of Offices 4
Suite 14100
Herculite Glass Entry, Stained Concrete Reception Area and 2 Window Offices, 2 Interior Offices, Private Bullpen. Includes shared conference rooms, huddle rooms, lounge, coffee bar, and WiFi.
- Square Feet 2,145
- Number of Offices 5
Suite 15400
Reception with Six window offices and an open work area
- Square Feet 2,196
- Number of Offices 6
Suite 14250
Stained Concrete Reception Area and 3 window office, 1 Private Conference Room, Private Bullpen. Includes shared conference rooms, huddle rooms, lounge, coffee bar, and WiFi.
- Square Feet 2,246
- Number of Offices 5
Suite 5000.01
1 Reception Area, 4 Window Offices, 3 Interior Offices, Work Area, 3 Entrances
- Square Feet 2,564
- Number of Offices 8
Suite 16000.01
Reception Area, 1 Window Office, 4 Interior Offices, Open Area, Kitchen, Break Area, Sink, Corner Location
- Square Feet 2,643
- Number of Offices 5
Suite 1200
BANQUET HALL
- Square Feet 2,702
Suite 1100
- Square Feet 2,720
Suite 13500
Double Herculite glass doors, 1 Reception Area, 7 Window Offices, 1 Conference Room, 1 Kitchen,1 Break Area,1 Sink, 2 Entrances,1 Interior office
- Square Feet 2,755
- Number of Offices 6
Suite 13350.01
Reception Area, 8 Window Offices, 1 Interior Office, 1 Conference Room, Open Area, Break Area, Sink, Corner Location, 1 Entrance
- Square Feet 2,854
- Number of Offices 11
Suite 6050.01
Reception Area, 8 Window Offices, 2 Interior Offices, Open Area, Break Area, Sink, Corner Location
- Square Feet 2,935
- Number of Offices 10
Suite 8060.01
Reception Area, 7 Window Offices, 1 Interior Office, 1 Conference Room, 1 Bullpen, Open Area, Corner Location, 1 Entrance
- Square Feet 3,011
- Number of Offices 10
Suite 12055.01
Reception Area, 2 Window Offices, 4 Interior Offices, Corner Location
- Square Feet 3,168
- Number of Offices 6
Suite 16500
Reception Area, 3 Window Offices, 1 Interior Office, 1 Conference Room, 1 Bullpen, Open Area, Break Area, Sink, Work Area, File Or Storage Area, 1 Closets
- Square Feet 3,439
- Number of Offices 6
Suite 17060
Glass Entrance, Private reception area and 7 Window Offices, 1 Interior Office, Corner Location. Includes shared conference rooms, huddle rooms, lounge, coffee bar, and WiFi.
- Square Feet 3,546
- Number of Offices 7
Suite 2070
Floor is setup for classrooms. Herculite Glass Entry Door -
4 - large classrooms, 6 - small classrooms, 1 - small conference room, and 2- entrances
- Square Feet 3,592
- Number of Offices 11
Suite 11400
Reception Area, 3 Window Offices, 1 Interior Office, 1 Conference Room, Work Area, 1 Closets
- Square Feet 3,868
- Number of Offices 5
Suite 2090
Reception Area, 2 Window Offices, 1 Conference Room, 2 Entrances
- Square Feet 3,951
- Number of Offices 3
Suite 5045
Reception Area, 8 Window Offices, 3 Interior Offices, Break Area, Sink, Work Area
- Square Feet 5,228
- Number of Offices 11
Suite 11200.01
Reception Area, 10 Window Offices, 3 Interior Offices, 2 Conference Rooms, Break Area, Sink, Corner Location, 2 Entrances
- Square Feet 6,625
- Number of Offices 16
Suite 10000
1 Conference Room
11 Window Offices
Storage
Break room with Sink
Private Restroom
- Square Feet 8,727
- Number of Offices 1
Suite 17000.WS
Reception Area, 25 Window Offices, 5 Interior Offices, 2 Conference Rooms, 4 Bullpens, Open Area, Kitchen, Break Area, Sink, 1 Rest Room, File Or Storage Area, Corner Location, lounge, coffee bar, and WiFi.
- Square Feet 16,594
- Number of Offices 36
Suite 14000.WS
Reception Area, 32 Window Offices, 7 Interior Offices, 3 Conference Rooms, 4 Bullpens, Open Area, Kitchen, Break Area, Sink, 1 Rest Room, File Or Storage Area, Corner Location, lounge, coffee bar, and WiFi.
- Square Feet 16,598
- Number of Offices 46
Suite 19000
Reception Area, 25 Window Offices, 10 Interior Offices, 2 Conference Rooms, 6 Bullpens, Kitchen, Sink, 1 Rest Room, 3 Closets, Corner Location
- Square Feet 16,620
- Number of Offices 43
Suite 4000
Floor is setup for class rooms. 9 - Class Rooms, 7 - window offices, 1 - open gallery space, 1 - patio, 1 - closet
- Square Feet 16,784
- Number of Offices 7
Suite 3000
Floor is setup for classrooms. 12 - large classrooms, 1 - open study area and 1 - small conference room.
- Square Feet 17,117
- Number of Offices 13
12000-12100 Ford Rd, Farmers Branch, TX 75234, USA
12000-12100 Ford Rd
12000-12100 Ford Rd, Farmers Branch, TX 75234, USA
85 Available Units
No units available for the selected size range.
Suite STOR3
File and/or Storage room
- Square Feet 62
Suite B143
Interior executive Office with access to break area and common area seating.
- Square Feet 117
- Number of Offices 1
Suite STOR1
File and/or Storage Room
- Square Feet 121
Suite B153
1 Interior Office, 1 Entrance
- Square Feet 122
- Number of Offices 1
Suite B152
1 Interior Office
- Square Feet 136
- Number of Offices 1
Suite STOR2
File and/or Storage Room
- Square Feet 146
Suite B163
- Square Feet 156
- Number of Offices 1
Suite B361
Interior Executive Office, 1 Entrance, Access to Free Conference Rooms, Access to Break Area/Kitchenette
- Square Feet 159
- Number of Offices 1
Suite B162
- Square Feet 163
- Number of Offices 1
Suite B160
1 Interior Office, 1 Entrance
- Square Feet 166
- Number of Offices 1
Suite B363
Interior Executive Office, With Access to Conference Rooms and Break Area/Kitchenette
- Square Feet 172
- Number of Offices 1
Suite B145
1 Window Office, 1 Entrance
- Square Feet 188
- Number of Offices 1
Suite A431
Single Interior Executive Office, 1 Entrance, Access to Shared Conference Room and Campus Break Areas
- Square Feet 230
- Number of Offices 1
Suite A445
1 Window Office, Break Area
- Square Feet 235
- Number of Offices 1
Suite B313
Interior executive Office with access to conference room, break area and common area seating.
- Square Feet 236
- Number of Offices 1
Suite B319
Interior Executive Office, Access to Free Conference Rooms, Access to Break Area/Kitchenette
- Square Feet 236
- Number of Offices 1
Suite B323
NEW Interior Executive Office, 1 Entrance, Access to Free Conference Rooms, Access to Break Area/Kitchenette
- Square Feet 236
- Number of Offices 1
Suite B325
Interior Executive Office, Access to Free Conference Rooms, Access to Break Area/Kitchenette
- Square Feet 240
- Number of Offices 1
Suite B317
Interior Executive Office, 1 Entrance, Access to Free Conference Rooms, Access to Break Area/Kitchenette
- Square Feet 240
- Number of Offices 1
Suite B147
Beautiful Corner Window Office with access to conference room time and lounge area.
- Square Feet 244
- Number of Offices 1
Suite B315
Interior Executive Office, 1 Entrance, Access to Free Conference Rooms, Access to Break Area/Kitchenette
- Square Feet 244
- Number of Offices 1
Suite B314
1 Window Office
- Square Feet 258
- Number of Offices 1
Suite B324
New! Executive Window Office, Free Access to Conference Rooms, Free Access to Break Area/Kitchenette
- Square Feet 258
- Number of Offices 1
Suite B328
1 Window Office, 1 Entrance
- Square Feet 258
- Number of Offices 1
Suite B326
Executive Window Office, Free Access to Conference Rooms, Free Access to Break Area/Kitchenette
- Square Feet 260
- Number of Offices 1
Suite B330
1 Window Office
- Square Feet 262
- Number of Offices 1
Suite A439
- Square Feet 263
- Number of Offices 1
Suite B316
Executive Window Office, Free Access to Conference Rooms, Access to Break Area/Kitchenette
- Square Feet 264
- Number of Offices 1
Suite A435
1 Interior Office
- Square Feet 274
- Number of Offices 1
Suite A417
1 Window Office
- Square Feet 303
- Number of Offices 1
Suite B364
Reception Area, 1 Window Office
- Square Feet 307
- Number of Offices 1
Suite B370
Reception Area, 1 Window Office
- Square Feet 307
- Number of Offices 1
Suite A447
1 Window Office
- Square Feet 332
- Number of Offices 1
Suite A441
1 Interior Office
- Square Feet 340
- Number of Offices 1
Suite A449
Efficient Two Room suite - Reception Area (can be used as Interior Office), 1 Interior Offices, 1 Entrance
- Square Feet 346
- Number of Offices 2
Suite B327
NEW 1 Entrance, Access to Free Conference Rooms, Access to Break Area/Kitchenette
- Square Feet 353
- Number of Offices 1
Suite B270
Reception Area, 1 Window Office, File Or Storage Area, 1 Entrance
- Square Feet 368
- Number of Offices 2
Suite B280
Reception Area, 1 Window Office, File Or Storage Area
- Square Feet 368
- Number of Offices 1
Suite B283
Reception Area, 1 Window Office
- Square Feet 380
- Number of Offices 1
Suite A407
Reception Area, 1 Window Office
- Square Feet 421
- Number of Offices 1
Suite B138
Reception Area, 1 Window Office
- Square Feet 437
- Number of Offices 1
Suite B126
- Square Feet 440
- Number of Offices 1
Suite B130
Reception Area, 1 Interior Office, File Or Storage Area, 1 Entrance
- Square Feet 560
- Number of Offices 1
Suite A463
Reception Area, 1 Window Office, 1 Interior Office
- Square Feet 606
- Number of Offices 2
Suite B358
Reception Area, 2 Window Offices, Open Area, 1 Entrance
- Square Feet 617
- Number of Offices 2
Suite B115
Reception Area, 1 Window Office, 1 Interior Office, 1 Entrance
- Square Feet 636
- Number of Offices 2
Suite B354
- Square Feet 670
- Number of Offices 1
Suite A479
Reception Area, 2 Window Offices, 1 Interior Office
- Square Feet 674
- Number of Offices 3
Suite B300
Reception Area, 2 Window Offices, 1 Interior Office, Open Area, 1 Entrance
- Square Feet 800
- Number of Offices 3
Suite A403
Reception Area, 2 Window Offices, 1 Interior Office
- Square Feet 801
- Number of Offices 4
Suite B120
Reception Area, 2 Window Offices, 1 Conference Room, 1 Entrance
- Square Feet 836
- Number of Offices 3
Suite A473
- Square Feet 838
- Number of Offices 1
Suite A465
Reception, 2 window offices
- Square Feet 846
- Number of Offices 2
Suite B180
- Square Feet 935
- Number of Offices 3
Suite B190
- Square Feet 953
Suite A400
Reception Area, 3 Window Offices, 1 Interior Office, Work Area, 1 Entrance
- Square Feet 1,047
- Number of Offices 4
Suite B285
Reception Area, 1 Window Office, 1 Interior Office, 1 Bullpen, Open Area, Corner Location, 1 Entrance
- Square Feet 1,126
- Number of Offices 3
Suite A409
Reception Area, 3 Window Offices, Work Area, Corner Location
- Square Feet 1,139
- Number of Offices 3
Suite A469
- Square Feet 1,179
- Number of Offices 5
Suite A459
- Square Feet 1,189
- Number of Offices 3
Suite A425
Reception Area, 3 Window Offices, 2 Interior Offices, 1 Conference Room
- Square Feet 1,328
- Number of Offices 6
Suite A427
Reception Area, 2 Window Offices, 2 Interior Offices, 2 Closets, 1 Entrance
- Square Feet 1,371
- Number of Offices 4
Suite A413
Reception Area, 3 Window Offices, 1 Conference Room, Work Area, Corner Location, 1 Entrance
- Square Feet 1,377
- Number of Offices 4
Suite A285
Great Second Floor Suite, One Large Bullpen on the Glass, and 1 Large Window Office, 1 Entrance.
- Square Feet 1,509
- Number of Offices 2
Suite A190
Deli Space with seating area, line bar and storage.
- Square Feet 1,548
Suite B350
Beautiful Suite - Corner Unit, Reception Area, 4 Window Offices, Large Bullpen on the glass, Glass Conference Room, 1 Entrance
- Square Feet 1,620
- Number of Offices 6
Suite A240
Reception Area, 5 Window Offices, 1 Interior Office, Corner Location, 1 Entrance
- Square Feet 1,830
- Number of Offices 6
Suite A270
Corner Suite, Large Bullpen on the Glass, 2 Interior Offices, Kitchen/Break Room with Sink, 1 Entrance.
- Square Feet 1,840
- Number of Offices 3
Suite A140
Reception Area, 3 Window Offices, 4 Interior Offices, 1 Closets
- Square Feet 1,862
- Number of Offices 7
Suite B280.01
Reception Area, 4 Window Offices, Open Area, 1 Entrance
- Square Feet 1,874
- Number of Offices 5
Suite A235
Great Elevator Lobby Access, Large Bullpen with 2 Window Offices, Break area with Kitchen and Sink, 2 Entrances
- Square Feet 1,897
- Number of Offices 3
Suite A246
Corner Unit, Reception Area, 5 Window Offices, 2 Interior Offices, 1 Conference Room, File Or Storage Area, 1 Entrance
- Square Feet 1,959
- Number of Offices 8
Suite A429
Reception Area, 4 Window Offices, 2 Interior Offices, 1 Conference Room, Kitchen, Sink, 1 Closets
- Square Feet 2,452
- Number of Offices 7
Suite A180
- Square Feet 2,611
- Number of Offices 6
Suite A270.01
Great Second Floor Corner Suite, 2 Large Bullpen on the Glass, 1 Large Window Office, 2 Interior Offices, Kitchen/Break Room with Sink,
- Square Feet 3,349
- Number of Offices 5
Suite A400.01
Reception Area, 8 Window Offices, 3 Interior Offices, 1 Conference Room, Corner Location, 1 Entrance
- Square Feet 3,408
- Number of Offices 13
Suite A240.01
Reception Area, 10 Window Offices, 3 Interior Offices, 1 Conference Room, Sink, Work Area, File Or Storage Area, Corner Location
- Square Feet 3,789
- Number of Offices 14
Suite A180.01
Reception Area, 5 Window Offices, 2 Interior Offices, 1 Conference Room, Open Area, Kitchen, Break Area, Sink, Work Area, File Or Storage Area, 1 Closets
- Square Feet 4,159
- Number of Offices 8
Suite A150
Great First Floor Corner unit with immediate access to parking, 1 reception, 7 window offices, 1 Large Conference Room, 1 interior office, 1 break room w/sink, 1 large bullpen w/sink, storage room w/sink, Two entrances;
- Square Feet 4,314
- Number of Offices 10
Suite A459.01
Reception Area, 5 Window Offices, 1 Interior Office, 1 Conference Room, Open Area
- Square Feet 4,658
- Number of Offices 7
Suite B401
2 Window Offices, 2 Interior Offices, 1 Conference Room, 1 Bullpen, Break Area, Sink, 1 Closets, 2 Entrances
- Square Feet 4,839
- Number of Offices 6
Suite B295
8 Window office, 2 Interior office, enclosed glassed Bullpen, 2 Conference room, Reception, Break room, open area, 1 Entrance
- Square Feet 5,576
- Number of Offices 13
Suite A425.01
Reception Area, 9 Window Offices, 6 Interior Offices, 2 Conference Rooms, Kitchen, Sink, Work Area, 3 Closets, Corner Location
- Square Feet 5,655
- Number of Offices 17
Suite B200
22 Window Offices, 8 Interior Offices, 1 Conference Room, Open Area, Kitchen, Break Area, Sink, Work Area, 2 Closets
- Square Feet 8,367
- Number of Offices 31
Suite B200.01
Reception Area, 29 Window Offices, 11 Interior Offices, 2 Conference Rooms, Open Area, Kitchen, Break Area, Sink, Work Area, File Or Storage Area, 2 Closets, Corner Location
- Square Feet 13,943
- Number of Offices 43
2665-2695 Villa Creek Dr, Farmers Branch, TX 75234, USA
2665-2695 Villa Creek Dr
2665-2695 Villa Creek Dr, Farmers Branch, TX 75234, USA
63 Available Units
No units available for the selected size range.
Suite B124
Micro office with access to shared break area.
- Square Feet 74
Suite A262
- Square Feet 94
- Number of Offices 1
Suite A258
1 Interior Office
- Square Feet 135
- Number of Offices 1
Suite A252
1 Interior Office, 1 Entrance
- Square Feet 157
- Number of Offices 1
Suite A253
1 Interior Office, 1 Entrance
- Square Feet 157
- Number of Offices 1
Suite B130
- Square Feet 166
- Number of Offices 1
Suite A104-6
1 Window Office
- Square Feet 182
- Number of Offices 1
Suite B132
1 Window Office, 1 Entrance
- Square Feet 192
- Number of Offices 1
Suite A257
1 Window Office
- Square Feet 195
- Number of Offices 1
Suite B111
- Square Feet 218
- Number of Offices 1
Suite B114
1 Window Office with access to shared break area.
- Square Feet 248
- Number of Offices 1
Suite B116
Executive suite with window with access to shared break area.
- Square Feet 253
- Number of Offices 1
Suite A254
Executive suite with window
- Square Feet 256
- Number of Offices 1
Suite A261
1 Interior Office
- Square Feet 258
- Number of Offices 1
Suite B200
1 Window Office, 1 Entrance
- Square Feet 273
- Number of Offices 1
Suite A104-2
1 Window Office
- Square Feet 294
- Number of Offices 1
Suite B215
Reception Area, 1 Window Office
- Square Feet 351
- Number of Offices 1
Suite B280
Reception Area, 1 Window Office, 1 Closets and 2 entrances.
- Square Feet 397
- Number of Offices 1
Suite A130
- Square Feet 494
- Number of Offices 1
Suite B270
Reception Area, 2 Window Offices, 1 Entrance
- Square Feet 514
- Number of Offices 2
Suite B285
Reception Area, 1 Window Office, 1 Closets
- Square Feet 533
- Number of Offices 1
Suite A121
Reception Area, 1 Window Office, Work Area
- Square Feet 557
- Number of Offices 1
Suite B278
- Square Feet 558
- Number of Offices 2
Suite A100
Reception Area, 2 Window Offices, 2 Entrances
- Square Feet 619
- Number of Offices 2
Suite A218
- Square Feet 621
- Number of Offices 3
Suite B225
- Square Feet 624
- Number of Offices 2
Suite B235
Reception Area, 1 Window Office, 1 Interior Office, 1 Closets
- Square Feet 644
- Number of Offices 2
Suite B147
Reception Area, 2 Window Offices
- Square Feet 750
- Number of Offices 2
Suite A248
Reception Area, 2 Window Offices, 1 Interior Office
- Square Feet 823
- Number of Offices 3
Suite B274
1 Reception, 2 Office, Open area, 1 Entrance
- Square Feet 838
Suite B265
- Square Feet 856
- Number of Offices 3
Suite A129
Reception Area, 2 Window Offices, Corner Location
- Square Feet 883
- Number of Offices 2
Suite A120
Two (2) room suite with reception area and One (1) window office with access to shared conference rooms.
- Square Feet 886
- Number of Offices 2
Suite B180
Reception Area, 3 Window Offices
- Square Feet 887
- Number of Offices 3
Suite A214
- Square Feet 1,004
- Number of Offices 5
Suite A203
- Square Feet 1,085
- Number of Offices 2
Suite B110
One (1) Window Office, One (1) Interior Office with a Bullpen
- Square Feet 1,101
- Number of Offices 2
Suite B145
Reception Area, 2 Window Offices, 2 Interior Offices, 1 Closets, Corner Location
- Square Feet 1,156
- Number of Offices 4
Suite B268
Reception Area, 2 Window Offices, 2 Interior Offices, Open Area, 1 Closets, Corner Location
- Square Feet 1,176
- Number of Offices 4
Suite B210
- Square Feet 1,205
- Number of Offices 5
Suite B105
Reception Area, 3 Window Offices Open work area
- Square Feet 1,235
- Number of Offices 4
Suite A245
Reception Area, 4 Window Offices, 1 Interior Office, Work Area, File Or Storage Area, 1 Closets, 2 Entrances
- Square Feet 1,258
- Number of Offices 5
Suite A202
Reception Area, 2 Window Offices, 1 Interior Office, Open Area
Equipped with a sliding glass transaction counter!!
- Square Feet 1,278
- Number of Offices 3
Suite A107
- Square Feet 1,429
- Number of Offices 3
Suite B240
- Square Feet 1,436
- Number of Offices 4
Suite A246
Reception Area with Hard Wood Flooring! 3 Window Offices, 1 interior office, 1 Bullpen, Sink, 1 Closets, Corner Location
- Square Feet 1,496
- Number of Offices 4
Suite A247
Corner Location with a Glass Entry, Reception Area, 4 Window Offices, Closet and Bull Pen.
- Square Feet 1,576
- Number of Offices 4
Suite A205
Reception, 5 Window Offices, Open Area
- Square Feet 1,676
- Number of Offices 1
Suite B255
Reception Area, 2 Window Offices, 3 Interior Offices, 1 Conference Room, Open Area, Kitchen, Break Area, Sink, File Or Storage Area
- Square Feet 1,676
- Number of Offices 6
Suite A115
Reception Area, 3 Window Offices, 1 Interior Office, Break Area, Sink, File Or Storage Area, 1 Closets, 1 Entrance
- Square Feet 1,825
- Number of Offices 5
Suite A108
Reception Area, 4 Window Offices, 2 Interior Offices, Corner Location
- Square Feet 2,044
- Number of Offices 6
Suite B207
- Square Feet 2,152
- Number of Offices 7
Suite A222
Large office to include Three (3) window offices, Two (2) internal offices, Reception, Sink, and File/Storage room.
- Square Feet 2,355
- Number of Offices 2
Suite A115.01
Reception Area, 4 Window Offices, 2 Interior Offices, 1 Conference Room, 1 Bullpen, Kitchen, Sink, 1 Closets, Corner Location, 1 Entrance
- Square Feet 2,711
- Number of Offices 8
Suite B200.01
Reception Area, 5 Window Offices, 1 Interior Office, 1 Conference Room, Kitchen, Break Area, Sink, File Or Storage Area, 1 Closets, Corner Location
- Square Feet 2,977
- Number of Offices 7
Suite A105
- Square Feet 3,137
- Number of Offices 7
Suite A205.01
1Reception Area, 8 Window Offices, 5 Interior Offices, 1 Conference Room, Work Area, 1 Closets, Corner Location, 3 Entrances
- Square Feet 3,301
- Number of Offices 15
Suite B265.01
- Square Feet 3,384
Suite A202.01
Reception Area, 5 Window Offices, 2 Interior Offices, 1 Conference Room, Kitchen, Sink, File Or Storage Area, Corner Location
- Square Feet 3,633
- Number of Offices 8
Suite B207.01
Reception Area, 8 Window Offices, 1 Interior Office, 1 Conference Room, Kitchen, Break Area, Sink, 1 Closets, Corner Location, 1 Entrance
- Square Feet 3,708
- Number of Offices 10
Suite A246.01
Reception Area, 11 Window Offices, 2 Interior Offices, 1 Conference Room, Break Area, Sink, File Or Storage Area, Corner Location, 1 Entrance
- Square Feet 3,895
- Number of Offices 15
Suite A105.01
1 Reception Area, 10 Window Offices, 2 Interior Offices, 1 Conference Room, Kitchen, Sink, Work Area, File Or Storage Area, 1 Closets, Corner Location, 2 Entrances
- Square Feet 5,181
- Number of Offices 14
Suite B145.01
Reception Area, 14 Window Offices, 9 Interior Offices, 2 Conference Rooms, Open Area, Kitchen, Sink, File Or Storage Area, 1 Closets, Corner Location, 1 Entrance
- Square Feet 6,642
- Number of Offices 25