11225 North 28th Drive

Phoenix, AZ 85029

Property Size: 135,501 SqFt


11225 North 28th Drive - Melissa Castro
MEET THE AGENT
Melissa Castro
(602) 482-RENT (7368)
11225 North 28th Drive - chat icon
Available Suites ()
(Updated 11/13/2025 )
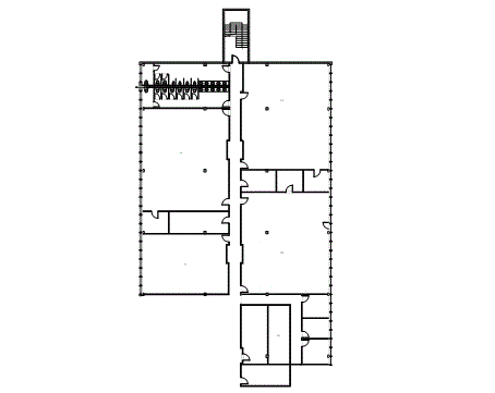
Suite: A201 435 Virtual Office | SqFt: 8,532
  • Reception
  • Four (4) window offices
  • one (1) conference room
  • one (1) large break room with sink
  • dishwasher and microwave
  • and one (1) small break room.
11225 North 28th Drive - A201
Suite: F101 435 Virtual Office | SqFt: 4,130
  • Reception
  • (7) windows offices (1) bullpen area (1) break room
  • (2) conference room
  • and views of the lake
11225 North 28th Drive - F101
Suite: C214.01 435 Virtual Office | SqFt: 2,705
  • Reception Area
  • 4 Window Offices
  • 3 Interior Offices
  • 1 Conference Room
  • 1 Bullpen
  • Open Area
11225 North 28th Drive - C214.01
Suite: D217.01 435 Virtual Office | SqFt: 2,649
  • Reception Area
  • 5 Window Offices
  • 4 Interior Offices
  • Open Area
  • Work Area
11225 North 28th Drive - D217.01
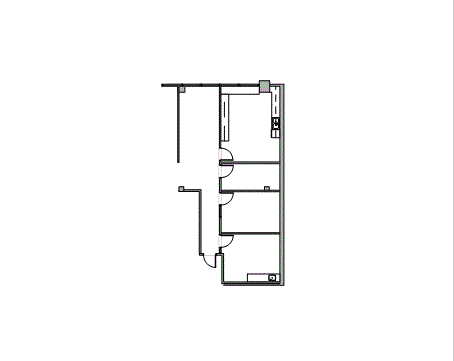
Suite: D116 435 Virtual Office | SqFt: 2,635
  • Large open bullpen with 2 private offices (1 with window)
11225 North 28th Drive - D116
Suite: C212 435 Virtual Office | SqFt: 1,897
  • Reception Area
  • 3 Interior Offices
  • 1 Conference Room
  • 1 Bullpen
  • Open Area
  • Dropped Celling
  • 1 Entrance
11225 North 28th Drive - C212
Suite: A101 435 Virtual Office | SqFt: 1,774
  • Large reception
  • 1 bullpen
  • 3 Office
  • break-room area and 2 closets
11225 North 28th Drive - A101
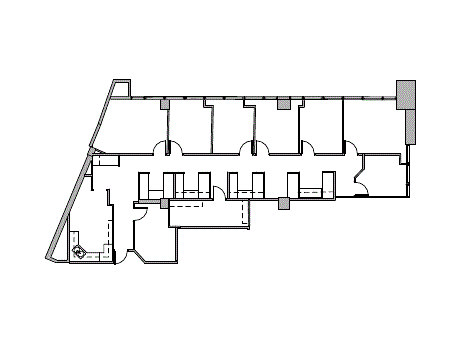
Suite: C203 435 Virtual Office | SqFt: 1,621
  • Office suite with Reception area
  • (1) Conference Room
  • (2) Window Offices
  • (3) Interior Offices and Bullpen.
11225 North 28th Drive - C203
Suite: C214 435 Virtual Office | SqFt: 1,591
  • Reception Area
  • 3 Interior Offices
  • 1 Conference Room
  • 1 Bullpen
  • Open Area
  • 1 Entrance
11225 North 28th Drive - C214
Suite: C220 435 Virtual Office | SqFt: 1,555
  • Reception
  • Huddle Room
  • Bullpen
  • one (1) interior office and four (4) window offices. Available 6/1/2025.
11225 North 28th Drive - C220
Suite: D218 435 Virtual Office | SqFt: 1,419
  • Four office suite (Three offices with windows)
  • reception area and bullpen
11225 North 28th Drive - D218
Suite: D217 435 Virtual Office | SqFt: 1,230
  • Reception Area
  • 2 Window Offices
  • 2 Interior Offices
  • 1 Bullpen
11225 North 28th Drive - D217
Suite: D121 435 Virtual Office | SqFt: 1,137
  • Large open office with Lakeview's.
11225 North 28th Drive - D121
Suite: D107 435 Virtual Office | SqFt: 1,135
  • Reception
  • 4) interior offices
  • storage area Available 9/1/2024
11225 North 28th Drive - D107
Suite: B101 435 Virtual Office | SqFt: 1,122
  • Three offices with windows (1 glass walled office)
  • copy/file storage area with cabinets
  • reception area and upgraded carpet and finished concrete floors throughout suite.
11225 North 28th Drive - B101
Suite: D106 435 Virtual Office | SqFt: 1,116
  • Reception Area
  • 2 Window Offices
  • 1 Bullpen
  • 1 Closets
  • 1 Entrance
11225 North 28th Drive - D106
Suite: C218 435 Virtual Office | SqFt: 1,114
  • Reception
  • Huddle Room
  • and four (4) Window Offices
11225 North 28th Drive - C218
Suite: D215 435 Virtual Office | SqFt: 1,076
  • Four Private offices (One office with windows)
  • reception area bullpen
11225 North 28th Drive - D215
Suite: A209 435 Virtual Office | SqFt: 1,061
  • Three window office suite with reception area and storage room.
11225 North 28th Drive - A209
Suite: C200 435 Virtual Office | SqFt: 1,031
  • Reception area
  • three (3) window offices
  • one (1) interior office
  • work area
11225 North 28th Drive - C200
Suite: C207 435 Virtual Office | SqFt: 851
  • Reception
  • Bullpen
  • two (2) window offices
11225 North 28th Drive - C207
Suite: D220G 435 Virtual Office | SqFt: 751
  • Reception Area
  • 1 Window Office
  • 1 Interior Office
  • Dropped Celling
  • 1 Entrance
11225 North 28th Drive - D220G
Suite: C210 435 Virtual Office | SqFt: 639
  • Available 12/01/2024: Reception
  • two (2) window offices and (1) Huddle room. Available 1/1/2026.
11225 North 28th Drive - C210
Suite: D220A 435 Virtual Office | SqFt: 624
  • Reception Area
  • 2 Window Offices and work area. Available 12/1/2024
11225 North 28th Drive - D220A
Suite: B227 435 Virtual Office | SqFt: 577
  • Private reception area and window office. Includes shared conference rooms
  • huddle rooms
  • lounge
  • coffee bar
  • and WiFi.
11225 North 28th Drive - B227
Suite: A102-03 435 Virtual Office | Private Office
  • 1 Window Office
  • Shared Conference Rooms
  • Huddle Rooms
  • Lounges
11225 North 28th Drive - A102-03
Virtual Office | Available
  • Need a more flexible option?
    Learn about our virtual office program
more info  
Workstyle Logo
Request a Quote

Request a Quote

By clicking “send” I agree that Boxer Property can contact me by email or phone, including for marketing purposes. I have read and understand the privacy policy.

Book a Tour Today

By clicking “send” I agree that Boxer Property can contact me by email or phone, including for marketing purposes. I have read and understand the privacy policy.

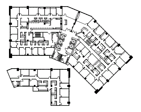
Map

Property Description

Lakeside Center is a professional-resort style office environment with lush landscaping and fountain courtyards . This property provides quality, affordable office space with free space planning and tenants apps via website. Tenants will also enjoy access to an on-site deli, maintenance staff and property management.

Amenities

On-site Leasing

On-site Maintenance

On-site Management

Common Area Conference Room

Ample Surface & Covered Parking

Lush Fountain Courtyards

Offices with Scenic Garden & Lakeside Coffee Bar

Dog Park

Huddle Room

Lounge Space

Loading docks

Mail room

Parking :Complimentary

Parking : Covered

Parking : Surface

Signage Monument sign

Cafe / Deli

Coffee Bar

Conference Room

Filterd Water

Internet Ready

Mail Drop Boxes

Outside Seating

Signage : Monument Sign

Compare listings

Compare
Skip to content