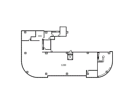
9898 Bissonnet Street
Description
9898 Bissonnet has a variety of office space and a spacious atrium lobby with 24-hour secure key card access for your convenience. Tenants will also enjoy the on-site deli and on-site maintenance. The property contains security cameras, video surveillance & exterior lighting system, with a parking ratio of 3/1,000 SqFt. The property is located on US-59 South. If traveling from 610 to 59, turn right onto Bissonnet St, property is on the right.
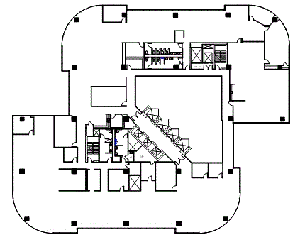
Floor Plans
Suite: 583
- Rentable Square Feet 329
- Number of Offices 1
Suite: 628
- Rentable Square Feet 1,209
- Number of Offices 3
Suite: 675
- Rentable Square Feet 1,727
- Number of Offices 1
Suite: 660
- Rentable Square Feet 822
- Number of Offices 2
Suite: 600
- Rentable Square Feet 2,770
- Number of Offices 8
Suite: 626
- Rentable Square Feet 577
- Number of Offices 1
Suite: 400E
- Rentable Square Feet 669
- Number of Offices 1
Suite: 351.01
- Rentable Square Feet 3,104
- Number of Offices 6
Suite: 661
- Rentable Square Feet 819
- Number of Offices 2
Suite: 546
- Rentable Square Feet 796
- Number of Offices 2
Suite: 270
- Rentable Square Feet 1,925
- Number of Offices 5
Suite: 200.01
- Rentable Square Feet 4,880
- Number of Offices 8
Suite: 252L
- Rentable Square Feet 268
- Number of Offices 1
Suite: 660.01
- Rentable Square Feet 1,641
- Number of Offices 2
Suite: 620.01
- Rentable Square Feet 2,799
- Number of Offices 7
Suite: 600.01
- Rentable Square Feet 3,544
- Number of Offices 10
Amenities
- Spacious Atrium Lobby
- 24-Hour Secure Key Card Access
- 24-Hour Badge Access
- Security Cameras, Video Surveillance & Exterior Lighting System
- Marquee Signage
- Parking Ratio: 3 / 1,000 Sq Ft
- Café\Deli
- Conference room
- Mailroom
- Mail Drop Boxes
- On-site Leasing
- On-site Maintenance
- On-site Management
- Parking : Complimentary
- Parking : Secured Gated
- Parking : Surface
- Parking : Covered
- Parking : Garage
- Huddle Room
- Training Room
- Internet Ready
- Signage: Monument Sign
360° Virtual Tour
Similar Listings
7322-7324 Southwest Freeway, Houston, TX 77074, USA
7322-7324 Southwest Freeway
7322-7324 Southwest Freeway, Houston, TX 77074, USA
249 Available Units
Suite 1-1171
Interior office for 1 with built-in desk. Includes shared waiting areas, conference rooms, huddle rooms, lounge, coffee bar, and WiFi
- Square Feet 162
- Number of Offices 1
Suite 1-1155
Interior office includes shared waiting areas, conference rooms, huddle rooms, lounge, coffee bar, and WiFi. Features a built in Desk located near outlet.
- Square Feet 184
- Number of Offices 1
Suite 2-0460V
Interior office includes shared waiting areas, conference rooms, huddle rooms, lounge, coffee bar, and WiFi. Features a built in Desk located near outlet.
- Square Feet 188
- Number of Offices 1
Suite 1-1125
Furnished interior office for 1 with built-in desk & executive chair. Includes shared waiting areas, conference rooms, huddle rooms, lounge, coffee bar, and WiFi.
- Square Feet 202
- Number of Offices 1
Suite 2-0273
Interior office includes shared waiting areas, conference rooms, huddle rooms, lounge, coffee bar, and WiFi. Features a built in Desk located near outlet.
- Square Feet 205
- Number of Offices 1
Suite 2-0241
Interior office includes shared waiting areas, conference rooms, huddle rooms, lounge, coffee bar, and WiFi. Features a built in Desk located near outlet.
- Square Feet 212
- Number of Offices 1
Suite 2-0243
Interior office includes shared waiting areas, conference rooms, huddle rooms, lounge, coffee bar, and WiFi. Features a built in Desk located near outlet.
- Square Feet 212
- Number of Offices 1
Suite 2-1425
Workstyle Interior Office includes access to shared waiting area, conference rooms, huddle rooms, coffee bar & WiFi.
- Square Feet 221
- Number of Offices 1
Suite 2-1437
Interior Office with access to shared Boardroom, Conference Room, 4 Huddle Rooms, 3 Lounge Areas, Training Room, Coffee Bar, and free WIFI.
- Square Feet 235
- Number of Offices 1
Suite 2-1423
Interior Office with access to shared Boardroom, Conference Room, 4 Huddle Rooms, 3 Lounge Areas, Training Room, Coffee Bar, and free WIFI.
- Square Feet 238
- Number of Offices 1
Suite 2-0287
Interior office includes shared waiting areas, conference rooms, huddle rooms, lounge, coffee bar, and WiFi. Features a built in Desk located near outlet.
- Square Feet 238
- Number of Offices 1
Suite 2-0291
Interior office includes shared waiting areas, conference rooms, huddle rooms, lounge, coffee bar, and WiFi. Features a built in Desk located near outlet.
- Square Feet 238
- Number of Offices 1
Suite 2-0225
Interior office includes shared waiting areas, conference rooms, huddle rooms, lounge, coffee bar, and WiFi. Features a built in Desk located near outlet.
- Square Feet 240
- Number of Offices 1
Suite 2-0233
Interior office includes shared waiting areas, conference rooms, huddle rooms, lounge, coffee bar, and WiFi. Features a built in Desk located near outlet.
- Square Feet 240
- Number of Offices 1
Suite 1-0630F
1 Window Office, 1 Entrance
- Square Feet 242
- Number of Offices 1
Suite 2-0281
Interior office includes shared waiting areas, conference rooms, huddle rooms, lounge, coffee bar, and WiFi. Features a built in Desk located near outlet.
- Square Feet 246
- Number of Offices 1
Suite 1-1601
New Jewelry Center
Single office with access to reception and conference area.
- Square Feet 260
- Number of Offices 1
Suite 1-1603
New Jewelry Center
Private office with access to reception and conference area.
- Square Feet 263
- Number of Offices 1
Suite 1-1628
New Jewelry Center Private office.
- Square Feet 267
- Number of Offices 1
Suite 2-0255
Interior office includes shared waiting areas, conference rooms, huddle rooms, lounge, coffee bar, and WiFi.
- Square Feet 270
- Number of Offices 1
Suite 2-0275
Interior office includes shared waiting areas, conference rooms, huddle rooms, lounge, coffee bar, and WiFi. Features a built in Desk located near outlet.
- Square Feet 270
- Number of Offices 1
Suite 2-0460O
Window office includes shared waiting areas, conference rooms, huddle rooms, lounge, coffee bar, and WiFi.
- Square Feet 274
- Number of Offices 1
Suite 1-1626
New Jewelry Center
Private office.
- Square Feet 274
- Number of Offices 1
Suite 2-0257
Interior office includes shared waiting areas, conference rooms, huddle rooms, lounge, coffee bar, and WiFi.
- Square Feet 278
- Number of Offices 1
Suite 2-0277
Interior office includes shared waiting areas, conference rooms, huddle rooms, lounge, coffee bar, and WiFi. Features a built in Desk located near outlet.
- Square Feet 278
- Number of Offices 1
Suite 1-1630
New Jewelry Center
Private office.
- Square Feet 280
- Number of Offices 1
Suite 1-1624
New Jewelry Center
Private office with access to reception and conference area.
- Square Feet 287
- Number of Offices 1
Suite 1-0630H
Executive Window Office with shared access to waiting area and coffee bar.
- Square Feet 292
- Number of Offices 1
Suite 1-1605
New Jewelry Center
Private office.
- Square Feet 296
- Number of Offices 1
Suite 1-1159
Interior office includes shared waiting areas, conference rooms, huddle rooms, lounge, coffee bar, and WiFi.
- Square Feet 298
- Number of Offices 1
Suite 2-0286
Fully furnished & decorated window office includes shared waiting areas, conference rooms, huddle rooms, lounge, coffee bar, and WiFi.
- Square Feet 306
- Number of Offices 1
Suite 2-0220
Window office includes shared waiting areas, conference rooms, huddle rooms, lounge, coffee bar, and WiFi.
- Square Feet 316
- Number of Offices 1
Suite 1-1618
New Jewelry Center
Private office.
- Square Feet 320
- Number of Offices 1
Suite 2-0274
Window office includes shared waiting areas, conference rooms, huddle rooms, lounge, coffee bar, and WiFi
- Square Feet 330
- Number of Offices 1
Suite 2-0282
Window office includes shared waiting areas, conference rooms, huddle rooms, lounge, coffee bar, and WiFi.
- Square Feet 330
- Number of Offices 1
Suite 2-0284
Window office includes shared waiting areas, conference rooms, huddle rooms, lounge, coffee bar, and WiFi.
- Square Feet 330
- Number of Offices 1
Suite 2-0259
Interior office. Includes shared conference rooms, huddle rooms, lounge, coffee bar, and WiFi. Features a built in Desk located near outlet.
- Square Feet 334
- Number of Offices 1
Suite 2-0272
Window office includes shared waiting areas, conference rooms, huddle rooms, lounge, coffee bar, and WiFi.
- Square Feet 335
- Number of Offices 1
Suite 1-1610
New Jewelry Center
Private office.
- Square Feet 335
- Number of Offices 1
Suite 2-0460B
Window office includes shared waiting areas, conference rooms, huddle rooms, lounge, coffee bar, and WiFi.
- Square Feet 339
- Number of Offices 1
Suite 1-1190
Window office includes shared waiting areas, conference rooms, huddle rooms, lounge, coffee bar, and WiFi.
- Square Feet 339
- Number of Offices 1
Suite 1-1614
New Jewelry Center
Private office.
- Square Feet 340
- Number of Offices 1
Suite 1-1612
New Jewelry Center
Private office.
- Square Feet 343
- Number of Offices 1
Suite 2-0460N
Window office includes shared waiting areas, conference rooms, huddle rooms, lounge, coffee bar, and WiFi.
- Square Feet 345
- Number of Offices 1
Suite 1-1198
Window office includes shared waiting areas, conference rooms, huddle rooms, lounge, coffee bar, and WiFi.
- Square Feet 356
- Number of Offices 1
Suite 1-1178
Fully furnished & decorated window office. Includes shared waiting areas, conference rooms, huddle rooms, lounge, coffee bar, and WiFi
- Square Feet 358
- Number of Offices 1
Suite 2-0460R
Window office includes shared waiting areas, conference rooms, huddle rooms, lounge, coffee bar, and WiFi.
- Square Feet 366
- Number of Offices 1
Suite 2-0460T
Window office includes shared waiting areas, conference rooms, huddle rooms, lounge, coffee bar, and WiFi.
- Square Feet 372
- Number of Offices 1
Suite 1-1192
Window office includes shared waiting areas, conference rooms, huddle rooms, lounge, coffee bar, and WiFi.
- Square Feet 377
- Number of Offices 1
Suite 2-0208
Window office includes shared waiting areas, conference rooms, huddle rooms, lounge, coffee bar, and WiFi.
- Square Feet 378
- Number of Offices 1
Suite 2-1434
Window Office with access to shared Boardroom, Conference Room, 4 Huddle Rooms, 3 Lounge Areas, Training Room, Coffee Bar, and free WIFI.
- Square Feet 379
- Number of Offices 1
Suite 2-0238
Window office includes shared waiting areas, conference rooms, huddle rooms, lounge, coffee bar, and WiFi.
- Square Feet 381
- Number of Offices 1
Suite 2-0460Q
Window office includes shared waiting areas, conference rooms, huddle rooms, lounge, coffee bar, and WiFi.
- Square Feet 387
- Number of Offices 1
Suite 1-1110
Window office includes shared waiting areas, conference rooms, huddle rooms, lounge, coffee bar, and WiFi.
- Square Feet 388
- Number of Offices 1
Suite 1-1144
Window office includes shared waiting areas, conference rooms, huddle rooms, lounge, coffee bar, and WiFi.
- Square Feet 390
- Number of Offices 1
Suite 2-0460M
Window office includes shared waiting areas, conference rooms, huddle rooms, lounge, coffee bar, and WiFi.
- Square Feet 391
- Number of Offices 1
Suite 2-0240
Window office includes shared waiting areas, conference rooms, huddle rooms, lounge, coffee bar, and WiFi.
- Square Feet 400
- Number of Offices 1
Suite 1-1174
Window office includes shared waiting areas, conference rooms, huddle rooms, lounge, coffee bar, and WiFi.
- Square Feet 402
- Number of Offices 1
Suite 1-1170
Window office includes shared waiting areas, conference rooms, huddle rooms, lounge, coffee bar, and WiFi.
- Square Feet 402
- Number of Offices 1
Suite 2-0206
Window office includes shared waiting areas, conference rooms, huddle rooms, lounge, coffee bar, and WiFi.
- Square Feet 403
- Number of Offices 1
Suite 2-0210
Window office includes shared waiting areas, conference rooms, huddle rooms, lounge, coffee bar, and WiFi.
- Square Feet 407
- Number of Offices 1
Suite 2-0460G
Window office includes shared waiting areas, conference rooms, huddle rooms, lounge, coffee bar, and WiFi.
- Square Feet 408
- Number of Offices 1
Suite 2-0242
Window office includes shared waiting areas, conference rooms, huddle rooms, lounge, coffee bar, and WiFi.
- Square Feet 413
- Number of Offices 1
Suite 2-1448
Window office includes shared Boardroom, Conference Room, 4 Huddle Rooms, 3 Lounge Areas, Training Room, Coffee Bar, and free WIFI.
- Square Feet 414
- Number of Offices 1
Suite 1-1186
Window office includes shared waiting areas, conference rooms, huddle rooms, lounge, coffee bar, and WiFi.
- Square Feet 415
- Number of Offices 1
Suite 2-0460A
Window office includes shared waiting areas, conference rooms, huddle rooms, lounge, coffee bar, and WiFi.
- Square Feet 418
- Number of Offices 1
Suite 2-0460J
Window office includes shared waiting areas, conference rooms, huddle rooms, lounge, coffee bar, and WiFi.
- Square Feet 420
- Number of Offices 1
Suite 2-1432
Window Office with access to shared Boardroom, Conference Room, 4 Huddle Rooms, 3 Lounge Areas, Training Room, Coffee Bar, and free WIFI.
- Square Feet 421
- Number of Offices 1
Suite 1-1116
Window office includes shared waiting areas, conference rooms, huddle rooms, lounge, coffee bar, and WiFi.
- Square Feet 433
- Number of Offices 1
Suite 1-1118
Window office includes shared waiting areas, conference rooms, huddle rooms, lounge, coffee bar, and WiFi.
- Square Feet 433
- Number of Offices 1
Suite 2-1461
Interior Office with access to shared Boardroom, Conference Room, 4 Huddle Rooms, 3 Lounge Areas, Training Room, Coffee Bar, and free WIFI.
- Square Feet 433
- Number of Offices 1
Suite 1-1112
Window office includes shared waiting areas, conference rooms, huddle rooms, lounge, coffee bar, and WiFi.
- Square Feet 433
- Number of Offices 1
Suite 1-1114
Fully furnished & decorated window office. Includes shared waiting areas, conference rooms, huddle rooms, lounge, coffee bar, and WiFi.
- Square Feet 433
- Number of Offices 1
Suite 2-0460I
Window office includes shared waiting areas, conference rooms, huddle rooms, lounge, coffee bar, and WiFi.
- Square Feet 435
- Number of Offices 1
Suite 2-0460D
Interior office includes shared waiting areas, conference rooms, huddle rooms, lounge, coffee bar, and WiFi.
- Square Feet 439
- Number of Offices 1
Suite 2-0460F
Interior office includes shared waiting areas, conference rooms, huddle rooms, lounge, coffee bar, and WiFi.
- Square Feet 439
- Number of Offices 1
Suite 2-0270
Window office includes shared waiting areas, conference rooms, huddle rooms, lounge, coffee bar, and WiFi.
- Square Feet 442
- Number of Offices 1
Suite 1-1162
Window office includes shared waiting areas, conference rooms, huddle rooms, lounge, coffee bar, and WiFi.
- Square Feet 446
- Number of Offices 1
Suite 2-1480
Window Office with access to shared Boardroom, Conference Room, 4 Huddle Rooms, 3 Lounge Areas, Training Room, Coffee Bar, and free WIFI.
- Square Feet 448
- Number of Offices 1
Suite 2-0460L
Window office includes shared waiting areas, conference rooms, huddle rooms, lounge, coffee bar, and WiFi.
- Square Feet 449
- Number of Offices 1
Suite 2-0288
Window office includes shared waiting areas, conference rooms, huddle rooms, lounge, coffee bar, and WiFi
- Square Feet 458
- Number of Offices 1
Suite 2-1482
Window Office with access to shared Boardroom, Conference Room, 4 Huddle Rooms, 3 Lounge Areas, Training Room, Coffee Bar, and free WIFI. Great view!
- Square Feet 460
- Number of Offices 1
Suite 1-1184
Window office includes shared waiting areas, conference rooms, huddle rooms, lounge, coffee bar, and WiFi.
- Square Feet 461
- Number of Offices 1
Suite 2-0236
Window office includes shared waiting areas, conference rooms, huddle rooms, lounge, coffee bar, and WiFi.
- Square Feet 463
- Number of Offices 1
Suite 2-1476
Window Office with access to shared Boardroom, Conference Room, 4 Huddle Rooms, 3 Lounge Areas, Training Room, Coffee Bar, and free WIFI.
- Square Feet 467
- Number of Offices 1
Suite 2-1470
Window Office with access to shared Boardroom, Conference Room, 4 Huddle Rooms, 3 Lounge Areas, Training Room, Coffee Bar, and free WIFI. Great view!
- Square Feet 467
- Number of Offices 1
Suite 2-1418
Window Office with access to shared Boardroom, Conference Room, 4 Huddle Rooms, 3 Lounge Areas, Training Room, Coffee Bar, and Free WIFI
- Square Feet 471
- Number of Offices 1
Suite 2-0620
- Square Feet 476
- Number of Offices 1
Suite 2-1468
Window Office with access to shared Boardroom, Conference Room, 4 Huddle Rooms, 3 Lounge Areas, Training Room, Coffee Bar, and free WIFI.
- Square Feet 486
- Number of Offices 1
Suite 1-1168
Window office includes shared waiting areas, conference rooms, huddle rooms, lounge, coffee bar, and WiFi.
- Square Feet 492
- Number of Offices 1
Suite 2-1478
Window Office with access to shared Boardroom, Conference Room, 4 Huddle Rooms, 3 Lounge Areas, Training Room, Coffee Bar, and free WIFI.
- Square Feet 493
- Number of Offices 1
Suite 2-1410
Fully Furnished Window Office with access to shared Boardroom, Conference Room, 4 Huddle Rooms, 3 Lounge Areas, Training Room, Coffee Bar, and free WIFI.
- Square Feet 502
- Number of Offices 1
Suite 2-0460U
Window office includes shared waiting areas, conference rooms, huddle rooms, lounge, coffee bar, and WiFi.
- Square Feet 502
- Number of Offices 1
Suite 1-1606
New Jewelry Center
Private office.
- Square Feet 512
- Number of Offices 1
Suite 1-1608
New Jewelry Center
Private office.
- Square Feet 520
- Number of Offices 1
Suite 1-1124
Window office includes shared waiting areas, conference rooms, huddle rooms, lounge, coffee bar, and WiFi.
- Square Feet 529
- Number of Offices 1
Suite 2-0825
Reception Area, 1 Window Office, 1 Closets
- Square Feet 535
- Number of Offices 1
Suite 2-0602
Reception, 1 window office & work area
- Square Feet 548
- Number of Offices 1
Suite 2-0350
Reception, 1 window office & work area
- Square Feet 554
- Number of Offices 1
Suite 2-1484
Window Office with access to shared Boardroom, Conference Room, 4 Huddle Rooms, 3 Lounge Areas, Training Room, Coffee Bar, Free Wi-Fi
- Square Feet 555
- Number of Offices 1
Suite 2-0264
Private reception area and 1 Window Office, 1 Interior Office. Includes shared conference rooms, huddle rooms, lounge, coffee bar, and WiFi.
- Square Feet 558
- Number of Offices 2
Suite 1-1166
Private reception area and window office. Includes shared conference rooms, huddle rooms, lounge, coffee bar, and WiFi.
- Square Feet 558
- Number of Offices 1
Suite 1-1180
Private reception area and window office. Includes shared conference rooms, huddle rooms, lounge, coffee bar, and WiFi.
- Square Feet 558
- Number of Offices 1
Suite 1-1128
Private reception area and window office. Includes shared conference rooms, huddle rooms, lounge, coffee bar, and WiFi.
- Square Feet 564
- Number of Offices 1
Suite 1-0630D
Executive Interior office with closet & shared access to waiting area and coffee bar.
- Square Feet 565
- Number of Offices 1
Suite 2-0820
Glass Front Door, Reception, window office with transaction window, work area & Storage
- Square Feet 572
- Number of Offices 2
Suite 2-0355
- Square Feet 572
- Number of Offices 1
Suite 2-1404
Fully Furnished Window Office with access to shared Boardroom, Conference Room, 4 Huddle Rooms, 3 Lounge Areas, Training Room, Coffee Bar, and free WIFI.
- Square Feet 574
- Number of Offices 1
Suite 1-0722
Reception Area, 1 Window Office, Work Area
- Square Feet 577
- Number of Offices 1
Suite 2-1406
Fully Furnished Window Office with access to shared Boardroom, Conference Room, 4 Huddle Rooms, 3 Lounge Areas, Training Room, Coffee Bar, and free WIFI.
- Square Feet 579
- Number of Offices 1
Suite 1-0888
- Square Feet 588
Suite 1-1108
Private reception area and window office. Includes shared conference rooms, huddle rooms, lounge, coffee bar, and WiFi.
- Square Feet 590
- Number of Offices 1
Suite 2-0320
- Square Feet 590
- Number of Offices 1
Suite 2-0565
- Square Feet 592
- Number of Offices 1
Suite 2-0570
Reception with sidelight window, 1 window office & work area
- Square Feet 592
- Number of Offices 1
Suite 1-1126
Private reception area and window office. Includes shared conference rooms, huddle rooms, lounge, coffee bar, and WiFi.
- Square Feet 594
- Number of Offices 1
Suite 1-1164
Window office includes shared waiting areas, conference rooms, huddle rooms, lounge, coffee bar, and WiFi.
- Square Feet 594
- Number of Offices 1
Suite 1-1065
Reception Area, 1 Window Office, Work Area
- Square Feet 600
- Number of Offices 1
Suite 2-0850
small reception area with one long back window office.
- Square Feet 600
- Number of Offices 1
Suite 1-1132
Private reception area and window office. Includes shared conference rooms, huddle rooms, lounge, coffee bar, and WiFi.
- Square Feet 604
- Number of Offices 1
Suite 2-0520
Upgraded Reception, 1 window office, 1 interior office & work area
- Square Feet 605
- Number of Offices 2
Suite 2-1408
Fully Furnished Window Office with access to shared Boardroom, Conference Room, 4 Huddle Rooms, 3 Lounge Areas, Training Room, Coffee Bar, and free WIFI.
- Square Feet 607
- Number of Offices 1
Suite 2-1428
Window Office with access to shared Boardroom, Conference Room, 4 Huddle Rooms, 3 Lounge Areas, Training Room, Coffee Bar, and free WIFI.
- Square Feet 614
- Number of Offices 1
Suite 2-1438
Window Office with access to shared Boardroom, Conference Room, 4 Huddle Rooms, 3 Lounge Areas, Training Room, Coffee Bar, and free WIFI.
- Square Feet 626
- Number of Offices 1
Suite 1-0630K
Corner Executive Window Office with access to shared waiting area & coffee bar.
- Square Feet 634
- Number of Offices 1
Suite 2-0905
Reception, 1 window office & 1 interior office
- Square Feet 637
- Number of Offices 2
Suite 2-0604
Large reception, 1 window office & work area
- Square Feet 664
- Number of Offices 1
Suite 1-1142
Private reception area and window office. Includes shared conference rooms, huddle rooms, lounge, coffee bar, and WiFi.
- Square Feet 677
- Number of Offices 1
Suite 1-1194
Private reception area and window office. Includes shared conference rooms, huddle rooms, lounge, coffee bar, and WiFi.
- Square Feet 677
- Number of Offices 1
Suite 1-0605
Large Reception, 1 Window Office, 1 Interior Office & Storage
- Square Feet 685
- Number of Offices 2
Suite 2-0888
Reception Area, 1 Window Office, 1 Interior Office, Work Area
- Square Feet 695
- Number of Offices 2
Suite 1-1604
New Jewelry Center
Private office.
- Square Feet 698
- Number of Offices 1
Suite 2-1460
Window Office with access to shared Boardroom, Conference Room, Huddle Rooms, Lounge Areas, Training Room, Coffee Bar, and free WIFI.
- Square Feet 712
- Number of Offices 1
Suite 2-0996
Reception, 1 window office, 1 interior office
- Square Feet 726
- Number of Offices 2
Suite 1-0828
Reception, 1 window office, work area & storage
- Square Feet 766
- Number of Offices 2
Suite 1-1810B
Reception Area, 1 Interior Office, Open Area, Work Area, 1 Entrance
- Square Feet 776
- Number of Offices 1
Suite 2-0460K
Window office includes shared waiting areas, conference rooms, huddle rooms, lounge, coffee bar, and WiFi.
- Square Feet 777
- Number of Offices 1
Suite 1-0515
Reception Area, 1 Window Office, 1 Interior Office, 1 Entrance
- Square Feet 791
- Number of Offices 2
Suite 2-0268
Private reception area and 2 window office. Includes shared conference rooms, huddle rooms, lounge, coffee bar, and WiFi.
- Square Feet 798
- Number of Offices 2
Suite 2-0246
Private reception area and 2 window office. Includes shared conference rooms, huddle rooms, lounge, coffee bar, and WiFi.
- Square Feet 809
- Number of Offices 2
Suite 1-1975
Reception Area, 1 Window Office, File Or Storage Area, 1 Closets
- Square Feet 819
- Number of Offices 1
Suite 1-0530
- Square Feet 840
- Number of Offices 3
Suite 1-1980
- Square Feet 840
- Number of Offices 2
Suite 2-0815
- Square Feet 844
- Number of Offices 3
Suite 2-1442
Window Office with access to shared Boardroom, Conference Room, 4 Huddle Rooms, 3 Lounge Areas, Training Room, Coffee Bar, and free WIFI.
- Square Feet 850
- Number of Offices 1
Suite 1-0610
- Square Feet 855
- Number of Offices 3
Suite 2-0665
Reception, 2 window offices, work area & storage
- Square Feet 858
- Number of Offices 2
Suite 1-1525
Reception Area, 1 Window Office, 1 Interior Office
- Square Feet 859
- Number of Offices 2
Suite 2-1464
Corner Window Office with shared amenities such as waiting area, small and large meeting rooms
- Square Feet 886
- Number of Offices 1
Suite 1-1622
Reception Area, 1 Window Office, Break Area, Sink, Corner Location, 1 Entrance
- Square Feet 902
- Number of Offices 1
Suite 1-1690
Reception Area, 1 Window Office, Open Area
- Square Feet 914
- Number of Offices 1
Suite 1-1700
Reception Area, 2 Window Offices, 1 Interior Office
- Square Feet 939
- Number of Offices 3
Suite 2-0670
Reception Area, 2 Window Offices, Work Area, 1 Closets
- Square Feet 978
- Number of Offices 2
Suite 1-1808
Reception area, one window office and one interior office.
- Square Feet 985
- Number of Offices 2
Suite 1-0510
Reception
1 Interior Office
Break Room with Sink
1 Window Office
- Square Feet 1,028
- Number of Offices 2
Suite 1-1970
Glass Front Door Entry, Reception & 2 window offices
- Square Feet 1,032
- Number of Offices 2
Suite 1-0670
Reception Area, 2 Window Offices, Work Area, 1 Closets
- Square Feet 1,044
- Number of Offices 2
Suite 1-0405
Reception Area, 1 Window Office, 1 Interior Office, 1 Conference Room
- Square Feet 1,046
- Number of Offices 3
Suite 2-0988
Reception Area, 2 Window Offices, 1 Interior Office
- Square Feet 1,050
- Number of Offices 3
Suite 1-1940
Large Reception, 2 window offices & 1 interior office
- Square Feet 1,100
- Number of Offices 3
Suite 2-0575
Glass Herculite Front Door, Upgraded Tile Reception, 2 Window Offices, Work Area & Storage
- Square Feet 1,151
- Number of Offices 2
Suite 2-0995
Reception, 1 window office, 2 interior offices and conference room
- Square Feet 1,154
- Number of Offices 4
Suite 1-0410
Reception Area, 1 Window Office, 1 Interior Office, Open Area, Sink, File Or Storage Area, 1 Closets
- Square Feet 1,206
- Number of Offices 2
Suite 1-1602
New Jewelry Center
Private reception and two offices.
- Square Feet 1,251
- Number of Offices 2
Suite 2-0885
- Square Feet 1,300
- Number of Offices 5
Suite 1-1945
Reception, 2 window offices, 1 interior office, closet
- Square Feet 1,368
- Number of Offices 3
Suite 1-0552
2 window offices, 1 interior office, copy room, break room w/sink, server room & storage
- Square Feet 1,442
- Number of Offices 4
Suite 2-0125
Reception Area, 1 Bullpen, Open Area, 1 Entrance
- Square Feet 1,454
- Number of Offices 1
Suite 2-0608
Glass Front Door, Reception, 4 Window Offices & Work Area
- Square Feet 1,467
- Number of Offices 4
Suite 1-1640
Reception Area, 1 Window Office, 1 Interior Office, Open Area, 1 Entrance
- Square Feet 1,477
- Number of Offices 2
Suite 1-1910
Reception, 3 window offices, 1 interior office & storage
- Square Feet 1,510
- Number of Offices 4
Suite 2-0405
- Square Feet 1,517
- Number of Offices 3
Suite 1-1735
Reception Area, 3 Window Offices, 2 Interior Offices, Open Area
- Square Feet 1,520
- Number of Offices 5
Suite 1-1840
Reception Area, 3 Window Offices, Sink, Work Area, File Or Storage Area, 1 Closets, 1 Entrance
- Square Feet 1,539
- Number of Offices 3
Suite 1-0505
- Square Feet 1,631
- Number of Offices 5
Suite 1-0570
Reception Area, 3 Window Offices, 2 Interior Offices, 1 Conference Room, Open Area, Break Area, Sink, File Or Storage Area
- Square Feet 1,651
- Number of Offices 6
Suite 1-1860
Reception Area, 3 Window Offices, 1 Conference Room, Work Area, Corner Location, 1 Entrance
- Square Feet 1,677
- Number of Offices 4
Suite 1-0485
Reception Area, 3 Window Offices, 1 Interior Office, 1 Bullpen, Work Area, Corner Location
- Square Feet 1,680
- Number of Offices 5
Suite 1-1725
3 Window Offices, 3 Interior Offices, 1 Conference Room, Kitchen, Sink, File Or Storage Area, 1 Closets, 1 Entrance
- Square Feet 1,721
- Number of Offices 7
Suite 2-0635
Reception Area, 4 Window Offices, open area for cubicles.
- Square Feet 1,733
- Number of Offices 4
Suite 1-0165
Reception Area, 3 Window Offices, 1 Conference Room, Kitchen, Break Area, Sink, Corner Location
- Square Feet 1,834
- Number of Offices 4
Suite 1-1590
Reception Area, 3 Window Offices, 2 Interior Offices, 1 Conference Room, Open Area, Work Area, File Or Storage Area
- Square Feet 1,867
- Number of Offices 6
Suite 2-0995.01
1 Window Office, 2 Interior Offices, 1 Conference Room, Work Area, Corner Location
- Square Feet 1,880
- Number of Offices 4
Suite 1-1015
Reception Area, 3 Window Offices, 2 Interior Offices, 1 Bullpen, Open Area, Work Area, 2 Entrances
- Square Feet 1,904
- Number of Offices 6
Suite 2-0310
Reception, 3 window offices, 2 interior offices, sink, and a work area
- Square Feet 1,934
- Number of Offices 3
Suite 1-0472
Reception Area, 4 Window Offices, Open Area
- Square Feet 1,953
- Number of Offices 4
Suite 2-0885.01
Reception Area, 5 Window Offices, 2 Interior Offices, Kitchen, Sink, Work Area, File Or Storage Area, 1 Closets, Corner Location
- Square Feet 1,995
- Number of Offices 7
Suite 1-0690
Reception, 4 window offices, 2 interior offices and conference room
- Square Feet 2,013
- Number of Offices 7
Suite 2-1428.01
Reception Area, 5 Window Offices
- Square Feet 2,040
- Number of Offices 5
Suite 2-0440
Reception with Sidelight, 5 window offices, 1 interior office, and File Or Storage Area
- Square Feet 2,103
- Number of Offices 6
Suite 1-0475
Furnished office. Reception Area, 2 Window Offices, 1 Training Room, 1 Interior Office, Open Area, Break Area, Sink, Work Area, Corner Location, 1 Entrance.
- Square Feet 2,136
- Number of Offices 5
Suite 1-0710
Reception Area, 4 Window Offices, 1 Interior Office, Break Area, Sink, 1 Closets, Corner Location, 1 Entrance
- Square Feet 2,172
- Number of Offices 5
Suite 2-0700
Reception Area, 1 Window Office, 1 Bullpen
- Square Feet 2,231
- Number of Offices 2
Suite 1-0645
Reception Area, 4 Window Offices, 1 Bullpen, Open Area, Break Area, Sink, File Or Storage Area, 1 Closets, Corner Location, 1 Entrance
- Square Feet 2,259
- Number of Offices 5
Suite 1-1184.01
Reception Area, 5 Window Offices
- Square Feet 2,269
- Number of Offices 5
Suite 2-1000
Reception, 3 window offices, 2 interior offices, conference room & break room with a sink
- Square Feet 2,278
- Number of Offices 5
Suite 2-0560
Glass entry door with Marble reception flooring with conference room just off of the reception area. 4 window offices including a work and storage area. Views of the Galleria.
- Square Feet 2,370
- Number of Offices 6
Suite 1-0303
- Square Feet 2,375
- Number of Offices 4
Suite 1-1950
Large Reception, Bullpen, and 4 Window Offices
- Square Feet 2,407
- Number of Offices 4
Suite 2-0380
Perfect for medical or dental clients. This suite has a lovely reception & waiting area, multiple exam rooms, a private restroom and multiple sinks.
- Square Feet 2,448
- Number of Offices 5
Suite 1-0805
Reception, 5 Window Offices, 3 Interior Offices, Work Area, and 2 Entrances
- Square Feet 2,475
- Number of Offices 9
Suite 2-0310.01
Reception Area, 4 Window Offices, 1 Interior Office, Sink, Work Area
- Square Feet 2,524
- Number of Offices 5
Suite 2-0815.01
Reception Area, 4 Window Offices, 1 Conference Room, Open Area, 2 Closets
- Square Feet 2,551
- Number of Offices 5
Suite 1-0180
This suite is located on the 1st floor next to our Conference room. It has Double Glass Entry Doors, a Bullpen area, 3 Window Offices, 1 conference room, 1 Interior Office and 1 Storage closet.
- Square Feet 2,576
- Number of Offices 6
Suite 1-0605.01
- Square Feet 2,609
Suite 1-1680
Reception Area, 3 Window Offices, Open Area, File Or Storage Area, Corner Location, 2 Entrances
- Square Feet 2,721
- Number of Offices 3
Suite 2-0660.01
Reception Area, 4 Window Offices, 3 Interior Offices, Work Area, 1 Closets, Corner Location
- Square Feet 2,738
- Number of Offices 7
Suite 2-0705
Reception & Large Window Bullpen with 20 cubicles.
- Square Feet 2,798
- Number of Offices 1
Suite 2-0560.01
- Square Feet 2,962
Suite 2-0490
Dental office with reception, rest room, exam rooms, storage, and space for 4 dental chairs.
- Square Feet 3,058
- Number of Offices 5
Suite 1-1840.01
Reception Area, 7 Window Offices, 2 Interior Offices, 1 Conference Room, Kitchen, Break Area, Sink, Work Area, File Or Storage Area, 1 Closets, Corner Location
- Square Feet 3,216
- Number of Offices 10
Suite 1-1162.01
Reception Area, 7 Window Offices, 1 Conference Room
- Square Feet 3,296
- Number of Offices 8
Suite 1-1940.01
Reception Area, 6 Window Offices, 2 Interior Offices, 1 Conference Room, Work Area, File Or Storage Area, Corner Location
- Square Feet 3,500
- Number of Offices 9
Suite 1-0750
Glass front entry door, Upgraded Concrete Floors, Reception, 7 Window Offices, 2 Interior Offices, Conference Room, Bullpen, Break Area & 2 Entrances.
- Square Feet 3,500
- Number of Offices 10
Suite 2-0978
- Square Feet 3,512
- Number of Offices 9
Suite 1-0550
Reception with transaction counter, 12 medical exam rooms, 2 restrooms, 9 exam room sinks, 2 sink nurse station, work area with file closet.
- Square Feet 3,590
Suite 1-0550
Private reception and waiting area, 7 exam rooms with a sink, nurses station, lab, private restroom and 2 general offices.
- Square Feet 3,590
- Number of Offices 10
Suite 1-1750
Reception Area, 6 Window Offices, 1 Interior Office, 1 Conference Room, Open Area, Break Area, Sink, File Or Storage Area, 2 Closets, Corner Location
- Square Feet 3,628
- Number of Offices 8
Suite 2-0938
Reception, 8 window offices, 5 interior offices, conference room & break room
- Square Feet 3,908
- Number of Offices 14
Suite 2-0460T.01
Reception Area, 2 Window Offices, 1 Conference Room, Open Area, Kitchen, Break Area, Sink 5, Work Area, File Or Storage Area, 2 Closets, Corner Location
- Square Feet 3,932
- Number of Offices 3
Suite 1-0160
Reception Area, 6 Window Offices, 1 Conference Room, bull pen area, Open Area, Kitchen, Break Area, Bar Area, Sink, Corner Location
- Square Feet 4,039
- Number of Offices 8
Suite 2-0905.01
Reception Area, 5 Window Offices, 5 Interior Offices, 1 Conference Room, Open Area, Kitchen, Break Area, Sink, 2 Rest Rooms, Work Area, File Or Storage Area, Corner Location
- Square Feet 4,149
- Number of Offices 11
Suite 2-0100
Excellent lobby exposure. Corner location with reception area, 6 window offices, private restrooms, break room and storage.
- Square Feet 4,170
- Number of Offices 7
Suite 1-0420
Reception Area, 6 Window Offices, 2 Interior Offices, 1 Conference Room, Open Area, break room, & restroom, Sink, Work Area, File Or Storage Area, Corner Location
- Square Feet 4,305
- Number of Offices 9
Suite 1-0630.WS
Reception Area, 7 Window Offices, 5 Interior Offices, Open Area, Work Area, File Or Storage Area, 1 Closets, Corner Location, 2 Entrances
- Square Feet 4,495
- Number of Offices 12
Suite 1-1660
Reception Area, 8 Window Offices, 1 Interior Office, 1 Conference Room, Open Area, File Or Storage Area, 1 Closets
- Square Feet 4,601
- Number of Offices 10
Suite 1-0300
- Square Feet 5,240
- Number of Offices 6
Suite 1-1500
Reception Area, 8 Window Offices, 6 Interior Offices, 1 Conference Room, Kitchen, Break Area, Sink, File Or Storage Area, 1 Closets, Corner Location
- Square Feet 5,246
- Number of Offices 15
Suite 1-1760
Reception Area, 8 Window Offices, 1 Interior Office, 1 Conference Room, 1 Bullpen, Open Area, Work Area, File Or Storage Area, 2 Closets, Corner Location
- Square Feet 5,253
- Number of Offices 11
Suite 2-1610
3 Window Offices, Open Bullpen with Sink
- Square Feet 5,430
- Number of Offices 4
Suite 1-0410.01
Reception Area, 7 Window Offices, 3 Interior Offices, 1 Conference Room, Open Area, Kitchen, Break Area, Sink, Work Area, File Or Storage Area, 1 Closets, Corner Location
- Square Feet 5,511
- Number of Offices 11
Suite 1-2000
Reception with large waiting area and transaction window for check in, interior open admin area with built in desk and storage cabinets, 2 glass enclosed interior conference rooms, one large IT closet with built in shelves, 6 window offices with herculite
- Square Feet 5,715
- Number of Offices 8
Suite 1-0472.01
Reception Area, 8 Window Offices, 2 Interior Offices, 2 Conference Rooms, Open Area, Work Area, Corner Location
- Square Feet 5,769
- Number of Offices 12
Suite 2-1050
Reception Area, 13 Window Offices, 5 Interior Offices, 1 Conference Room, 1 Bullpen, Open Area, Kitchen, Break Area, Bar Area, Sink, Work Area, Corner Location, 3 Entrances
- Square Feet 6,813
- Number of Offices 20
Suite 2-0725
Reception Area, 8 Window Offices, 1 Conference Room, 1 Bullpen, Open Area, Kitchen, Sink, Corner Location
- Square Feet 7,109
- Number of Offices 10
Suite 2-1550
Reception Area, 11 Window Offices, 3 Interior Offices, 2 Conference Rooms, Open Area, Corner Location
- Square Feet 7,343
- Number of Offices 16
Suite 1-0510.01
Reception Area, 12 Window Offices, 4 Interior Offices, Kitchen, Break Area, 13 Sink, 2 Rest Rooms, File Or Storage Area, Corner Location
- Square Feet 7,691
- Number of Offices 16
Suite 1-0470.01
Reception Area, 15 Window Offices, 6 Interior Offices, 1 Training Room, Open Area, Kitchen, Break Area, Sink, Work Area, File Or Storage Area, 1 Closets
- Square Feet 8,164
- Number of Offices 21
Suite 2-0460.WS
Reception Area, 17 Window Offices, 8 Interior Offices, Includes shared conference rooms, huddle rooms, lounge, coffee bar, Break Area, Work Area, Corner Location, 3 Entrances, Free Wi-Fi
- Square Feet 8,746
- Number of Offices 27
Suite 2-1500
Reception Area, 13 Window Offices, 5 Interior Offices, 1 Conference Room, 1 Bullpen, Open Area, Corner Location
- Square Feet 9,694
- Number of Offices 20
Suite 1-1725.01
Reception Area, 11 Window Offices, 15 Interior Offices, 2 Conference Rooms, Open Area, Kitchen, Break Area, Sink, Work Area, File Or Storage Area, 3 Closets, Corner Location, 4 Entrances
- Square Feet 12,122
- Number of Offices 28
Suite 2-1500.01
Reception Area, 24 Window Offices, 8 Interior Offices, 4 Conference Rooms, 1 Bullpen, Open Area, Kitchen, Sink, Work Area, File Or Storage Area, 1 Closets, Corner Location
- Square Feet 17,037
- Number of Offices 37
Suite 2-0200.WS
Full floor.
Includes shared waiting areas, conference rooms, huddle rooms, lounge, coffee bar, and WiFi.
- Square Feet 20,116
Suite 1-0900
10 window offices, breakroom, restrooms contain 7 stalls including handicap, built in cubicles which can seat approximately 305 people. large conference/meeting room
- Square Feet 20,570
- Number of Offices 14
Suite 1-1400
Nine window offices, 2 interior offices, conference room, break room, 4 large bullpens with built in cubicles.
- Square Feet 20,570
- Number of Offices 16
Suite 1-1100.WS
Full Floor, High-end finishes, lounge, coffee bar, several conference rooms and break areas, wired for WiFi
- Square Feet 20,570
Suite 2-1100
Full floor suite with kitchen area h This floor has 9' tall ceilings which are higher than our normal 8' height. 6 window offices, 7 interior offices and a conference room.
- Square Feet 20,570
- Number of Offices 14
Suite 2-1400.WS
Full Floor, Free Wi-Fi. Reception Area, 36 Window Offices, 12 Interior Offices, 3 Conference Rooms, 2 Bullpens, Open Area, Break Area, 1 Rest Room, Work Area, File Or Storage Area, 1 Closets
- Square Feet 20,570
- Number of Offices 53
Suite 2-1200
Reception Area, 17 Window Offices, 7 Interior Offices, 1 Conference Room, 1 Bullpen, Open Area, Kitchen, Break Area, Sink, 1 Rest Room, Work Area, File Or Storage Area, 4 Closets, C
- Square Feet 20,570
- Number of Offices 26
7676 Hillmont, Houston, TX 77040, USA
7676 Hillmont
7676 Hillmont, Houston, TX 77040, USA
68 Available Units
Suite 290N
Window office includes shared waiting areas, conference rooms, huddle rooms, lounge, coffee bar, Free Wi-Fi
- Square Feet 238
- Number of Offices 1
Suite 310-M
Interior office includes shared waiting areas, conference rooms, huddle rooms, lounge, coffee bar, and WiFi.
- Square Feet 256
- Number of Offices 1
Suite 344-14
Window office includes shared waiting areas, conference rooms, huddle rooms, lounge, coffee bar, Free Wi-Fi
- Square Feet 257
- Number of Offices 1
Suite 310-N
Window office includes shared waiting areas, conference rooms, huddle rooms, lounge, coffee bar, and WiFi.
- Square Feet 262
- Number of Offices 1
Suite 310-E
Window office includes shared waiting areas, conference rooms, huddle rooms, lounge, coffee bar, and WiFi.
- Square Feet 264
- Number of Offices 1
Suite 344-04
Window office includes shared waiting areas, conference rooms, huddle rooms, lounge, coffee bar, and WiFi.
- Square Feet 270
- Number of Offices 1
Suite 344-20
Interior office includes shared waiting areas, conference rooms, huddle rooms, lounge, coffee bar, and WiFi.
- Square Feet 274
- Number of Offices 1
Suite 310-G
Window office includes shared waiting areas, conference rooms, huddle rooms, lounge, coffee bar, and WiFi.
- Square Feet 276
- Number of Offices 1
Suite 344-11
Window office includes shared waiting areas, conference rooms, huddle rooms, lounge, coffee bar, and WiFi.
- Square Feet 279
- Number of Offices 1
Suite 240Q
Interior office includes shared waiting areas, conference rooms, huddle rooms, lounge, coffee bar, and WiFi.
- Square Feet 281
- Number of Offices 1
Suite 240S
Interior office includes shared waiting areas, conference rooms, huddle rooms, lounge, coffee bar, and WiFi.
- Square Feet 281
- Number of Offices 1
Suite 344-22
Interior office includes shared waiting areas, conference rooms, huddle rooms, lounge, coffee bar, Free Wi-Fi
- Square Feet 285
- Number of Offices 1
Suite 344-26
Fully furnished & decorated interior office. Includes shared waiting areas, conference rooms, huddle rooms, lounge, coffee bar, and WiFi.
- Square Feet 289
- Number of Offices 1
Suite 344-08
Window office includes shared waiting areas, conference rooms, huddle rooms, lounge, coffee bar, and WiFi.
- Square Feet 291
- Number of Offices 1
Suite 310-F
Window office includes shared waiting areas, conference rooms, huddle rooms, lounge, coffee bar, and WiFi.
- Square Feet 310
- Number of Offices 1
Suite 128A
Interior office includes shared waiting areas, conference rooms, huddle rooms, lounge, coffee bar, and WiFi.
- Square Feet 312
- Number of Offices 1
Suite 128B
Interior office includes shared waiting areas, conference rooms, huddle rooms, lounge, coffee bar, Free Wi-Fi
- Square Feet 312
- Number of Offices 1
Suite 344-25
Interior Furnished office includes shared waiting areas, conference rooms, huddle rooms, lounge, coffee bar, Free Wi-Fi
- Square Feet 317
- Number of Offices 1
Suite 310-J
Window office includes shared waiting areas, conference rooms, huddle rooms, lounge, coffee bar, and WiFi.
- Square Feet 318
- Number of Offices 1
Suite 240P
Fully Furnished Interior office includes shared waiting areas, conference rooms, huddle rooms, lounge, coffee bar, and WiFi.
- Square Feet 319
- Number of Offices 1
Suite 290O
Window office includes shared waiting areas, conference rooms, huddle rooms, lounge, coffee bar, and WiFi. dle Rooms, Lounges & Free WIFI
- Square Feet 324
- Number of Offices 1
Suite 290M
Fully furnished & decorated window office. Includes shared waiting areas, conference rooms, huddle rooms, lounge, coffee bar, Free Wi-Fi
- Square Feet 331
- Number of Offices 1
Suite 240J
Window office includes shared waiting areas, conference rooms, huddle rooms, lounge, coffee bar, and WiFi.
- Square Feet 333
- Number of Offices 1
Suite 344-10
Window office includes shared waiting areas, conference rooms, huddle rooms, lounge, coffee bar, and WiFi.
- Square Feet 335
- Number of Offices 1
Suite 290L
Window office includes shared waiting areas, conference rooms, huddle rooms, lounge, coffee bar, Free Wi-Fi
- Square Feet 335
- Number of Offices 1
Suite 290D
Window office includes shared waiting areas, conference rooms, huddle rooms, lounge, coffee bar, and WiFi.
- Square Feet 339
- Number of Offices 1
Suite 240N
Interior office includes shared waiting areas, conference rooms, huddle rooms, lounge, coffee bar, and WiFi.
- Square Feet 340
- Number of Offices 1
Suite 240K
Window office includes shared waiting areas, conference rooms, huddle rooms, lounge, coffee bar, and WiFi.
- Square Feet 346
- Number of Offices 1
Suite 344-01
Interior office includes shared waiting areas, conference rooms, huddle rooms, lounge, coffee bar, Free Wi-Fi
- Square Feet 352
- Number of Offices 2
Suite 240G
Window office includes shared waiting areas, conference rooms, huddle rooms, lounge, coffee bar, and WiFi.
- Square Feet 369
- Number of Offices 1
Suite 344-05
Window office includes shared waiting areas, conference rooms, huddle rooms, lounge, coffee bar, and WiFi.
- Square Feet 371
- Number of Offices 1
Suite 240O
Interior office includes shared waiting areas, conference rooms, huddle rooms, lounge, coffee bar, and WiFi.
- Square Feet 386
- Number of Offices 1
Suite 240I
Window office includes shared waiting areas, conference rooms, huddle rooms, lounge, coffee bar, and WiFi.
- Square Feet 386
- Number of Offices 1
Suite 310-I
Interior office includes shared waiting areas, conference rooms, huddle rooms, lounge, coffee bar, and WiFi.
- Square Feet 399
- Number of Offices 1
Suite 290B
Interior office includes shared waiting areas, conference rooms, huddle rooms, lounge, coffee bar, and WiFi.
- Square Feet 408
- Number of Offices 1
Suite 290Q
Private Interior office with glass sidelight at entrance. Includes shared conference rooms, huddle rooms, lounge, coffee bar, Free Wi-Fi
- Square Feet 408
- Number of Offices 1
Suite 290P
Private Interior office with glass sidelight at entrance. Includes shared conference rooms, huddle rooms, lounge, coffee bar, and WiFi.
- Square Feet 417
- Number of Offices 1
Suite 290A
Interior office includes shared waiting areas, conference rooms, huddle rooms, lounge, coffee bar, and WiFi.
- Square Feet 419
- Number of Offices 1
Suite 290W
Window office includes shared waiting areas, conference rooms, huddle rooms, lounge, coffee bar, and WiFi.
- Square Feet 421
- Number of Offices 1
Suite 290C
Interior office includes shared waiting areas, conference rooms, huddle rooms, lounge, coffee bar, Free Wi-Fi
- Square Feet 421
- Number of Offices 1
Suite 310-A
Private reception area and interior office. Includes shared conference rooms, huddle rooms, lounge, coffee bar, and WiFi.
- Square Feet 462
- Number of Offices 1
Suite 240A
Window office includes shared waiting areas, conference rooms, huddle rooms, lounge, coffee bar, and WiFi.
- Square Feet 463
- Number of Offices 1
Suite 344-15
Window office includes shared waiting areas, conference rooms, huddle rooms, lounge, coffee bar, and WiFi.
- Square Feet 530
- Number of Offices 1
Suite 344-12
Corner Window office includes shared waiting areas, conference rooms, huddle rooms, lounge, coffee bar, and WiFi.
- Square Feet 545
- Number of Offices 1
Suite 290Y
Private reception area and window office(Atrium View). Includes shared conference rooms, huddle rooms, lounge, coffee bar, and WiFi.
- Square Feet 644
- Number of Offices 1
Suite 290CC
Private reception area and window office. Includes shared conference rooms, huddle rooms, lounge, coffee bar, and WiFi.
- Square Feet 681
- Number of Offices 1
Suite 189C
Reception, Bullpen area, 2 Window offices, 1 Entrance
- Square Feet 1,041
- Number of Offices 3
Suite 189B
Reception Area, 2 Window Offices, 1 Interior Office, 1 Bullpen and one break area w sink.
- Square Feet 1,130
- Number of Offices 4
Suite 185
Reception, 2 Window Offices and 1 Interior Office.
- Square Feet 1,153
- Number of Offices 3
Suite 128.WS
Private Reception Area, 2 Window Offices, 2 Interior Offices. Includes shared waiting areas, conference rooms, huddle rooms, lounge, coffee bar, and WiFi.
- Square Feet 1,248
- Number of Offices 5
Suite 365
5 Interior Offices
w Bullpen
- Square Feet 1,367
- Number of Offices 6
Suite 225
Reception Area, 3 Window Offices, 1 Interior Office, 1 Conference Room, 1 Bullpen, 1 Entrance
- Square Feet 1,470
- Number of Offices 6
Suite 290DD
2 Interior offices with open work area and reception which includes shared waiting areas, conference rooms, huddle rooms, lounge, coffee bar, Free Wi-Fi
- Square Feet 1,503
- Number of Offices 3
Suite 135
Reception, 2 Atrium Window Offices, Interior Office, Conference Room, Break Area w/ sink
- Square Feet 1,553
- Number of Offices 4
Suite 192
Reception Area, 3 Window Offices, 1 Interior Office, Kitchen, Break Area, Sink, Corner Location
- Square Feet 1,781
- Number of Offices 4
Suite 240T
Private reception area and 3 Window offices, 1 Interior Office. Includes shared conference rooms, huddle rooms, lounge, coffee bar, Free Wi-Fi
- Square Feet 2,112
- Number of Offices 4
Suite 200
Reception, 4 Window Offices, 4 Interior Offices, Conference Room, Break Room w/ sink.
- Square Feet 2,130
- Number of Offices 9
Suite 189B.01
Reception Area, 3 Window Offices, 2 Interior Offices, 1 Conference Room, Open Area
- Square Feet 2,171
- Number of Offices 6
Suite 195
Reception, 2 Window Offices, 4 Interior Offices, Work Area, Copy Area, Sink
- Square Feet 2,246
- Number of Offices 6
Suite 155
4 Window Offices, 2 Interior offices, 4 Bullpens, 1 Conference Room, 1 Storage Closet and Sink.
- Square Feet 2,301
- Number of Offices 11
Suite 199
Reception Area, 4 Window Offices, 3 Interior Offices, 1 Break room, File Or Storage Area.
- Square Feet 2,349
- Number of Offices 8
Suite 220
Reception, 3 Window Offices ,4 Interior Offices, Bullpen, Conference Room, Work Area
- Square Feet 2,400
- Number of Offices 9
Suite 375
Reception, 4 Window Offices, 5 Interior Offices, Conference, Bullpen, Closet
- Square Feet 3,858
- Number of Offices 11
Suite 220.01
Reception Area, 6 Window Offices, 6 Interior Offices, 1 Conference Room, Open Area
- Square Feet 3,870
- Number of Offices 13
Suite 310.WS
Reception, 6 Atrium View Window offices, 9 Interior offices, 1 conference room, Including Access to Shared Waiting Area, Conference & Huddle Rooms, Coffee Bar & Lounge, Free Wi-Fi
- Square Feet 4,952
- Number of Offices 16
Suite 344.WS
Reception, 14 Window Offices, 12 Interior Offices, Bullpen, 2 conference Room, 2 Entrances. Includes conference rooms, huddle rooms, lounge, coffee bar, Free Wi-Fi
- Square Feet 7,437
- Number of Offices 29
Suite 240.WS
Reception Area, 13 Window Offices, 11 Interior Offices, 2 Conference Rooms, 1 Bullpen, Open Area, Break Area, Corner Location, 3 Entrances, Includes shared conference rooms, huddle rooms, lounge, coffee bar, Free Wi-Fi
- Square Feet 9,655
- Number of Offices 27
Suite 290.WS
Reception Area, 17 Window Offices, 13 Interior Offices, 1 Conference Room, 1 Bullpen, Open Area, Kitchen, Break Area, Sink, 2 Rest Rooms, Work Area, File Or Storage Area, 2 Closets, Corner Location, 3 Entrances, lounge, coffee bar, Free Wi-Fi
- Square Feet 12,806
- Number of Offices 32
340-350 N Sam Houston Pkwy E, Houston, TX 77060, USA
340-350 N Sam Houston Pkwy E
340-350 N Sam Houston Pkwy E, Houston, TX 77060, USA
51 Available Units
Suite A1041
Interior office includes shared waiting areas, conference rooms, huddle rooms, lounge, coffee bar, and WiFi
- Square Feet 203
- Number of Offices 1
Suite A1043
Interior office includes shared waiting areas, conference rooms, huddle rooms, lounge, coffee bar, and WiFi
- Square Feet 236
- Number of Offices 1
Suite A2037
Interior office includes shared waiting areas, conference rooms, huddle rooms, lounge, coffee bar, and WiFi.
- Square Feet 258
- Number of Offices 1
Suite B250
1 Atrium view office
- Square Feet 258
- Number of Offices 1
Suite A1000
Interior office with atrium includes shared waiting areas, conference rooms, huddle rooms, lounge, coffee bar, and WiFi.
- Square Feet 267
- Number of Offices 1
Suite A1019
Interior office includes shared waiting areas, conference rooms, huddle rooms, lounge, coffee bar, and WiFi
- Square Feet 292
- Number of Offices 1
Suite A1023
Interior office includes shared waiting areas, conference rooms, huddle rooms, lounge, coffee bar, and WiFi
- Square Feet 295
- Number of Offices 1
Suite A2044
Window office includes shared waiting areas, conference rooms, huddle rooms, lounge, coffee bar, and WiFi.
- Square Feet 310
- Number of Offices 1
Suite A160G
Window office
- Square Feet 325
- Number of Offices 1
Suite A1005
Fully Furnished & Decorated Office. Includes shared waiting areas, conference rooms, huddle rooms, lounge, coffee bar, and WiFi.
- Square Feet 326
- Number of Offices 1
Suite A1008
Fully furnished & decorated window office. Includes shared waiting areas, conference rooms, huddle rooms, lounge, coffee bar, and WiFi.
- Square Feet 328
- Number of Offices 2
Suite A1021
Window office includes shared waiting areas, conference rooms, huddle rooms, lounge, coffee bar, and WiFi
- Square Feet 334
- Number of Offices 1
Suite A1009
Window office includes shared waiting areas, conference rooms, huddle rooms, lounge, coffee bar, and WiFi.
- Square Feet 338
- Number of Offices 1
Suite A1006
Interior office includes shared waiting areas, conference rooms, huddle rooms, lounge, coffee bar, and WiFi.
- Square Feet 376
- Number of Offices 1
Suite A2046
Corner Location, Window office includes shared waiting areas, conference rooms, huddle rooms, lounge, coffee bar, and WiFi.
- Square Feet 377
- Number of Offices 1
Suite A1027
Window office includes shared waiting areas, conference rooms, huddle rooms, lounge, coffee bar, and WiFi
- Square Feet 382
- Number of Offices 1
Suite A160E
Interior office with access to conference room.
- Square Feet 384
- Number of Offices 1
Suite A160H
- Square Feet 392
- Number of Offices 1
Suite A160D
1 Interior Office
- Square Feet 402
- Number of Offices 1
Suite A1003
Window office includes shared waiting areas, conference rooms, huddle rooms, lounge, coffee bar, and WiFi.
- Square Feet 451
- Number of Offices 1
Suite A263
Reception, 1 window office & work area
- Square Feet 488
- Number of Offices 1
Suite A1012
Corner Window Office with Shared Lobby, Conference Room, Huddle Area, Coffee Bar and Lounge, Free Wi-Fi
- Square Feet 500
- Number of Offices 1
Suite B287
Reception, 1 Window Office & Work Area
- Square Feet 592
- Number of Offices 1
Suite B233
Reception, 1 window office & 1 interior office
- Square Feet 594
- Number of Offices 2
Suite A212
Reception, 1 window office & work area
- Square Feet 595
- Number of Offices 1
Suite A209
Reception, 1 Window Office & Work Area
- Square Feet 605
- Number of Offices 1
Suite A211
Reception, 1 Window Office & Work Area
- Square Feet 633
- Number of Offices 1
Suite A235
Reception with Sidelight, 1 Atrium View Office & 1 Interior Office
- Square Feet 648
- Number of Offices 2
Suite A233-01
Reception Area, 1 atrium view office, 1 Interior Office
- Square Feet 730
- Number of Offices 2
Suite A231
Reception, 1 atrium view office & 1 interior office
- Square Feet 737
- Number of Offices 2
Suite A234
Reception with Sidelight, 2
Atrium View Offices, & Balcony Access
- Square Feet 838
- Number of Offices 2
Suite B230
Reception, 2 atrium view offices, 1 Interior Office, and storage closet.
- Square Feet 975
- Number of Offices 3
Suite B203
Reception, Atrium View Office & Bullpen with Sink
- Square Feet 987
- Number of Offices 2
Suite B205
Reception Area, 1 Window Office, 2 Interior Offices, Kitchen, Break Area, Sink
- Square Feet 1,188
- Number of Offices 3
Suite A258
Reception with wood floors, 2 window offices, 3 interior offices, breakroom w/ sink & storage closet
- Square Feet 1,412
- Number of Offices 4
Suite B290
Reception, 2 window offices, 2 interior offices, breakroom with wood floors and sink
- Square Feet 1,540
- Number of Offices 4
Suite B288
Reception Area, 3 Window Offices, Break Area, Sink, File Or Storage Area, 1 Entrance
- Square Feet 1,592
- Number of Offices 3
Suite B285
Reception area with built in desk, 2 window offices, conference room, breakroom and storage room
- Square Feet 1,619
- Number of Offices 4
Suite A261
Reception with Marble Flooring, 4 Atrium View Offices, Closet, and Break Room with Sink
- Square Feet 1,637
- Number of Offices 4
Suite A209.01
Reception Area, 3 Window Offices, 2 interior offices, Work Area
- Square Feet 1,833
- Number of Offices 5
Suite B255
Reception, 3 Atrium View Offices, 1 Interior Office with Private Break Room, Conference Room with Atrium View, Open Work Space, Break Room and Storage Closet
- Square Feet 1,976
- Number of Offices 6
Suite B240
Reception w/ window, 1 corner window office, 3 window offices, large conference room, 1 interior office, & breakroom
- Square Feet 2,026
- Number of Offices 6
Suite B287.01
Reception Area, 3 Window Offices, 1 Interior Office, Open Area, Kitchen, Break Area, Sink
- Square Feet 2,184
- Number of Offices 4
Suite A268
Reception with Sidelight, 4 Atrium View Offices, 1 Interior Offices, 1 Conference Room, 1 Storage Room, and Large Bullpen with Sink.
- Square Feet 2,499
- Number of Offices 8
Suite A263.01
Reception Area, 5 Window Offices, 3 Interior Offices, 1 Conference Room
- Square Feet 2,987
- Number of Offices 9
Suite B285.01
Reception Area, 4 Window Offices, 3 Interior Offices, 1 Conference Room, Kitchen, Break Area, Sink, File Or Storage Area
- Square Feet 3,159
- Number of Offices 8
Suite B205.01
Reception Area, 4 Window Offices, 6 Interior Offices, Open Area, Kitchen, Sink, 1 Rest Room, File Or Storage Area
- Square Feet 3,422
- Number of Offices 10
Suite A107
Reception Area, 1 Interior Office, 1 extra Large Bullpen
- Square Feet 4,395
- Number of Offices 2
Suite A2035.WS
Reception Area, 9 Window Offices, 8 Interior Offices, 1 Conference Room, Includes shared waiting areas, huddle rooms, lounge, coffee bar, and WiFi.
- Square Feet 4,410
- Number of Offices 18
Suite A1000.01
Reception Area, 10 Window Offices, 7 Interior Offices, 1 Conference Room, huddle rooms, lounge, coffee bar, and WiFi.
- Square Feet 5,506
- Number of Offices 18
Suite A1000.WS
Reception Area, 15 Window Offices, 23 Interior Offices, 1 Conference Room, Open Area, Corner Location, huddle rooms, lounge, coffee bar, Mail Room and WiFi.
- Square Feet 10,486
- Number of Offices 39