1300 Bay Area Boulevard
Description
1300 Bay Area Blvd is a professional office building providing quality office space. Many suites have views of the beautifully landscaped exterior. Tenants will also enjoy access to on-site property maintenance, ample parking, and security cameras & video surveillance. Conveniently located in Clear Lake, just off of I-45 and NASA Road 1, close to the Johnson Space Center (NASA), Baybrook Mall, and Clear Lake Regional Medical Center.
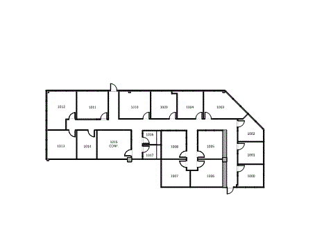
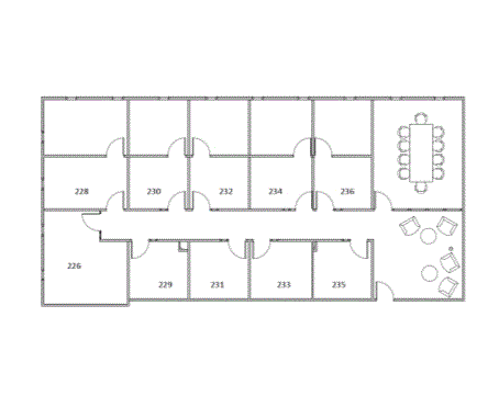
Floor Plans
Suite: B205
- Rentable Square Feet 920
- Number of Offices 2
Suite: B228
- Rentable Square Feet 513
- Number of Offices 1
Suite: B235
- Rentable Square Feet 198
- Number of Offices 1
Suite: B231
- Rentable Square Feet 202
- Number of Offices 1
Suite: B234
- Rentable Square Feet 382
- Number of Offices 1
Suite: B236
- Rentable Square Feet 375
- Number of Offices 1
Suite: B225.WS
- Rentable Square Feet 3,213
- Number of Offices 10
Suite: B150-33
- Rentable Square Feet 189
- Number of Offices 1
Suite: B150-31
- Rentable Square Feet 189
- Number of Offices 1
Suite: B150-24
- Rentable Square Feet 274
- Number of Offices 1
Suite: B150-30
- Rentable Square Feet 189
- Number of Offices 1
Suite: B150-22
- Rentable Square Feet 274
- Number of Offices 1
Suite: B150-21
- Rentable Square Feet 189
- Number of Offices 1
Suite: B150-28
- Rentable Square Feet 412
- Number of Offices 1
Suite: B150-19
- Rentable Square Feet 189
- Number of Offices 1
Suite: B150-26
- Rentable Square Feet 274
- Number of Offices 1
Suite: B150-35
- Rentable Square Feet 189
- Number of Offices 1
Suite: B150-34
- Rentable Square Feet 189
- Number of Offices 1
Suite: B150-18
- Rentable Square Feet 274
- Number of Offices 1
Suite: B150-10
- Rentable Square Feet 189
- Number of Offices 1
Suite: B150-25
- Rentable Square Feet 189
- Number of Offices 1
Suite: B150-15
- Rentable Square Feet 189
- Number of Offices 1
Suite: B150-05
- Rentable Square Feet 189
Suite: B150-06
- Rentable Square Feet 189
- Number of Offices 1
Suite: B150-01
- Rentable Square Feet 461
- Number of Offices 1
Amenities
- Ample Parking
- 24-Hour Badge Access
- Security Cameras, Video Surveillance & Exterior Lighting System
- On-Site Maintenance & Management
- On-site Leasing
- Conference Room
- Huddle Room
- Vending Machines
- Coffee Bar
- Mailroom
- Mail Drop Boxes
- Outside Seating
- Parking : Surface
- Parking : Complimentary
- Lounge Space
- Signage : Monument Sign
- Internet Ready
- Loading Dock
Similar Listings
7322-7324 Southwest Freeway, Houston, TX 77074, USA
7322-7324 Southwest Freeway
7322-7324 Southwest Freeway, Houston, TX 77074, USA
250 Available Units
Suite 2-0219
Interior office includes shared waiting areas, conference rooms, huddle rooms, lounge, coffee bar, and WiFi. Features a built in Desk located near outlet.
- Square Feet 158
- Number of Offices 1
Suite 1-1171
Interior office for 1 with built-in desk. Includes shared waiting areas, conference rooms, huddle rooms, lounge, coffee bar, and WiFi
- Square Feet 162
- Number of Offices 1
Suite 1-1173
Interior office includes shared waiting areas, conference rooms, huddle rooms, lounge, coffee bar, and WiFi. Features a built in Desk located near outlet.
- Square Feet 167
- Number of Offices 1
Suite 1-1113
Interior office includes shared waiting areas, conference rooms, huddle rooms, lounge, coffee bar, and WiFi. Features a built in Desk located near outlet.
- Square Feet 174
- Number of Offices 1
Suite 2-0227
Interior office includes shared waiting areas, conference rooms, huddle rooms, lounge, coffee bar, and WiFi. Features a built in Desk located near outlet.
- Square Feet 176
- Number of Offices 1
Suite 1-1189
Interior office includes shared waiting areas, conference rooms, huddle rooms, lounge, coffee bar, and WiFi. Features a built in Desk located near outlet.
- Square Feet 187
- Number of Offices 1
Suite 2-0460V
Interior office includes shared waiting areas, conference rooms, huddle rooms, lounge, coffee bar, and WiFi. Features a built in Desk located near outlet.
- Square Feet 188
- Number of Offices 1
Suite 2-0273
Interior office includes shared waiting areas, conference rooms, huddle rooms, lounge, coffee bar, and WiFi. Features a built in Desk located near outlet.
- Square Feet 205
- Number of Offices 1
Suite 2-0241
Interior office includes shared waiting areas, conference rooms, huddle rooms, lounge, coffee bar, and WiFi. Features a built in Desk located near outlet.
- Square Feet 212
- Number of Offices 1
Suite 2-0243
Interior office includes shared waiting areas, conference rooms, huddle rooms, lounge, coffee bar, and WiFi. Features a built in Desk located near outlet.
- Square Feet 212
- Number of Offices 1
Suite 2-1425
Workstyle Interior Office includes access to shared waiting area, conference rooms, huddle rooms, coffee bar & WiFi.
- Square Feet 221
- Number of Offices 1
Suite 2-1437
Interior Office with access to shared Boardroom, Conference Room, 4 Huddle Rooms, 3 Lounge Areas, Training Room, Coffee Bar, and free WIFI.
- Square Feet 235
- Number of Offices 1
Suite 2-1423
Interior Office with access to shared Boardroom, Conference Room, 4 Huddle Rooms, 3 Lounge Areas, Training Room, Coffee Bar, and free WIFI.
- Square Feet 238
- Number of Offices 1
Suite 2-0287
Interior office includes shared waiting areas, conference rooms, huddle rooms, lounge, coffee bar, and WiFi. Features a built in Desk located near outlet.
- Square Feet 238
- Number of Offices 1
Suite 2-0291
Interior office includes shared waiting areas, conference rooms, huddle rooms, lounge, coffee bar, and WiFi. Features a built in Desk located near outlet.
- Square Feet 238
- Number of Offices 1
Suite 2-0225
Interior office includes shared waiting areas, conference rooms, huddle rooms, lounge, coffee bar, and WiFi. Features a built in Desk located near outlet.
- Square Feet 240
- Number of Offices 1
Suite 2-0233
Interior office includes shared waiting areas, conference rooms, huddle rooms, lounge, coffee bar, and WiFi. Features a built in Desk located near outlet.
- Square Feet 240
- Number of Offices 1
Suite 1-0630F
1 Window Office, 1 Entrance
- Square Feet 242
- Number of Offices 1
Suite 2-0281
Interior office includes shared waiting areas, conference rooms, huddle rooms, lounge, coffee bar, and WiFi. Features a built in Desk located near outlet.
- Square Feet 246
- Number of Offices 1
Suite 1-1601
New Jewelry Center
Single office with access to reception and conference area.
- Square Feet 260
- Number of Offices 1
Suite 1-1603
New Jewelry Center
Private office with access to reception and conference area.
- Square Feet 263
- Number of Offices 1
Suite 1-1628
New Jewelry Center Private office.
- Square Feet 267
- Number of Offices 1
Suite 1-0630G
Executive interior office with shared access to waiting area & coffee bar.
- Square Feet 267
- Number of Offices 1
Suite 2-0255
Interior office includes shared waiting areas, conference rooms, huddle rooms, lounge, coffee bar, and WiFi.
- Square Feet 270
- Number of Offices 1
Suite 2-0275
Interior office includes shared waiting areas, conference rooms, huddle rooms, lounge, coffee bar, and WiFi. Features a built in Desk located near outlet.
- Square Feet 270
- Number of Offices 1
Suite 1-1626
New Jewelry Center
Private office.
- Square Feet 274
- Number of Offices 1
Suite 2-0460O
Window office includes shared waiting areas, conference rooms, huddle rooms, lounge, coffee bar, and WiFi.
- Square Feet 274
- Number of Offices 1
Suite 2-0257
Interior office includes shared waiting areas, conference rooms, huddle rooms, lounge, coffee bar, and WiFi.
- Square Feet 278
- Number of Offices 1
Suite 2-0277
Interior office includes shared waiting areas, conference rooms, huddle rooms, lounge, coffee bar, and WiFi. Features a built in Desk located near outlet.
- Square Feet 278
- Number of Offices 1
Suite 1-1630
New Jewelry Center
Private office.
- Square Feet 280
- Number of Offices 1
Suite 1-1624
New Jewelry Center
Private office with access to reception and conference area.
- Square Feet 287
- Number of Offices 1
Suite 1-1134
Window office includes shared waiting areas, conference rooms, huddle rooms, lounge, coffee bar, and WiFi.
- Square Feet 287
- Number of Offices 1
Suite 1-0630H
Executive Window Office with shared access to waiting area and coffee bar.
- Square Feet 292
- Number of Offices 1
Suite 1-1605
New Jewelry Center
Private office.
- Square Feet 296
- Number of Offices 1
Suite 1-1159
Interior office includes shared waiting areas, conference rooms, huddle rooms, lounge, coffee bar, and WiFi.
- Square Feet 298
- Number of Offices 1
Suite 2-0286
Fully furnished & decorated window office includes shared waiting areas, conference rooms, huddle rooms, lounge, coffee bar, and WiFi.
- Square Feet 306
- Number of Offices 1
Suite 2-0218
Window office includes shared waiting areas, conference rooms, huddle rooms, lounge, coffee bar, and WiFi.
- Square Feet 316
- Number of Offices 1
Suite 2-0220
Window office includes shared waiting areas, conference rooms, huddle rooms, lounge, coffee bar, and WiFi.
- Square Feet 316
- Number of Offices 1
Suite 1-1618
New Jewelry Center
Private office.
- Square Feet 320
- Number of Offices 1
Suite 2-0274
Window office includes shared waiting areas, conference rooms, huddle rooms, lounge, coffee bar, and WiFi
- Square Feet 330
- Number of Offices 1
Suite 2-0282
Window office includes shared waiting areas, conference rooms, huddle rooms, lounge, coffee bar, and WiFi.
- Square Feet 330
- Number of Offices 1
Suite 2-0284
Window office includes shared waiting areas, conference rooms, huddle rooms, lounge, coffee bar, and WiFi.
- Square Feet 330
- Number of Offices 1
Suite 2-0259
Interior office. Includes shared conference rooms, huddle rooms, lounge, coffee bar, and WiFi. Features a built in Desk located near outlet.
- Square Feet 334
- Number of Offices 1
Suite 1-1610
New Jewelry Center
Private office.
- Square Feet 335
- Number of Offices 1
Suite 2-0272
Window office includes shared waiting areas, conference rooms, huddle rooms, lounge, coffee bar, and WiFi.
- Square Feet 335
- Number of Offices 1
Suite 1-1190
Window office includes shared waiting areas, conference rooms, huddle rooms, lounge, coffee bar, and WiFi.
- Square Feet 339
- Number of Offices 1
Suite 2-0460B
Window office includes shared waiting areas, conference rooms, huddle rooms, lounge, coffee bar, and WiFi.
- Square Feet 339
- Number of Offices 1
Suite 1-1614
New Jewelry Center
Private office.
- Square Feet 340
- Number of Offices 1
Suite 1-1612
New Jewelry Center
Private office.
- Square Feet 343
- Number of Offices 1
Suite 2-0460N
Window office includes shared waiting areas, conference rooms, huddle rooms, lounge, coffee bar, and WiFi.
- Square Feet 345
- Number of Offices 1
Suite 1-1198
Window office includes shared waiting areas, conference rooms, huddle rooms, lounge, coffee bar, and WiFi.
- Square Feet 356
- Number of Offices 1
Suite 1-1178
Fully furnished & decorated window office. Includes shared waiting areas, conference rooms, huddle rooms, lounge, coffee bar, and WiFi
- Square Feet 358
- Number of Offices 1
Suite 2-0460R
Window office includes shared waiting areas, conference rooms, huddle rooms, lounge, coffee bar, and WiFi.
- Square Feet 366
- Number of Offices 1
Suite 2-0460T
Window office includes shared waiting areas, conference rooms, huddle rooms, lounge, coffee bar, and WiFi.
- Square Feet 372
- Number of Offices 1
Suite 2-0208
Window office includes shared waiting areas, conference rooms, huddle rooms, lounge, coffee bar, and WiFi.
- Square Feet 378
- Number of Offices 1
Suite 2-0238
Window office includes shared waiting areas, conference rooms, huddle rooms, lounge, coffee bar, and WiFi.
- Square Feet 381
- Number of Offices 1
Suite 2-0460Q
Window office includes shared waiting areas, conference rooms, huddle rooms, lounge, coffee bar, and WiFi.
- Square Feet 387
- Number of Offices 1
Suite 1-1110
Window office includes shared waiting areas, conference rooms, huddle rooms, lounge, coffee bar, and WiFi.
- Square Feet 388
- Number of Offices 1
Suite 1-1144
Window office includes shared waiting areas, conference rooms, huddle rooms, lounge, coffee bar, and WiFi.
- Square Feet 390
- Number of Offices 1
Suite 2-0460M
Window office includes shared waiting areas, conference rooms, huddle rooms, lounge, coffee bar, and WiFi.
- Square Feet 391
- Number of Offices 1
Suite 2-0240
Window office includes shared waiting areas, conference rooms, huddle rooms, lounge, coffee bar, and WiFi.
- Square Feet 400
- Number of Offices 1
Suite 1-1170
Window office includes shared waiting areas, conference rooms, huddle rooms, lounge, coffee bar, and WiFi.
- Square Feet 402
- Number of Offices 1
Suite 1-1174
Window office includes shared waiting areas, conference rooms, huddle rooms, lounge, coffee bar, and WiFi.
- Square Feet 402
- Number of Offices 1
Suite 2-0206
Window office includes shared waiting areas, conference rooms, huddle rooms, lounge, coffee bar, and WiFi.
- Square Feet 403
- Number of Offices 1
Suite 2-0210
Window office includes shared waiting areas, conference rooms, huddle rooms, lounge, coffee bar, and WiFi.
- Square Feet 407
- Number of Offices 1
Suite 2-0460G
Window office includes shared waiting areas, conference rooms, huddle rooms, lounge, coffee bar, and WiFi.
- Square Feet 408
- Number of Offices 1
Suite 2-0242
Window office includes shared waiting areas, conference rooms, huddle rooms, lounge, coffee bar, and WiFi.
- Square Feet 413
- Number of Offices 1
Suite 2-1448
Window office includes shared Boardroom, Conference Room, 4 Huddle Rooms, 3 Lounge Areas, Training Room, Coffee Bar, and free WIFI.
- Square Feet 414
- Number of Offices 1
Suite 1-1186
Window office includes shared waiting areas, conference rooms, huddle rooms, lounge, coffee bar, and WiFi.
- Square Feet 415
- Number of Offices 1
Suite 2-0460A
Window office includes shared waiting areas, conference rooms, huddle rooms, lounge, coffee bar, and WiFi.
- Square Feet 418
- Number of Offices 1
Suite 2-0460J
Window office includes shared waiting areas, conference rooms, huddle rooms, lounge, coffee bar, and WiFi.
- Square Feet 420
- Number of Offices 1
Suite 2-1432
Window Office with access to shared Boardroom, Conference Room, 4 Huddle Rooms, 3 Lounge Areas, Training Room, Coffee Bar, and free WIFI.
- Square Feet 421
- Number of Offices 1
Suite 2-1461
Interior Office with access to shared Boardroom, Conference Room, 4 Huddle Rooms, 3 Lounge Areas, Training Room, Coffee Bar, and free WIFI.
- Square Feet 433
- Number of Offices 1
Suite 1-1112
Window office includes shared waiting areas, conference rooms, huddle rooms, lounge, coffee bar, and WiFi.
- Square Feet 433
- Number of Offices 1
Suite 1-1114
Fully furnished & decorated window office. Includes shared waiting areas, conference rooms, huddle rooms, lounge, coffee bar, and WiFi.
- Square Feet 433
- Number of Offices 1
Suite 1-1116
Window office includes shared waiting areas, conference rooms, huddle rooms, lounge, coffee bar, and WiFi.
- Square Feet 433
- Number of Offices 1
Suite 1-1118
Window office includes shared waiting areas, conference rooms, huddle rooms, lounge, coffee bar, and WiFi.
- Square Feet 433
- Number of Offices 1
Suite 2-0460I
Window office includes shared waiting areas, conference rooms, huddle rooms, lounge, coffee bar, and WiFi.
- Square Feet 435
- Number of Offices 1
Suite 2-0460D
Interior office includes shared waiting areas, conference rooms, huddle rooms, lounge, coffee bar, and WiFi.
- Square Feet 439
- Number of Offices 1
Suite 2-0460F
Interior office includes shared waiting areas, conference rooms, huddle rooms, lounge, coffee bar, and WiFi.
- Square Feet 439
- Number of Offices 1
Suite 2-0270
Window office includes shared waiting areas, conference rooms, huddle rooms, lounge, coffee bar, and WiFi.
- Square Feet 442
- Number of Offices 1
Suite 1-1162
Window office includes shared waiting areas, conference rooms, huddle rooms, lounge, coffee bar, and WiFi.
- Square Feet 446
- Number of Offices 1
Suite 2-1480
Window Office with access to shared Boardroom, Conference Room, 4 Huddle Rooms, 3 Lounge Areas, Training Room, Coffee Bar, and free WIFI.
- Square Feet 448
- Number of Offices 1
Suite 2-0460L
Window office includes shared waiting areas, conference rooms, huddle rooms, lounge, coffee bar, and WiFi.
- Square Feet 449
- Number of Offices 1
Suite 2-0288
Window office includes shared waiting areas, conference rooms, huddle rooms, lounge, coffee bar, and WiFi
- Square Feet 458
- Number of Offices 1
Suite 2-1482
Window Office with access to shared Boardroom, Conference Room, 4 Huddle Rooms, 3 Lounge Areas, Training Room, Coffee Bar, and free WIFI. Great view!
- Square Feet 460
- Number of Offices 1
Suite 1-1184
Window office includes shared waiting areas, conference rooms, huddle rooms, lounge, coffee bar, and WiFi.
- Square Feet 461
- Number of Offices 1
Suite 2-0236
Window office includes shared waiting areas, conference rooms, huddle rooms, lounge, coffee bar, and WiFi.
- Square Feet 463
- Number of Offices 1
Suite 2-1476
Window Office with access to shared Boardroom, Conference Room, 4 Huddle Rooms, 3 Lounge Areas, Training Room, Coffee Bar, and free WIFI.
- Square Feet 467
- Number of Offices 1
Suite 2-1470
Window Office with access to shared Boardroom, Conference Room, 4 Huddle Rooms, 3 Lounge Areas, Training Room, Coffee Bar, and free WIFI. Great view!
- Square Feet 467
- Number of Offices 1
Suite 2-1418
Window Office with access to shared Boardroom, Conference Room, 4 Huddle Rooms, 3 Lounge Areas, Training Room, Coffee Bar, and Free WIFI
- Square Feet 471
- Number of Offices 1
Suite 2-1468
Window Office with access to shared Boardroom, Conference Room, 4 Huddle Rooms, 3 Lounge Areas, Training Room, Coffee Bar, and free WIFI.
- Square Feet 486
- Number of Offices 1
Suite 1-1168
Window office includes shared waiting areas, conference rooms, huddle rooms, lounge, coffee bar, and WiFi.
- Square Feet 492
- Number of Offices 1
Suite 2-1478
Window Office with access to shared Boardroom, Conference Room, 4 Huddle Rooms, 3 Lounge Areas, Training Room, Coffee Bar, and free WIFI.
- Square Feet 493
- Number of Offices 1
Suite 2-0460U
Window office includes shared waiting areas, conference rooms, huddle rooms, lounge, coffee bar, and WiFi.
- Square Feet 502
- Number of Offices 1
Suite 2-1410
Fully Furnished Window Office with access to shared Boardroom, Conference Room, 4 Huddle Rooms, 3 Lounge Areas, Training Room, Coffee Bar, and free WIFI.
- Square Feet 502
- Number of Offices 1
Suite 1-1606
New Jewelry Center
Private office.
- Square Feet 512
- Number of Offices 1
Suite 1-1608
New Jewelry Center
Private office.
- Square Feet 520
- Number of Offices 1
Suite 1-1124
Window office includes shared waiting areas, conference rooms, huddle rooms, lounge, coffee bar, and WiFi.
- Square Feet 529
- Number of Offices 1
Suite 2-0825
Reception Area, 1 Window Office, 1 Closets
- Square Feet 535
- Number of Offices 1
Suite 2-0602
Reception, 1 window office & work area
- Square Feet 548
- Number of Offices 1
Suite 2-0350
Reception, 1 window office & work area
- Square Feet 554
- Number of Offices 1
Suite 2-1484
Window Office with access to shared Boardroom, Conference Room, 4 Huddle Rooms, 3 Lounge Areas, Training Room, Coffee Bar, Free Wi-Fi
- Square Feet 555
- Number of Offices 1
Suite 1-1166
Private reception area and window office. Includes shared conference rooms, huddle rooms, lounge, coffee bar, and WiFi.
- Square Feet 558
- Number of Offices 1
Suite 1-1180
Private reception area and window office. Includes shared conference rooms, huddle rooms, lounge, coffee bar, and WiFi.
- Square Feet 558
- Number of Offices 1
Suite 1-1128
Private reception area and window office. Includes shared conference rooms, huddle rooms, lounge, coffee bar, and WiFi.
- Square Feet 564
- Number of Offices 1
Suite 1-0630D
Executive Interior office with closet & shared access to waiting area and coffee bar.
- Square Feet 565
- Number of Offices 1
Suite 2-0820
Glass Front Door, Reception, window office with transaction window, work area & Storage
- Square Feet 572
- Number of Offices 2
Suite 2-0355
- Square Feet 572
- Number of Offices 1
Suite 2-1404
Fully Furnished Window Office with access to shared Boardroom, Conference Room, 4 Huddle Rooms, 3 Lounge Areas, Training Room, Coffee Bar, and free WIFI.
- Square Feet 574
- Number of Offices 1
Suite 1-0722
Reception Area, 1 Window Office, Work Area
- Square Feet 577
- Number of Offices 1
Suite 2-1406
Fully Furnished Window Office with access to shared Boardroom, Conference Room, 4 Huddle Rooms, 3 Lounge Areas, Training Room, Coffee Bar, and free WIFI.
- Square Feet 579
- Number of Offices 1
Suite 1-0888
- Square Feet 588
Suite 1-1108
Private reception area and window office. Includes shared conference rooms, huddle rooms, lounge, coffee bar, and WiFi.
- Square Feet 590
- Number of Offices 1
Suite 2-0565
- Square Feet 592
- Number of Offices 1
Suite 2-0570
Reception with sidelight window, 1 window office & work area
- Square Feet 592
- Number of Offices 1
Suite 1-1126
Private reception area and window office. Includes shared conference rooms, huddle rooms, lounge, coffee bar, and WiFi.
- Square Feet 594
- Number of Offices 1
Suite 1-1164
Window office includes shared waiting areas, conference rooms, huddle rooms, lounge, coffee bar, and WiFi.
- Square Feet 594
- Number of Offices 1
Suite 1-1065
Reception Area, 1 Window Office, Work Area
- Square Feet 600
- Number of Offices 1
Suite 2-0850
small reception area with one long back window office.
- Square Feet 600
- Number of Offices 1
Suite 1-1132
Private reception area and window office. Includes shared conference rooms, huddle rooms, lounge, coffee bar, and WiFi.
- Square Feet 604
- Number of Offices 1
Suite 2-0520
Upgraded Reception, 1 window office, 1 interior office & work area
- Square Feet 605
- Number of Offices 2
Suite 2-1408
Fully Furnished Window Office with access to shared Boardroom, Conference Room, 4 Huddle Rooms, 3 Lounge Areas, Training Room, Coffee Bar, and free WIFI.
- Square Feet 607
- Number of Offices 1
Suite 2-1428
Window Office with access to shared Boardroom, Conference Room, 4 Huddle Rooms, 3 Lounge Areas, Training Room, Coffee Bar, and free WIFI.
- Square Feet 614
- Number of Offices 1
Suite 2-1438
Window Office with access to shared Boardroom, Conference Room, 4 Huddle Rooms, 3 Lounge Areas, Training Room, Coffee Bar, and free WIFI.
- Square Feet 626
- Number of Offices 1
Suite 1-0630K
Corner Executive Window Office with access to shared waiting area & coffee bar.
- Square Feet 634
- Number of Offices 1
Suite 2-0905
Reception, 1 window office & 1 interior office
- Square Feet 637
- Number of Offices 2
Suite 2-0410
Reception, 1 Window Office & Work area
- Square Feet 648
- Number of Offices 2
Suite 2-0604
Large reception, 1 window office & work area
- Square Feet 664
- Number of Offices 1
Suite 1-1194
Private reception area and window office. Includes shared conference rooms, huddle rooms, lounge, coffee bar, and WiFi.
- Square Feet 677
- Number of Offices 1
Suite 1-1142
Private reception area and window office. Includes shared conference rooms, huddle rooms, lounge, coffee bar, and WiFi.
- Square Feet 677
- Number of Offices 1
Suite 1-0605
Large Reception, 1 Window Office, 1 Interior Office & Storage
- Square Feet 685
- Number of Offices 2
Suite 2-0888
Reception Area, 1 Window Office, 1 Interior Office, Work Area
- Square Feet 695
- Number of Offices 2
Suite 1-1604
New Jewelry Center
Private office.
- Square Feet 698
- Number of Offices 1
Suite 2-1460
Window Office with access to shared Boardroom, Conference Room, Huddle Rooms, Lounge Areas, Training Room, Coffee Bar, and free WIFI.
- Square Feet 712
- Number of Offices 1
Suite 2-0996
Reception, 1 window office, 1 interior office
- Square Feet 726
- Number of Offices 2
Suite 1-0828
Reception, 1 window office, work area & storage
- Square Feet 766
- Number of Offices 2
Suite 1-1810B
Reception Area, 1 Interior Office, Open Area, Work Area, 1 Entrance
- Square Feet 776
- Number of Offices 1
Suite 2-0460K
Window office includes shared waiting areas, conference rooms, huddle rooms, lounge, coffee bar, and WiFi.
- Square Feet 777
- Number of Offices 1
Suite 1-0515
Reception Area, 1 Window Office, 1 Interior Office, 1 Entrance
- Square Feet 791
- Number of Offices 2
Suite 2-0268
Private reception area and 2 window office. Includes shared conference rooms, huddle rooms, lounge, coffee bar, and WiFi.
- Square Feet 798
- Number of Offices 2
Suite 2-0246
Private reception area and 2 window office. Includes shared conference rooms, huddle rooms, lounge, coffee bar, and WiFi.
- Square Feet 809
- Number of Offices 2
Suite 1-1975
Reception Area, 1 Window Office, File Or Storage Area, 1 Closets
- Square Feet 819
- Number of Offices 1
Suite 1-0530
- Square Feet 840
- Number of Offices 3
Suite 1-1980
- Square Feet 840
- Number of Offices 2
Suite 2-0815
- Square Feet 844
- Number of Offices 3
Suite 2-1442
Window Office with access to shared Boardroom, Conference Room, 4 Huddle Rooms, 3 Lounge Areas, Training Room, Coffee Bar, and free WIFI.
- Square Feet 850
- Number of Offices 1
Suite 1-0610
- Square Feet 855
- Number of Offices 3
Suite 2-0665
Reception, 2 window offices, work area & storage
- Square Feet 858
- Number of Offices 2
Suite 1-1525
Reception Area, 1 Window Office, 1 Interior Office
- Square Feet 859
- Number of Offices 2
Suite 2-1464
Corner Window Office with shared amenities such as waiting area, small and large meeting rooms
- Square Feet 886
- Number of Offices 1
Suite 1-1622
Reception Area, 1 Window Office, Break Area, Sink, Corner Location, 1 Entrance
- Square Feet 902
- Number of Offices 1
Suite 1-1690
Reception Area, 1 Window Office, Open Area
- Square Feet 914
- Number of Offices 1
Suite 2-0670
Reception Area, 2 Window Offices, Work Area, 1 Closets
- Square Feet 978
- Number of Offices 2
Suite 1-1808
Reception area, one window office and one interior office.
- Square Feet 985
- Number of Offices 2
Suite 1-0510
Reception
1 Interior Office
Break Room with Sink
1 Window Office
- Square Feet 1,028
- Number of Offices 2
Suite 1-1970
Glass Front Door Entry, Reception & 2 window offices
- Square Feet 1,032
- Number of Offices 2
Suite 2-0988
Reception Area, 2 Window Offices, 1 Interior Office
- Square Feet 1,050
- Number of Offices 3
Suite 1-0615
Reception Area, 2 Interior Offices, 2 Conference Rooms, 1 Window Bullpen, Open Area, Work Area, 1 Entrance
- Square Feet 1,069
- Number of Offices 5
Suite 1-1940
Large Reception, 2 window offices & 1 interior office
- Square Feet 1,100
- Number of Offices 3
Suite 2-0575
Glass Herculite Front Door, Upgraded Tile Reception, 2 Window Offices, Work Area & Storage
- Square Feet 1,151
- Number of Offices 2
Suite 2-0995
Reception, 1 window office, 2 interior offices and conference room
- Square Feet 1,154
- Number of Offices 4
Suite 1-0410
Reception Area, 1 Window Office, 1 Interior Office, Open Area, Sink, File Or Storage Area, 1 Closets
- Square Feet 1,206
- Number of Offices 2
Suite 1-1602
New Jewelry Center
Private reception and two offices.
- Square Feet 1,251
- Number of Offices 2
Suite 2-0885
- Square Feet 1,300
- Number of Offices 5
Suite 1-1945
Reception, 2 window offices, 1 interior office, closet
- Square Feet 1,368
- Number of Offices 3
Suite 1-0552
2 window offices, 1 interior office, copy room, break room w/sink, server room & storage
- Square Feet 1,442
- Number of Offices 4
Suite 2-0125
Reception Area, 1 Bullpen, Open Area, 1 Entrance
- Square Feet 1,454
- Number of Offices 1
Suite 2-0608
Glass Front Door, Reception, 4 Window Offices & Work Area
- Square Feet 1,467
- Number of Offices 4
Suite 1-1640
Reception Area, 1 Window Office, 1 Interior Office, Open Area, 1 Entrance
- Square Feet 1,477
- Number of Offices 2
Suite 1-1910
Reception, 3 window offices, 1 interior office & storage
- Square Feet 1,510
- Number of Offices 4
Suite 2-0405
- Square Feet 1,517
- Number of Offices 3
Suite 1-1735
Reception Area, 3 Window Offices, 2 Interior Offices, Open Area
- Square Feet 1,520
- Number of Offices 5
Suite 1-1840
Reception Area, 3 Window Offices, Sink, Work Area, File Or Storage Area, 1 Closets, 1 Entrance
- Square Feet 1,539
- Number of Offices 3
Suite 2-1408.01
Reception Area, 3 Window Offices, 3 Entrances
- Square Feet 1,580
- Number of Offices 4
Suite 2-0870
Reception with tile flooring, 3 window offices, and 2 interior offices.
- Square Feet 1,580
- Number of Offices 5
Suite 1-0505
- Square Feet 1,631
- Number of Offices 5
Suite 1-0570
Reception Area, 3 Window Offices, 2 Interior Offices, 1 Conference Room, Open Area, Break Area, Sink, File Or Storage Area
- Square Feet 1,651
- Number of Offices 6
Suite 1-1860
Reception Area, 3 Window Offices, 1 Conference Room, Work Area, Corner Location, 1 Entrance
- Square Feet 1,677
- Number of Offices 4
Suite 1-0485
Reception Area, 3 Window Offices, 1 Interior Office, 1 Bullpen, Work Area, Corner Location
- Square Feet 1,680
- Number of Offices 5
Suite 1-1725
3 Window Offices, 3 Interior Offices, 1 Conference Room, Kitchen, Sink, File Or Storage Area, 1 Closets, 1 Entrance
- Square Feet 1,721
- Number of Offices 7
Suite 2-0635
Reception Area, 4 Window Offices, open area for cubicles.
- Square Feet 1,733
- Number of Offices 4
Suite 1-0165
Reception Area, 3 Window Offices, 1 Conference Room, Kitchen, Break Area, Sink, Corner Location
- Square Feet 1,834
- Number of Offices 4
Suite 1-1590
Reception Area, 3 Window Offices, 2 Interior Offices, 1 Conference Room, Open Area, Work Area, File Or Storage Area
- Square Feet 1,867
- Number of Offices 6
Suite 2-0995.01
1 Window Office, 2 Interior Offices, 1 Conference Room, Work Area, Corner Location
- Square Feet 1,880
- Number of Offices 4
Suite 1-1015
Reception Area, 3 Window Offices, 2 Interior Offices, 1 Bullpen, Open Area, Work Area, 2 Entrances
- Square Feet 1,904
- Number of Offices 6
Suite 2-0310
Reception, 3 window offices, 2 interior offices, sink, and a work area
- Square Feet 1,934
- Number of Offices 3
Suite 1-0472
Reception Area, 4 Window Offices, Open Area
- Square Feet 1,953
- Number of Offices 4
Suite 2-0885.01
Reception Area, 5 Window Offices, 2 Interior Offices, Kitchen, Sink, Work Area, File Or Storage Area, 1 Closets, Corner Location
- Square Feet 1,995
- Number of Offices 7
Suite 1-0690
Reception, 4 window offices, 2 interior offices and conference room
- Square Feet 2,013
- Number of Offices 7
Suite 2-0440
Reception with Sidelight, 5 window offices, 1 interior office, and File Or Storage Area
- Square Feet 2,103
- Number of Offices 6
Suite 1-0475
Furnished office. Reception Area, 2 Window Offices, 1 Training Room, 1 Interior Office, Open Area, Break Area, Sink, Work Area, Corner Location, 1 Entrance.
- Square Feet 2,136
- Number of Offices 5
Suite 2-0405.01
Reception Area, 1 Window Office, 1 Interior Office, 1 Bullpen, Sink, 2 Entrances
- Square Feet 2,165
- Number of Offices 4
Suite 1-0710
Reception Area, 4 Window Offices, 1 Interior Office, Break Area, Sink, 1 Closets, Corner Location, 1 Entrance
- Square Feet 2,172
- Number of Offices 5
Suite 2-0700
Reception Area, 1 Window Office, 1 Bullpen
- Square Feet 2,231
- Number of Offices 2
Suite 1-0645
Reception Area, 4 Window Offices, 1 Bullpen, Open Area, Break Area, Sink, File Or Storage Area, 1 Closets, Corner Location, 1 Entrance
- Square Feet 2,259
- Number of Offices 5
Suite 2-1000
Reception, 3 window offices, 2 interior offices, conference room & break room with a sink
- Square Feet 2,278
- Number of Offices 5
Suite 2-0560
Glass entry door with Marble reception flooring with conference room just off of the reception area. 4 window offices including a work and storage area. Views of the Galleria.
- Square Feet 2,370
- Number of Offices 6
Suite 1-0303
- Square Feet 2,375
- Number of Offices 4
Suite 1-1950
Large Reception, Bullpen, and 4 Window Offices
- Square Feet 2,407
- Number of Offices 4
Suite 2-0380
Perfect for medical or dental clients. This suite has a lovely reception & waiting area, multiple exam rooms, a private restroom and multiple sinks.
- Square Feet 2,448
- Number of Offices 5
Suite 1-0805
Reception, 5 Window Offices, 3 Interior Offices, Work Area, and 2 Entrances
- Square Feet 2,475
- Number of Offices 9
Suite 2-0310.01
1 Reception Area, 4 Window Offices, 2 Interior Offices, Sink, Work Area, File Or Storage Area, 3 Entrances
- Square Feet 2,524
- Number of Offices 7
Suite 1-0180
This suite is located on the 1st floor next to our Conference room. It has Double Glass Entry Doors, a Bullpen area, 3 Window Offices, 1 conference room, 1 Interior Office and 1 Storage closet.
- Square Feet 2,576
- Number of Offices 6
Suite 1-0605.01
Reception Area, 4 Window Offices, 3 Interior Offices, 1 Conference Room, Work Area, 1 Closets, 3 Entrances
- Square Feet 2,609
- Number of Offices 8
Suite 1-1680
Reception Area, 3 Window Offices, Open Area, File Or Storage Area, Corner Location, 2 Entrances
- Square Feet 2,721
- Number of Offices 3
Suite 2-0660.01
Reception Area, 4 Window Offices, 3 Interior Offices, Work Area, 1 Closets, Corner Location
- Square Feet 2,738
- Number of Offices 7
Suite 2-0705
Reception & Large Window Bullpen with 20 cubicles.
- Square Feet 2,798
- Number of Offices 1
Suite 2-0560.01
Reception Area, 4 Window Offices, 1 Interior Office, 1 Conference Room, Work Area, Corner Location, 2 Entrances
- Square Feet 2,962
- Number of Offices 7
Suite 2-0490
Dental office with reception, rest room, exam rooms, storage, and space for 4 dental chairs.
- Square Feet 3,058
- Number of Offices 5
Suite 1-1840.01
Reception Area, 7 Window Offices, 2 Interior Offices, 1 Conference Room, Kitchen, Break Area, Sink, Work Area, File Or Storage Area, 1 Closets, Corner Location
- Square Feet 3,216
- Number of Offices 10
Suite 1-1162.01
Reception Area, 7 Window Offices, 1 Conference Room
- Square Feet 3,296
- Number of Offices 8
Suite 1-1940.01
Reception Area, 6 Window Offices, 2 Interior Offices, 1 Conference Room, Work Area, File Or Storage Area, Corner Location
- Square Feet 3,500
- Number of Offices 9
Suite 1-0750
Glass front entry door, Upgraded Concrete Floors, Reception, 7 Window Offices, 2 Interior Offices, Conference Room, Bullpen, Break Area & 2 Entrances.
- Square Feet 3,500
- Number of Offices 10
Suite 2-0978
- Square Feet 3,512
- Number of Offices 9
Suite 1-0550
Private reception and waiting area, 7 exam rooms with a sink, nurses station, lab, private restroom and 2 general offices.
- Square Feet 3,590
- Number of Offices 10
Suite 1-0550
Reception with transaction counter, 12 medical exam rooms, 2 restrooms, 9 exam room sinks, 2 sink nurse station, work area with file closet.
- Square Feet 3,590
Suite 1-1750
Reception Area, 6 Window Offices, 1 Interior Office, 1 Conference Room, Open Area, Break Area, Sink, File Or Storage Area, 2 Closets, Corner Location
- Square Feet 3,628
- Number of Offices 8
Suite 2-0938
Reception, 8 window offices, 5 interior offices, conference room & break room
- Square Feet 3,908
- Number of Offices 14
Suite 2-0460T.01
Reception Area, 2 Window Offices, 1 Conference Room, Open Area, Kitchen, Break Area, Sink 5, Work Area, File Or Storage Area, 2 Closets, Corner Location
- Square Feet 3,932
- Number of Offices 3
Suite 1-0160
Reception Area, 6 Window Offices, 1 Conference Room, bull pen area, Open Area, Kitchen, Break Area, Bar Area, Sink, Corner Location
- Square Feet 4,039
- Number of Offices 8
Suite 2-0815.01
Reception Area, 6 Window Offices, 4 Interior Offices, 1 Conference Room, Work Area, 1 Closets, Corner Location, 5 Entrances
- Square Feet 4,131
- Number of Offices 13
Suite 2-0905.01
Reception Area, 5 Window Offices, 5 Interior Offices, 1 Conference Room, Open Area, Kitchen, Break Area, Sink, 2 Rest Rooms, Work Area, File Or Storage Area, Corner Location
- Square Feet 4,149
- Number of Offices 11
Suite 2-0100
Excellent lobby exposure. Corner location with reception area, 6 window offices, private restrooms, break room and storage.
- Square Feet 4,170
- Number of Offices 7
Suite 1-0420
Reception Area, 6 Window Offices, 2 Interior Offices, 1 Conference Room, Open Area, break room, & restroom, Sink, Work Area, File Or Storage Area, Corner Location
- Square Feet 4,305
- Number of Offices 9
Suite 1-0630.WS
Reception Area, 7 Window Offices, 5 Interior Offices, Open Area, Work Area, File Or Storage Area, 1 Closets, Corner Location, 2 Entrances
- Square Feet 4,495
- Number of Offices 12
Suite 1-1660
Reception Area, 8 Window Offices, 1 Interior Office, 1 Conference Room, Open Area, File Or Storage Area, 1 Closets
- Square Feet 4,601
- Number of Offices 10
Suite 1-0300
- Square Feet 5,240
- Number of Offices 6
Suite 1-1760
Reception Area, 8 Window Offices, 1 Interior Office, 1 Conference Room, 1 Bullpen, Open Area, Work Area, File Or Storage Area, 2 Closets, Corner Location
- Square Feet 5,253
- Number of Offices 11
Suite 2-1610
3 Window Offices, Open Bullpen with Sink
- Square Feet 5,430
- Number of Offices 4
Suite 1-0410.01
Reception Area, 7 Window Offices, 3 Interior Offices, 1 Conference Room, Open Area, Kitchen, Break Area, Sink, Work Area, File Or Storage Area, 1 Closets, Corner Location
- Square Feet 5,511
- Number of Offices 11
Suite 1-2000
Reception with large waiting area and transaction window for check in, interior open admin area with built in desk and storage cabinets, 2 glass enclosed interior conference rooms, one large IT closet with built in shelves, 6 window offices with herculite
- Square Feet 5,715
- Number of Offices 8
Suite 1-0472.01
Reception Area, 8 Window Offices, 2 Interior Offices, 2 Conference Rooms, Open Area, Work Area, Corner Location
- Square Feet 5,769
- Number of Offices 12
Suite 2-1050
Reception Area, 13 Window Offices, 5 Interior Offices, 1 Conference Room, 1 Bullpen, Open Area, Kitchen, Break Area, Bar Area, Sink, Work Area, Corner Location, 3 Entrances
- Square Feet 6,813
- Number of Offices 20
Suite 2-0725
Reception Area, 8 Window Offices, 1 Conference Room, 1 Bullpen, Open Area, Kitchen, Sink, Corner Location
- Square Feet 7,109
- Number of Offices 10
Suite 2-1550
Reception Area, 11 Window Offices, 3 Interior Offices, 2 Conference Rooms, Open Area, Corner Location
- Square Feet 7,343
- Number of Offices 16
Suite 1-0510.01
Reception Area, 12 Window Offices, 4 Interior Offices, Kitchen, Break Area, 13 Sink, 2 Rest Rooms, File Or Storage Area, Corner Location
- Square Feet 7,691
- Number of Offices 16
Suite 1-0470.01
Reception Area, 15 Window Offices, 6 Interior Offices, 1 Training Room, Open Area, Kitchen, Break Area, Sink, Work Area, File Or Storage Area, 1 Closets
- Square Feet 8,164
- Number of Offices 21
Suite 2-0460.WS
Reception Area, 17 Window Offices, 8 Interior Offices, Includes shared conference rooms, huddle rooms, lounge, coffee bar, Break Area, Work Area, Corner Location, 3 Entrances, Free Wi-Fi
- Square Feet 8,746
- Number of Offices 27
Suite 2-1500
Reception Area, 13 Window Offices, 5 Interior Offices, 1 Conference Room, 1 Bullpen, Open Area, Corner Location
- Square Feet 9,694
- Number of Offices 20
Suite 2-1720
Double Glass Entry Doors, Reception, 5 window offices, 4 interior offices, Sink
- Square Feet 9,703
- Number of Offices 9
Suite 1-1725.01
Reception Area, 11 Window Offices, 15 Interior Offices, 2 Conference Rooms, Open Area, Kitchen, Break Area, Sink, Work Area, File Or Storage Area, 3 Closets, Corner Location, 4 Entrances
- Square Feet 12,122
- Number of Offices 28
Suite 2-1500.01
Reception Area, 24 Window Offices, 8 Interior Offices, 4 Conference Rooms, 1 Bullpen, Open Area, Kitchen, Sink, Work Area, File Or Storage Area, 1 Closets, Corner Location
- Square Feet 17,037
- Number of Offices 37
Suite 2-0200.WS
Full floor.
Includes shared waiting areas, conference rooms, huddle rooms, lounge, coffee bar, and WiFi.
- Square Feet 20,116
Suite 2-1200
Reception Area, 17 Window Offices, 7 Interior Offices, 1 Conference Room, 1 Bullpen, Open Area, Kitchen, Break Area, Sink, 1 Rest Room, Work Area, File Or Storage Area, 4 Closets, C
- Square Feet 20,570
- Number of Offices 26
Suite 1-1100.WS
Full Floor, High-end finishes, lounge, coffee bar, several conference rooms and break areas, wired for WiFi
- Square Feet 20,570
Suite 1-0900
10 window offices, breakroom, restrooms contain 7 stalls including handicap, built in cubicles which can seat approximately 305 people. large conference/meeting room
- Square Feet 20,570
- Number of Offices 14
Suite 1-1400
Nine window offices, 2 interior offices, conference room, break room, 4 large bullpens with built in cubicles.
- Square Feet 20,570
- Number of Offices 16
Suite 2-1100
Full floor suite with kitchen area h This floor has 9' tall ceilings which are higher than our normal 8' height. 6 window offices, 7 interior offices and a conference room.
- Square Feet 20,570
- Number of Offices 14
Suite 2-1400.WS
Full Floor, Free Wi-Fi. Reception Area, 36 Window Offices, 12 Interior Offices, 3 Conference Rooms, 2 Bullpens, Open Area, Break Area, 1 Rest Room, Work Area, File Or Storage Area, 1 Closets
- Square Feet 20,570
- Number of Offices 53
7676 Hillmont, Houston, TX 77040, USA
7676 Hillmont
7676 Hillmont, Houston, TX 77040, USA
69 Available Units
Suite 310-M
Interior office includes shared waiting areas, conference rooms, huddle rooms, lounge, coffee bar, and WiFi.
- Square Feet 256
- Number of Offices 1
Suite 344-14
Window office includes shared waiting areas, conference rooms, huddle rooms, lounge, coffee bar, Free Wi-Fi
- Square Feet 257
- Number of Offices 1
Suite 310-N
Window office includes shared waiting areas, conference rooms, huddle rooms, lounge, coffee bar, and WiFi.
- Square Feet 262
- Number of Offices 1
Suite 310-E
Window office includes shared waiting areas, conference rooms, huddle rooms, lounge, coffee bar, and WiFi.
- Square Feet 264
- Number of Offices 1
Suite 344-04
Window office includes shared waiting areas, conference rooms, huddle rooms, lounge, coffee bar, and WiFi.
- Square Feet 270
- Number of Offices 1
Suite 344-20
Interior office includes shared waiting areas, conference rooms, huddle rooms, lounge, coffee bar, and WiFi.
- Square Feet 274
- Number of Offices 1
Suite 310-G
Window office includes shared waiting areas, conference rooms, huddle rooms, lounge, coffee bar, and WiFi.
- Square Feet 276
- Number of Offices 1
Suite 344-11
Window office includes shared waiting areas, conference rooms, huddle rooms, lounge, coffee bar, and WiFi.
- Square Feet 279
- Number of Offices 1
Suite 240Q
Interior office includes shared waiting areas, conference rooms, huddle rooms, lounge, coffee bar, and WiFi.
- Square Feet 281
- Number of Offices 1
Suite 240S
Interior office includes shared waiting areas, conference rooms, huddle rooms, lounge, coffee bar, and WiFi.
- Square Feet 281
- Number of Offices 1
Suite 344-22
Interior office includes shared waiting areas, conference rooms, huddle rooms, lounge, coffee bar, Free Wi-Fi
- Square Feet 285
- Number of Offices 1
Suite 344-26
Fully furnished & decorated interior office. Includes shared waiting areas, conference rooms, huddle rooms, lounge, coffee bar, and WiFi.
- Square Feet 289
- Number of Offices 1
Suite 344-08
Window office includes shared waiting areas, conference rooms, huddle rooms, lounge, coffee bar, and WiFi.
- Square Feet 291
- Number of Offices 1
Suite 310-F
Window office includes shared waiting areas, conference rooms, huddle rooms, lounge, coffee bar, and WiFi.
- Square Feet 310
- Number of Offices 1
Suite 128B
Interior office includes shared waiting areas, conference rooms, huddle rooms, lounge, coffee bar, Free Wi-Fi
- Square Feet 312
- Number of Offices 1
Suite 344-25
Interior Furnished office includes shared waiting areas, conference rooms, huddle rooms, lounge, coffee bar, Free Wi-Fi
- Square Feet 317
- Number of Offices 1
Suite 310-J
Window office includes shared waiting areas, conference rooms, huddle rooms, lounge, coffee bar, and WiFi.
- Square Feet 318
- Number of Offices 1
Suite 240P
Fully Furnished Interior office includes shared waiting areas, conference rooms, huddle rooms, lounge, coffee bar, and WiFi.
- Square Feet 319
- Number of Offices 1
Suite 290O
Window office includes shared waiting areas, conference rooms, huddle rooms, lounge, coffee bar, and WiFi. dle Rooms, Lounges & Free WIFI
- Square Feet 324
- Number of Offices 1
Suite 290M
Fully furnished & decorated window office. Includes shared waiting areas, conference rooms, huddle rooms, lounge, coffee bar, Free Wi-Fi
- Square Feet 331
- Number of Offices 1
Suite 240J
Window office includes shared waiting areas, conference rooms, huddle rooms, lounge, coffee bar, and WiFi.
- Square Feet 333
- Number of Offices 1
Suite 344-10
Window office includes shared waiting areas, conference rooms, huddle rooms, lounge, coffee bar, and WiFi.
- Square Feet 335
- Number of Offices 1
Suite 290L
Window office includes shared waiting areas, conference rooms, huddle rooms, lounge, coffee bar, Free Wi-Fi
- Square Feet 335
- Number of Offices 1
Suite 290D
Window office includes shared waiting areas, conference rooms, huddle rooms, lounge, coffee bar, and WiFi.
- Square Feet 339
- Number of Offices 1
Suite 240N
Interior office includes shared waiting areas, conference rooms, huddle rooms, lounge, coffee bar, and WiFi.
- Square Feet 340
- Number of Offices 1
Suite 240K
Window office includes shared waiting areas, conference rooms, huddle rooms, lounge, coffee bar, and WiFi.
- Square Feet 346
- Number of Offices 1
Suite 344-01
Interior office includes shared waiting areas, conference rooms, huddle rooms, lounge, coffee bar, Free Wi-Fi
- Square Feet 352
- Number of Offices 2
Suite 240G
Window office includes shared waiting areas, conference rooms, huddle rooms, lounge, coffee bar, and WiFi.
- Square Feet 369
- Number of Offices 1
Suite 344-05
Window office includes shared waiting areas, conference rooms, huddle rooms, lounge, coffee bar, and WiFi.
- Square Feet 371
- Number of Offices 1
Suite 240O
Interior office includes shared waiting areas, conference rooms, huddle rooms, lounge, coffee bar, and WiFi.
- Square Feet 386
- Number of Offices 1
Suite 240I
Window office includes shared waiting areas, conference rooms, huddle rooms, lounge, coffee bar, and WiFi.
- Square Feet 386
- Number of Offices 1
Suite 310-I
Interior office includes shared waiting areas, conference rooms, huddle rooms, lounge, coffee bar, and WiFi.
- Square Feet 399
- Number of Offices 1
Suite 290B
Interior office includes shared waiting areas, conference rooms, huddle rooms, lounge, coffee bar, and WiFi.
- Square Feet 408
- Number of Offices 1
Suite 290Q
Private Interior office with glass sidelight at entrance. Includes shared conference rooms, huddle rooms, lounge, coffee bar, Free Wi-Fi
- Square Feet 408
- Number of Offices 1
Suite 290P
Private Interior office with glass sidelight at entrance. Includes shared conference rooms, huddle rooms, lounge, coffee bar, and WiFi.
- Square Feet 417
- Number of Offices 1
Suite 290A
Interior office includes shared waiting areas, conference rooms, huddle rooms, lounge, coffee bar, and WiFi.
- Square Feet 419
- Number of Offices 1
Suite 290W
Window office includes shared waiting areas, conference rooms, huddle rooms, lounge, coffee bar, and WiFi.
- Square Feet 421
- Number of Offices 1
Suite 290C
Interior office includes shared waiting areas, conference rooms, huddle rooms, lounge, coffee bar, Free Wi-Fi
- Square Feet 421
- Number of Offices 1
Suite 310-B
Private reception area and interior office. Includes shared conference rooms, huddle rooms, lounge, coffee bar, and WiFi.
- Square Feet 429
- Number of Offices 1
Suite 240A
Window office includes shared waiting areas, conference rooms, huddle rooms, lounge, coffee bar, and WiFi.
- Square Feet 463
- Number of Offices 1
Suite 344-15
Window office includes shared waiting areas, conference rooms, huddle rooms, lounge, coffee bar, and WiFi.
- Square Feet 530
- Number of Offices 1
Suite 344-12
Corner Window office includes shared waiting areas, conference rooms, huddle rooms, lounge, coffee bar, and WiFi.
- Square Feet 545
- Number of Offices 1
Suite 290Y
Private reception area and window office(Atrium View). Includes shared conference rooms, huddle rooms, lounge, coffee bar, and WiFi.
- Square Feet 644
- Number of Offices 1
Suite 290CC
Private reception area and window office. Includes shared conference rooms, huddle rooms, lounge, coffee bar, and WiFi.
- Square Feet 681
- Number of Offices 1
Suite 189C
Reception, Bullpen area, 2 Window offices, 1 Entrance
- Square Feet 1,041
- Number of Offices 3
Suite 189B
Reception Area, 2 Window Offices, 1 Interior Office, 1 Bullpen and one break area w sink.
- Square Feet 1,130
- Number of Offices 4
Suite 185
Reception, 2 Window Offices and 1 Interior Office.
- Square Feet 1,153
- Number of Offices 3
Suite 250
Reception, 3 Interior Offices, Conference Room, Bullpen.
- Square Feet 1,190
- Number of Offices 5
Suite 128.WS
Private Reception Area, 2 Window Offices, 2 Interior Offices. Includes shared waiting areas, conference rooms, huddle rooms, lounge, coffee bar, and WiFi.
- Square Feet 1,248
- Number of Offices 5
Suite 365
5 Interior Offices
w Bullpen
- Square Feet 1,367
- Number of Offices 6
Suite 225
Reception Area, 3 Window Offices, 1 Interior Office, 1 Conference Room, 1 Bullpen, 1 Entrance
- Square Feet 1,470
- Number of Offices 6
Suite 290DD
2 Interior offices with open work area and reception which includes shared waiting areas, conference rooms, huddle rooms, lounge, coffee bar, Free Wi-Fi
- Square Feet 1,503
- Number of Offices 3
Suite 135
Reception, 2 Atrium Window Offices, Interior Office, Conference Room, Break Area w/ sink
- Square Feet 1,553
- Number of Offices 4
Suite 121
Reception, 3 Window Offices, Bullpen & closet.
- Square Feet 1,780
- Number of Offices 4
Suite 192
Reception Area, 3 Window Offices, 1 Interior Office, Kitchen, Break Area, Sink, Corner Location
- Square Feet 1,781
- Number of Offices 4
Suite 240T
Private reception area and 3 Window offices, 1 Interior Office. Includes shared conference rooms, huddle rooms, lounge, coffee bar, Free Wi-Fi
- Square Feet 2,112
- Number of Offices 4
Suite 200
Reception, 4 Window Offices, 4 Interior Offices, Conference Room, Break Room w/ sink.
- Square Feet 2,130
- Number of Offices 9
Suite 189B.01
1 Reception Area, 4 Window Offices, 2 Interior Offices, Work Area, 1 Closets, 2 Entrances
- Square Feet 2,171
- Number of Offices 7
Suite 195
Reception, 2 Window Offices, 4 Interior Offices, Work Area, Copy Area, Sink
- Square Feet 2,246
- Number of Offices 6
Suite 155
4 Window Offices, 2 Interior offices, 4 Bullpens, 1 Conference Room, 1 Storage Closet and Sink.
- Square Feet 2,301
- Number of Offices 11
Suite 199
Reception Area, 4 Window Offices, 3 Interior Offices, 1 Break room, File Or Storage Area.
- Square Feet 2,349
- Number of Offices 8
Suite 220
Reception, 3 Window Offices ,4 Interior Offices, Bullpen, Conference Room, Work Area
- Square Feet 2,400
- Number of Offices 9
Suite 375
Reception, 4 Window Offices, 5 Interior Offices, Conference, Bullpen, Closet
- Square Feet 3,858
- Number of Offices 11
Suite 220.01
Reception Area, 6 Window Offices, 6 Interior Offices, 1 Conference Room, Open Area
- Square Feet 3,870
- Number of Offices 13
Suite 310.WS
Reception, 6 Atrium View Window offices, 9 Interior offices, 1 conference room, Including Access to Shared Waiting Area, Conference & Huddle Rooms, Coffee Bar & Lounge, Free Wi-Fi
- Square Feet 4,952
- Number of Offices 16
Suite 340
Reception, 1 large Window office, 1 small interior office, 1 IT/storage room and 1 large interior bullpen and 1 large window bullpin.
- Square Feet 5,585
- Number of Offices 4
Suite 344.WS
Reception, 14 Window Offices, 12 Interior Offices, Bullpen, 2 conference Room, 2 Entrances. Includes conference rooms, huddle rooms, lounge, coffee bar, Free Wi-Fi
- Square Feet 7,437
- Number of Offices 29
Suite 240.WS
Reception Area, 13 Window Offices, 11 Interior Offices, 2 Conference Rooms, 1 Bullpen, Open Area, Break Area, Corner Location, 3 Entrances, Includes shared conference rooms, huddle rooms, lounge, coffee bar, Free Wi-Fi
- Square Feet 9,655
- Number of Offices 27
Suite 290.WS
Reception Area, 17 Window Offices, 13 Interior Offices, 1 Conference Room, 1 Bullpen, Open Area, Kitchen, Break Area, Sink, 2 Rest Rooms, Work Area, File Or Storage Area, 2 Closets, Corner Location, 3 Entrances, lounge, coffee bar, Free Wi-Fi
- Square Feet 12,806
- Number of Offices 32
340-350 N Sam Houston Pkwy E, Houston, TX 77060, USA
340-350 N Sam Houston Pkwy E
340-350 N Sam Houston Pkwy E, Houston, TX 77060, USA
57 Available Units
Suite A1016
Interior office includes shared waiting areas, conference rooms, huddle rooms, lounge, coffee bar, and WiFi
- Square Feet 119
- Number of Offices 1
Suite A1017
Interior office includes shared waiting areas, conference rooms, huddle rooms, lounge, coffee bar, and WiFi
- Square Feet 119
- Number of Offices 1
Suite A2035
Interior office includes shared waiting areas, conference rooms, huddle rooms, lounge, coffee bar, and WiFi.
- Square Feet 138
- Number of Offices 1
Suite A1041
Interior office includes shared waiting areas, conference rooms, huddle rooms, lounge, coffee bar, and WiFi
- Square Feet 203
- Number of Offices 1
Suite A2037
Interior office includes shared waiting areas, conference rooms, huddle rooms, lounge, coffee bar, and WiFi.
- Square Feet 258
- Number of Offices 1
Suite B250
Atrium view office
- Square Feet 258
- Number of Offices 1
Suite A1000
Interior office with atrium includes shared waiting areas, conference rooms, huddle rooms, lounge, coffee bar, and WiFi.
- Square Feet 267
- Number of Offices 1
Suite A2054
Window office includes shared waiting areas, conference rooms, huddle rooms, lounge, coffee bar, and WiFi.
- Square Feet 286
- Number of Offices 1
Suite A1019
Interior office includes shared waiting areas, conference rooms, huddle rooms, lounge, coffee bar, and WiFi
- Square Feet 292
- Number of Offices 1
Suite A1023
Interior office includes shared waiting areas, conference rooms, huddle rooms, lounge, coffee bar, and WiFi
- Square Feet 295
- Number of Offices 1
Suite A1020
Interior office includes shared waiting areas, conference rooms, huddle rooms, lounge, coffee bar, and WiFi
- Square Feet 315
- Number of Offices 1
Suite A165Q
Reception Area, 1 Interior Office, 1 Entrance
- Square Feet 315
- Number of Offices 2
Suite A160G
Window office
- Square Feet 325
- Number of Offices 2
Suite A1005
Fully Furnished & Decorated Office. Includes shared waiting areas, conference rooms, huddle rooms, lounge, coffee bar, and WiFi.
- Square Feet 326
- Number of Offices 2
Suite A1008
Fully furnished & decorated window office. Includes shared waiting areas, conference rooms, huddle rooms, lounge, coffee bar, and WiFi.
- Square Feet 328
- Number of Offices 3
Suite A1009
Window office includes shared waiting areas, conference rooms, huddle rooms, lounge, coffee bar, and WiFi.
- Square Feet 338
- Number of Offices 1
Suite A165M
Reception & 1 window office
- Square Feet 360
- Number of Offices 2
Suite A1006
Interior office includes shared waiting areas, conference rooms, huddle rooms, lounge, coffee bar, and WiFi.
- Square Feet 376
- Number of Offices 1
Suite A160E
Interior office with access to conference room.
- Square Feet 384
- Number of Offices 1
Suite A160D
Interior Office
- Square Feet 402
- Number of Offices 1
Suite A1003
Window office includes shared waiting areas, conference rooms, huddle rooms, lounge, coffee bar, and WiFi.
- Square Feet 451
- Number of Offices 1
Suite A263
Reception, 1 window office & work area
- Square Feet 488
- Number of Offices 2
Suite A1012
Corner Window Office with Shared Lobby, Conference Room, Huddle Area, Coffee Bar and Lounge, Free Wi-Fi
- Square Feet 500
- Number of Offices 1
Suite B287
Reception, 1 Window Office & Work Area
- Square Feet 592
- Number of Offices 2
Suite B233
Reception, 1 window office & 1 interior office
- Square Feet 594
- Number of Offices 3
Suite A212
Reception, 1 window office & work area
- Square Feet 595
- Number of Offices 2
Suite B204
Reception, 1 Atrium View Office & Sink
- Square Feet 603
- Number of Offices 2
Suite A209
Reception, 1 Window Office & Work Area
- Square Feet 605
- Number of Offices 2
Suite A211
Reception, 1 Window Office & Work Area
- Square Feet 633
- Number of Offices 2
Suite A235
Reception with Sidelight, 1 Atrium View Office & 1 Interior Office
- Square Feet 648
- Number of Offices 3
Suite A266
Reception, 1 window office & breakroom w/LVT Flooring
- Square Feet 703
- Number of Offices 2
Suite A233-01
Reception Area, 1 atrium view office, 1 Interior Office
- Square Feet 730
- Number of Offices 3
Suite B275
Reception, 1 window office, & 1 interior office
- Square Feet 730
- Number of Offices 3
Suite A231
Reception, 1 atrium view office & 1 interior office
- Square Feet 737
- Number of Offices 3
Suite A234
Reception with Sidelight, 2
Atrium View Offices, & Balcony Access
- Square Feet 838
- Number of Offices 3
Suite B230
Reception, 2 atrium view offices, 1 Interior Office, and storage closet.
- Square Feet 975
- Number of Offices 4
Suite B203
Reception, Atrium View Office & Bullpen with Sink
- Square Feet 987
- Number of Offices 3
Suite B205
Reception Area, 1 Window Office, 2 Interior Offices, Kitchen, Break Area, Sink
- Square Feet 1,188
- Number of Offices 4
Suite A258
Reception with wood floors, 2 window offices, 3 interior offices, breakroom w/ sink & storage closet
- Square Feet 1,412
- Number of Offices 5
Suite B238
Reception, 3 window offices, conference room, & breakroom with sink
- Square Feet 1,482
- Number of Offices 5
Suite B290
Reception, 2 window offices, 2 interior offices, breakroom with wood floors and sink
- Square Feet 1,540
- Number of Offices 4
Suite B288
Reception Area, 3 Window Offices, Break Area, Sink, File Or Storage Area, 1 Entrance
- Square Feet 1,592
- Number of Offices 4
Suite B285
Reception area with built in desk, 2 window offices, conference room, breakroom and storage room
- Square Feet 1,619
- Number of Offices 5
Suite A261
Reception with Marble Flooring, 4 Atrium View Offices, Closet, and Break Room with Sink
- Square Feet 1,637
- Number of Offices 5
Suite A209.01
Reception Area, 3 Window Offices, 2 interior offices, Work Area
- Square Feet 1,833
- Number of Offices 6
Suite B255
Reception, 3 Atrium View Offices, 1 Interior Office with Private Break Room, Conference Room with Atrium View, Open Work Space, Break Room and Storage Closet
- Square Feet 1,976
- Number of Offices 7
Suite B240
Reception w/ window, 1 corner window office, 3 window offices, large conference room, 1 interior office, & breakroom
- Square Feet 2,026
- Number of Offices 6
Suite B287.01
Reception Area, 3 Window Offices, 1 Interior Office, Open Area, Kitchen, Break Area, Sink
- Square Feet 2,184
- Number of Offices 4
Suite A268
Reception with Sidelight, 4 Atrium View Offices, 1 Interior Offices, 1 Conference Room, 1 Storage Room, and Large Bullpen with Sink.
- Square Feet 2,499
- Number of Offices 9
Suite A263.01
Reception Area, 5 Window Offices, 2 Interior Offices, 1 Conference Room, Work Area, 1 Closets
- Square Feet 2,987
- Number of Offices 9
Suite B238.01
Reception Area, 6 Window Offices, 2 Interior Offices, 1 Conference Room, Kitchen, Break Area, Sink, Work Area, 1 Closets, Corner Location, 2 Entrances
- Square Feet 3,508
- Number of Offices 9
Suite B275.01
- Square Feet 3,889
Suite B204.01
1 Reception Area, 5 Window Offices, 5 Interior Offices, 1 Conference Room, Kitchen, Sink, Work Area, File Or Storage Area, 1 Closets, 6 Entrances
- Square Feet 4,025
- Number of Offices 11
Suite A107
Reception Area, 1 Interior Office, 1 extra Large Bullpen
- Square Feet 4,395
- Number of Offices 4
Suite A2035.WS
Reception Area, 9 Window Offices, 8 Interior Offices, 1 Conference Room, Includes shared waiting areas, huddle rooms, lounge, coffee bar, and WiFi.
- Square Feet 4,410
- Number of Offices 19
Suite A1000.01
Reception Area, 10 Window Offices, 7 Interior Offices, 1 Conference Room, huddle rooms, lounge, coffee bar, and WiFi.
- Square Feet 5,506
- Number of Offices 19
Suite A1000.WS
Reception Area, 15 Window Offices, 23 Interior Offices, 1 Conference Room, Open Area, Corner Location, huddle rooms, lounge, coffee bar, Mail Room and WiFi.
- Square Feet 10,486
- Number of Offices 39