4200 South Fwy (Tower)
4200 South Fwy (Tower)
Description
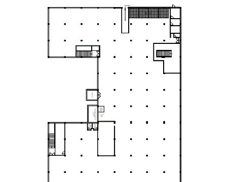
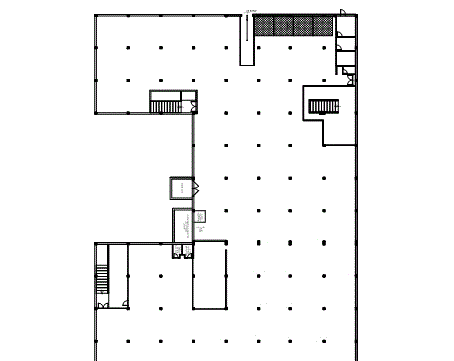
Floor Plans
- Rentable Square Feet 932
- Number of Offices 3
Description:
**Available June 2026** Reception Area, 3 Window Offices, Open Area, Dropped Celling, Corner Location, 1 Entrance
- Rentable Square Feet 339
- Number of Offices 2
Description:
Reception Area, 1 Window Office, Dropped Celling, 1 Entrance
- Rentable Square Feet 624
- Number of Offices 2
Description:
Available **June 2026**
Reception Area, 2 Window Offices, Dropped Ceiling
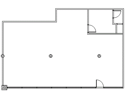
- Rentable Square Feet 620
- Number of Offices 5
- Rentable Square Feet 339
- Number of Offices 1
Description:
Features: 1 Reception Area; 1 Window Office
- Rentable Square Feet 540
- Number of Offices 2
Description:
Reception Area, 2 Window Offices Dropped Celling, 1 Entrance
- Rentable Square Feet 2,484
- Number of Offices 16
Description:
Available SUMMER 2026**
Street Level entrance. Medical/Retail; Reception reception area, 2 private bathrooms,offices,storage area and sink area.
- Rentable Square Feet 2,029
- Number of Offices 7
Description:
Reception Area, 5 Window Offices, 1 Interior Office, 1 Conference Room, Open Area, Break Area, Sink, File Or Storage Area, 1 Closets, Dropped Celling, Corner Location, 1 Entrance
- Rentable Square Feet 430
- Number of Offices 2
Description:
Reception Area, 1 Window Office, 1 Interior Office, File Or Storage Area, 1 Closets, Dropped Celling, Corner Location, 1 Entrance
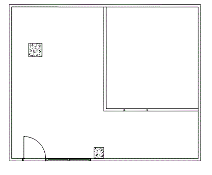
- Rentable Square Feet 300
- Number of Offices 1
Description:
1 Window Office
- Rentable Square Feet 2,329
- Number of Offices 10
Description:
Reception Area, 6 Window Offices, 2 Interior Offices, 1 Conference Room, Open Area, Kitchen, Break Area, Sink, Corner Location, 1 Entrance
- Rentable Square Feet 695
- Number of Offices 2
Description:
Reception Area, 2 Window Offices, Open Area
- Rentable Square Feet 1,029
- Number of Offices 3
Description:
Reception Area, 3 Window Offices, Open Area
- Rentable Square Feet 3,129
- Rentable Square Feet 369
- Number of Offices 2
Description:
Reception Area, 1 Window Office, 1 Interior Office, Dropped Celling
- Rentable Square Feet 385
- Number of Offices 1
Description:
Reception Area, 1 Window Office, 1 Entrance
- Rentable Square Feet 415
- Number of Offices 1
Description:
1 Window Office, 1 Entrance
- Rentable Square Feet 1,013
- Number of Offices 3
Description:
Reception Area, 2 Window Offices, 1 Interior Office, Open Area
Amenities
- Free Parking
- 24/7 Security Services
- 24 Hour Badge Access
- Arcade
- Cafe/Deli
- Family Restrooms
- Diverse Food Court & Dining Options
- Entertainment Zones (e.g., theaters, arcades, play areas)
- Free Wi-Fi in Common Areas
- Event & Activation Spaces
- Customer Service Center
- Accessibility Features (ADA-compliant)
- Wide Retail Mix (national & local brands)
- Public Transportation Access
- ATM & Banking Services
- Lost & Found Services
- Climate-Controlled Indoor Environment
- Community and Cultural Event Programming
- Fitness Center
- Loading Dock
- Mail Drop Boxes
- Mailroom
- On-site Bank
- On-Site Management Office
- On-site Leasing
- On-site Maintenance
- Outside Seating
- Parking : Complimentary
- Parking : Surface
- Signage : Monument Sign