3030 Warrenville Road

Lisle, IL 60532

Property Size: 150,036 SqFt


3030 Warrenville Road - Claire Ziecina
MEET THE AGENT
Claire Ziecina
(847) 677-RENT (7368)
3030 Warrenville Road - chat icon
Available Suites ()
(Updated 10/08/2025 )
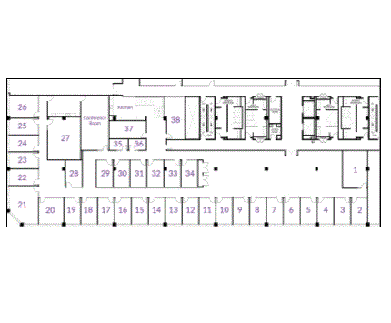
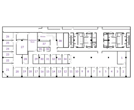
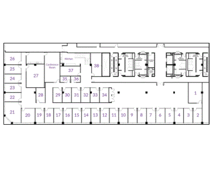
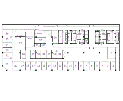
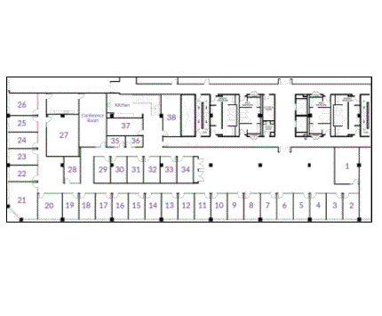
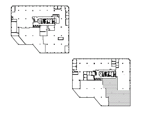
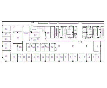
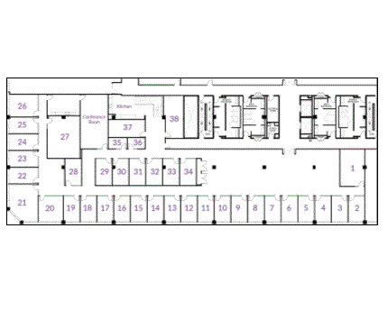
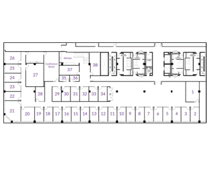
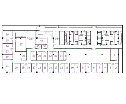
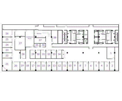
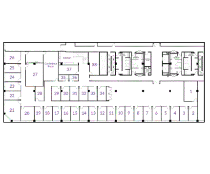
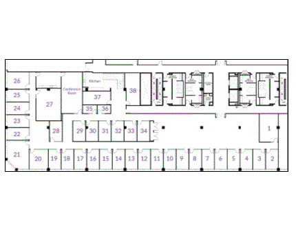
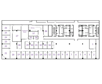
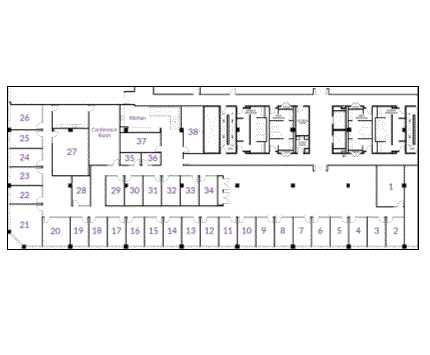
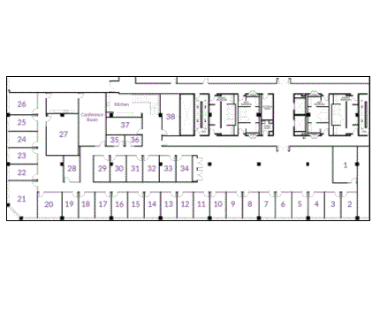
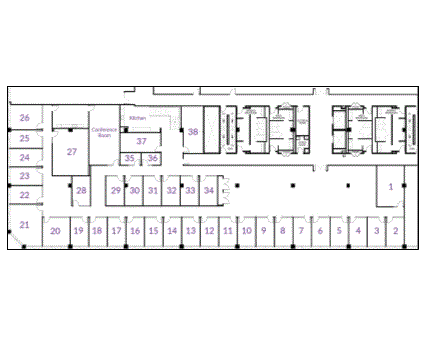
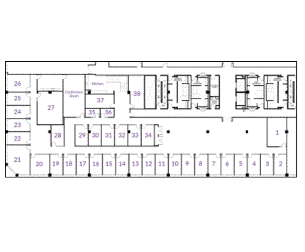
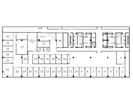
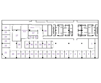
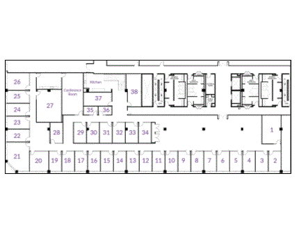
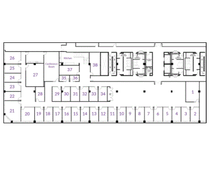
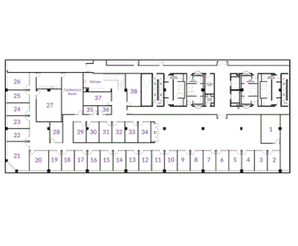
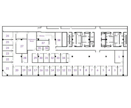
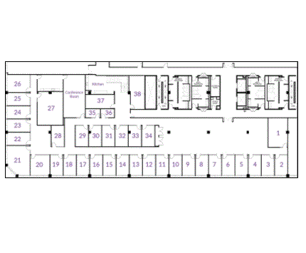
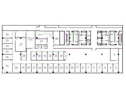
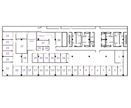
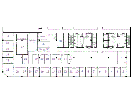
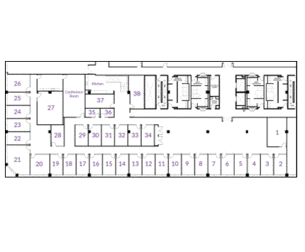
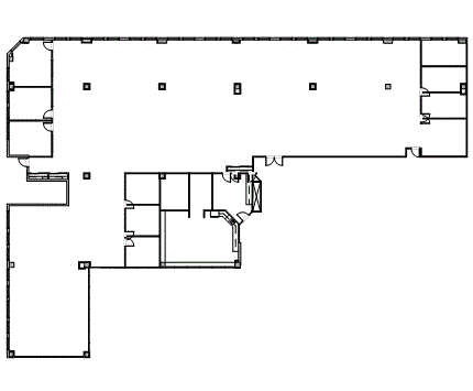
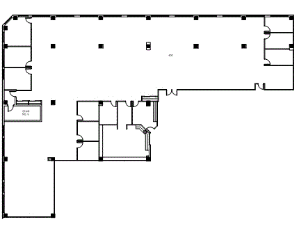
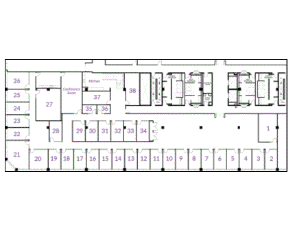
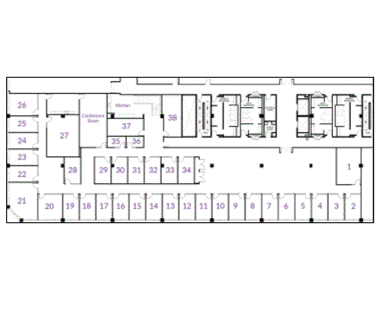
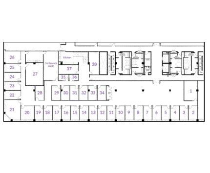
Suite: 500.01 435 Virtual Office | SqFt: 48,535
  • 5th floor and 6th floor. Including Reception Area
  • Open Area
  • 2 Kitchen Areas
  • Break Areas
  • 2 Rest Rooms
  • Work Area
  • 14 Window Offices
  • 7 Interior Offices
3030 Warrenville Road - 500.01
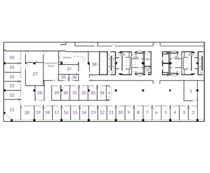
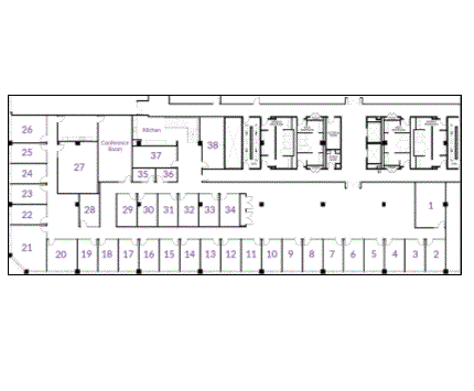
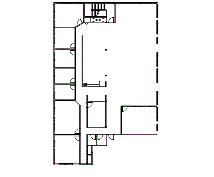
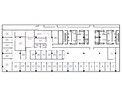
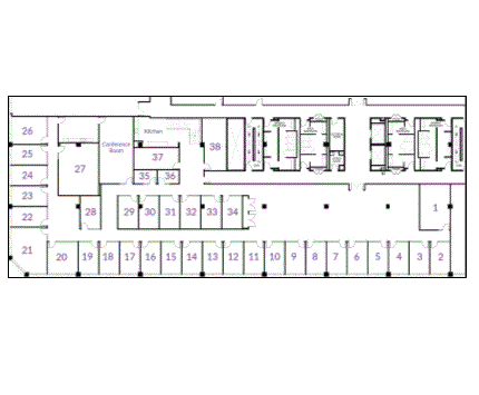
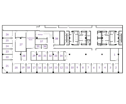
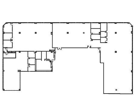
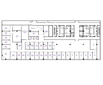
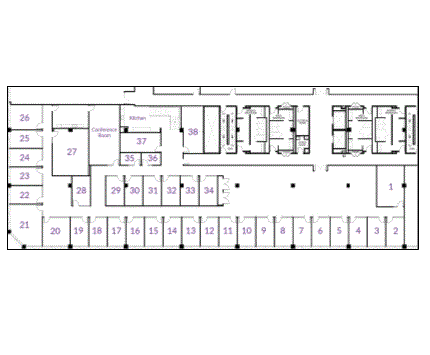
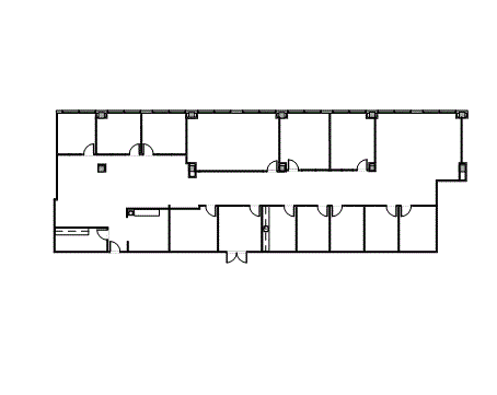
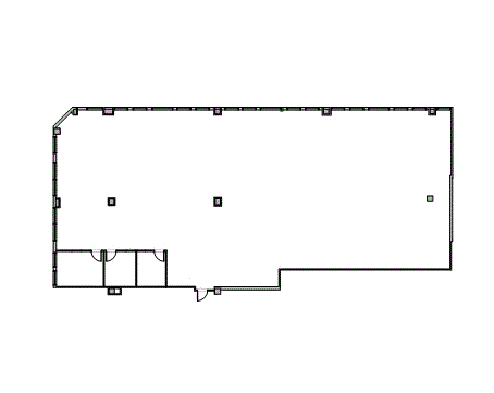
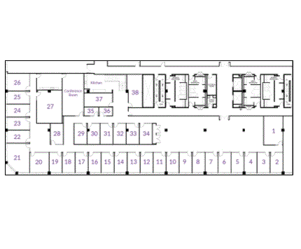
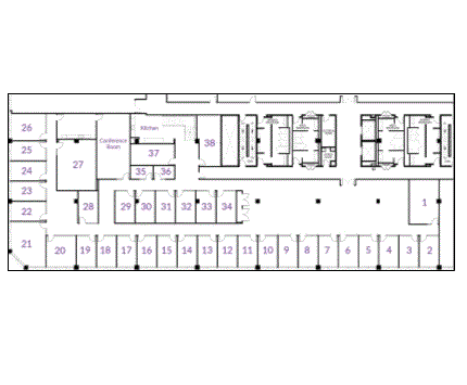
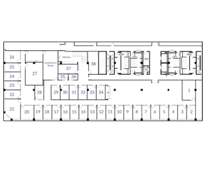
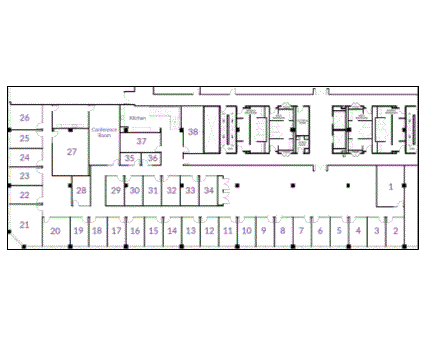
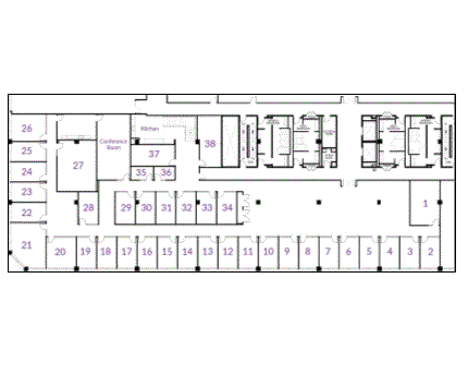
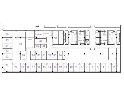
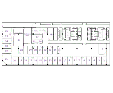
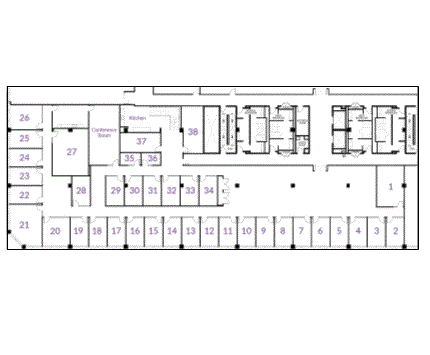
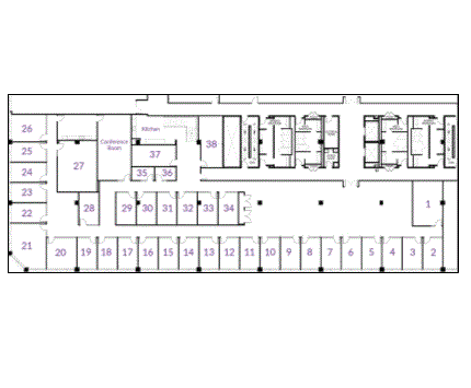
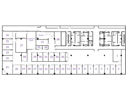
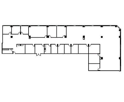
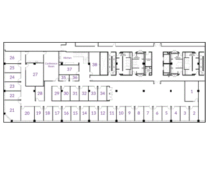
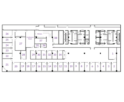
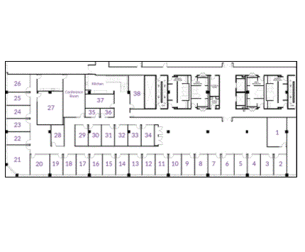
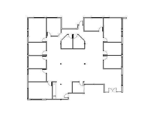
Suite: 500 435 Virtual Office | SqFt: 28,680
  • Reception Area
  • 9 Window Offices
  • 1 Conference Room
  • 2 Bullpens
  • Open Area
  • Kitchen
  • Break Area
  • 2 Sinks
  • Work Area
  • File Or Storage Area
  • 6 Closets
  • Corner Location
  • 4 Entrances
3030 Warrenville Road - 500
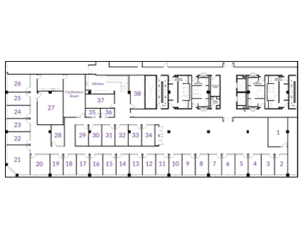
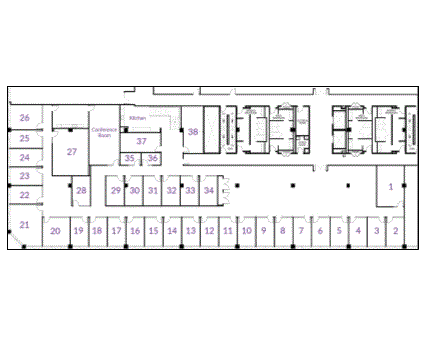
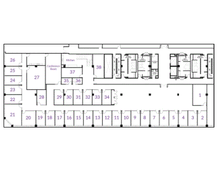
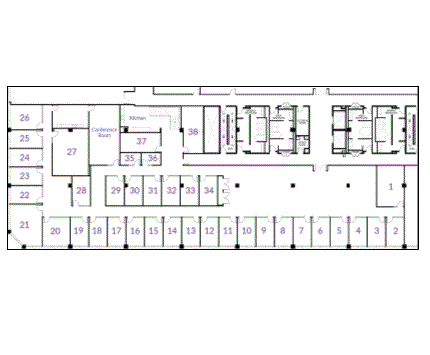
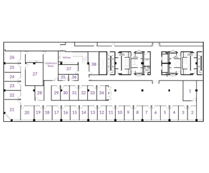
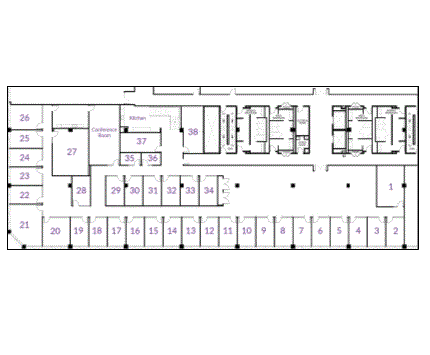
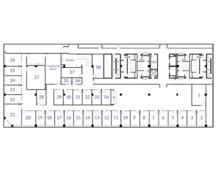
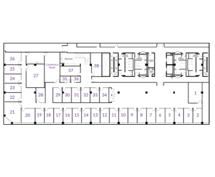
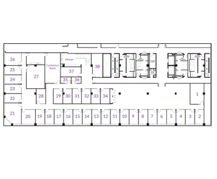
Suite: 600.01 435 Virtual Office | SqFt: 19,855
  • 5 Window Offices
  • 7 Interior Offices
  • Break Area
  • Sink
  • Work Area
  • File Or Storage Area
  • Bullpen
  • Open Area
  • Corner Location
3030 Warrenville Road - 600.01
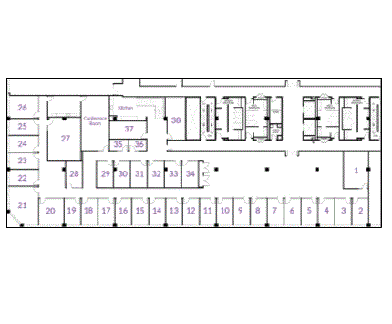
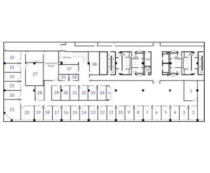
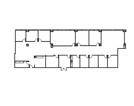
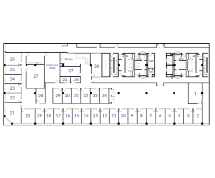
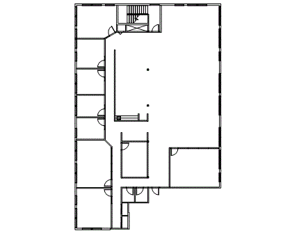
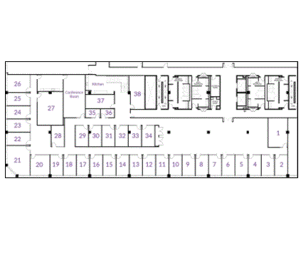
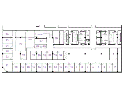
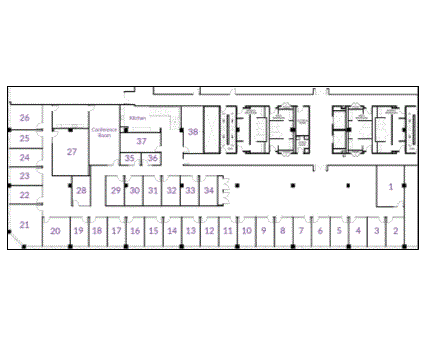
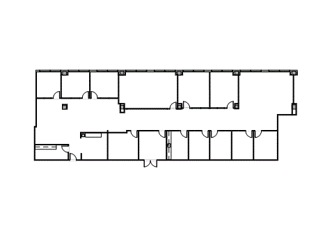
Suite: 600 435 Virtual Office | SqFt: 12,750
  • 5 Window Offices
  • 5 Interior Offices
  • Break Area
  • Kitchen with Sink
  • Work Area
  • File Or Storage Area
  • 2 Entrances
  • 3 Closets
3030 Warrenville Road - 600
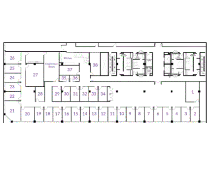
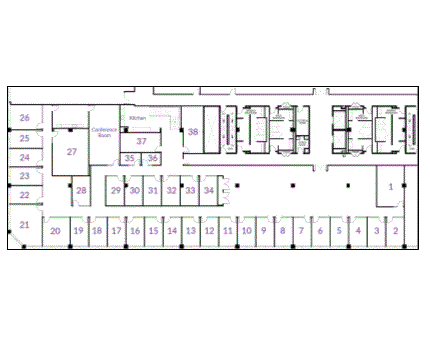
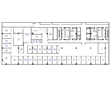
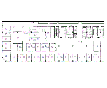
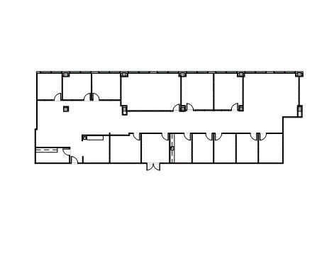
Suite: 200 435 Virtual Office | SqFt: 10,136
  • 5 Window Offices
  • Reception
  • Kitchen
  • Work Area
  • Closet
  • 1 Window Conference Room
  • 10 Interior Offices
  • 3 Entrances
3030 Warrenville Road - 200
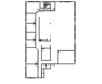
Suite: 650 435 Virtual Office | SqFt: 7,105
  • 1 Window Office
  • 2 Interior Offices
  • 1 Bullpen
  • Open Area
  • Corner Location
3030 Warrenville Road - 650
Suite: 268 435 Virtual Office | SqFt: 5,075
  • Reception Area
  • 1 Large Open Bullpen
3030 Warrenville Road - 268
Suite: 200A.01 435 Virtual Office | SqFt: 4,901
  • Reception Area
  • 5 Window Offices
  • 5 Interior Offices
  • 1 Conference Room
  • 1 Bullpen
  • Open Area
  • Kitchen
  • Break Area
  • Sink
  • Work Area
  • File Or Storage Area
  • 1 Closets
  • Dropped Celling
  • 2 Entrances
3030 Warrenville Road - 200A.01
more info  
3030 Warrenville Road - Workstyle Logo
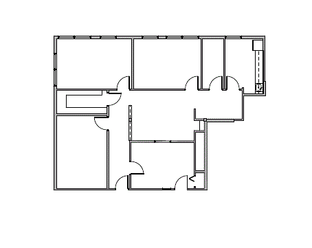
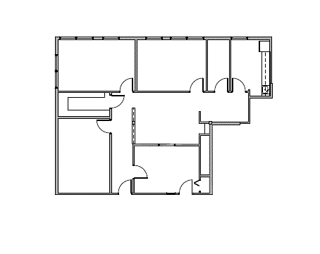
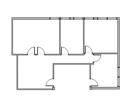
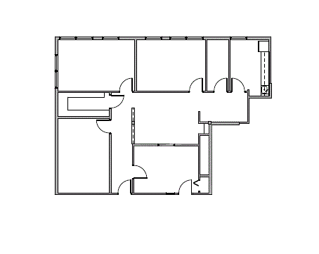
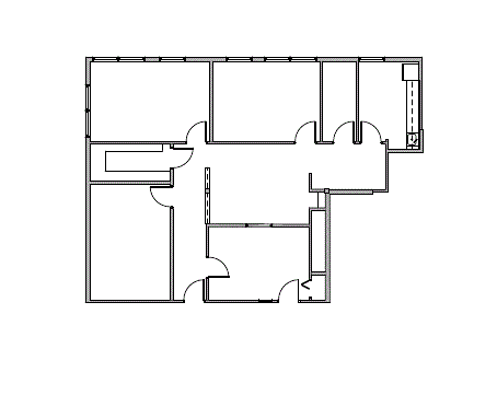
Suite: 200B.01 435 Virtual Office | SqFt: 3,634
  • Reception Area
  • 4 Interior Offices
  • 1 Bullpen
3030 Warrenville Road - 200B.01
more info  
3030 Warrenville Road - Workstyle Logo
Suite: 419 435 Virtual Office | SqFt: 2,015
  • Reception Area
  • 5 Window Offices
  • File Or Storage Area
  • Corner Location
  • 1 Entrance
3030 Warrenville Road - 419
more info  
3030 Warrenville Road - Workstyle Logo
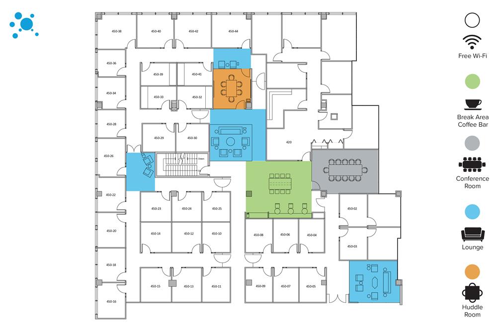
Suite: 450-03 435 Virtual Office | SqFt: 514
  • Private reception area and interior office. Includes shared conference rooms
  • huddle rooms
  • lounge
  • coffee bar
  • and WiFi.
3030 Warrenville Road - 450-03
Suite: 280 435 Virtual Office | SqFt: 439
  • 1 Window Office
3030 Warrenville Road - 280
Suite: 292 435 Virtual Office | Private Office
  • 1 Window Office
3030 Warrenville Road - 292
Suite: 294 435 Virtual Office | Private Office
  • 1 Window Office
3030 Warrenville Road - 294
Suite: 296 435 Virtual Office | Private Office
  • 1 Window Office
3030 Warrenville Road - 296
Suite: 270 435 Virtual Office | Private Office
  • 1 Interior Office
3030 Warrenville Road - 270
Suite: 450-29 435 Virtual Office | Private Office
  • Interior office includes shared waiting areas
  • conference rooms
  • huddle rooms
  • lounge
  • coffee bar
  • and WiFi
3030 Warrenville Road - 450-29
Suite: 107 435 Virtual Office | Private Office
  • 1 Interior Office
3030 Warrenville Road - 107
Suite: 277 435 Virtual Office | Private Office
  • 1 Interior Office
3030 Warrenville Road - 277
Suite: 450-04 435 Virtual Office | Private Office
  • Interior office includes shared waiting areas
  • conference rooms
  • huddle rooms
  • lounge
  • coffee bar
  • and WiFi.
3030 Warrenville Road - 450-04
Storage: STOR6 435 Virtual Office | Private Office
  • Basement storage room #6
3030 Warrenville Road - STOR6
Virtual Office | Available
  • Need a more flexible option?
    Learn about our virtual office program
more info  
Workstyle Logo
Request a Quote

Request a Quote

By clicking “send” I agree that Boxer Property can contact me by email or phone, including for marketing purposes. I have read and understand the privacy policy.

Book a Tour Today

By clicking “send” I agree that Boxer Property can contact me by email or phone, including for marketing purposes. I have read and understand the privacy policy.

Map

Property Description

Six story 150KSF building located within the highly desirable Eastern East/West Corridor Office Submarket. Access to Interstate 88 both East and West is approximately one-half mile away. A unique seven story interior glass atrium floods natural light into the interior facing offices. Six (6) conference rooms and one (1) multi-tiered theater training facility owned and managed by the Sheraton Hotel are located within the premises. The Sheraton Hotel and its facilities are directly connected to the office building via the interior Atrium. Plentiful surface parking within steps of the building and an underground parking garage is located within the premises. Wheaton Park District’s Danada Park South with its tree lined walking paths is located directly adjacent to the property. Both the Naperville and Wheaton downtown areas and the Freedom Circle restaurants such as Cooper’s Hawk, Fogo de Chao, Morton’s, Pita Inn, and Buttermilk are just minutes away.

Amenities

24 Hour Card Access

Internet Ready

Outside patio seating

Rights to Warrenville Road monument sign or building available and negotiable.

Vending Machines

Outdoor patio with picnic table style seating

Compare listings

Compare
Skip to content