1750 E. Golf Road
1750 E. Golf Road
Description
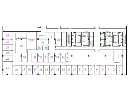
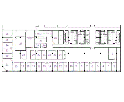
Floor Plans
- Rentable Square Feet 18,841
- Number of Offices 12
Description:
Reception Area, 8 Window Offices, 2 Interior Offices, 1 Conference Room, Kitchen, Break Area, Sink, File Or Storage Area, 1 Entrance
- Rentable Square Feet 20,423
- Number of Offices 20
Description:
Reception Area, 10 Window Offices, 7 Interior Offices, 1 Conference Room, 1 Bullpen, Open Area, Kitchen, Break Area, Sink, Work Area, File Or Storage Area, 3 Closets
- Rentable Square Feet 20,016
- Number of Offices 56
Description:
Reception Area, 33 Window Offices, 16 Interior Offices, 5 Conference Rooms, 1 Bullpen, Open Area, Work Area, Corner Location
- Rentable Square Feet 5,110
- Number of Offices 15
Description:
Reception Area, 10 Window Offices, 2 Interior Offices, 1 Conference Room, 1 Bullpen, Kitchen, Break Area, Sink, Corner Location, 3 Entrances
- Rentable Square Feet 5,366
- Number of Offices 13
Description:
Reception Area, 8 Window Offices, 2 Interior Offices, 1 Conference Room, 1 Bullpen, Kitchen, Break Area, Sink, File Or Storage Area, 2 Entrances
- Rentable Square Feet 528
- Number of Offices 1
Description:
1 Window Office
- Rentable Square Feet 128
- Number of Offices 1
Description:
Interior office for 1. Includes shared waiting areas, conference rooms, huddle rooms, lounge, coffee bar, and WiFi.
- Rentable Square Feet 829
- Number of Offices 3
Description:
Private reception area and window office. Includes shared conference rooms, huddle rooms, lounge, coffee bar, and WiFi.
- Rentable Square Feet 614
- Number of Offices 1
Description:
1 Interior Office
- Rentable Square Feet 1,688
- Number of Offices 5
Description:
Reception Area, 1 Window Office, 2 Interior Offices, 1 Bullpen, Open Area, 1 Entrance
- Rentable Square Feet 1,357
- Number of Offices 4
Description:
Reception Area, 1 Window Office, 1 Interior Office, 1 Bullpen, Open Area, Kitchen, Sink, Corner Location, 1 Entrance
- Rentable Square Feet 20,423
- Number of Offices 15
Description:
Full floor, Reception area, 3- Large Open areas perfect for 60+ cubicles, 8 window suites, 2 Interior suites, Conference room, Large dedicated Kitchen and Break Area, Large file/storage room, Quiet room.
- Rentable Square Feet 1,582
- Number of Offices 15
Description:
Full floor, Reception area, 3- Large Open areas perfect for 60+ cubicles, 8 window suites, 2 Interior suites, Conference room, Large dedicated Kitchen and Break Area, Large file/storage room, Quiet room.
- Rentable Square Feet 14,930
- Number of Offices 9
Description:
Reception area, 2- Open areas perfect for 40+ cubicles, Conference room, Large dedicated Kitchen and Break Area, Large file/storage room, Quiet room, 3 entrances.
- Rentable Square Feet 20,402
- Number of Offices 43
Description:
15 Window Offices, 19 Interior Offices, 3 Conference Rooms, 5 Bullpens, 2 Rest Rooms, 2 Closets, 4 Entrances
- Rentable Square Feet 5,493
- Number of Offices 11
Description:
Reception Area, 5 Window Offices, 3 Interior Offices, 1 Conference Room, 1 Bullpen, Kitchen, Break Area, Sink, File Or Storage Area, 3 Closets, Corner Location, 2 Entrances
Amenities
- Large Training & Conference Center - accommodates up to 100 people
- On-site Leasing, Maintenance, and Management
- 24 Hour Badge Access
- Cafe / Deli
- Coffee Bar
- Conference Room
- Huddle Room
- Internet Ready
- Mailroom
- Mail Drop Boxes
- Outside Seating
- Parking: Complimentary
- Parking: Covered
- Parking: Garage
- Parking: Surface
- Signage: Monument Sign
- Training Room
- Vending Machines
- Patio with seating
- Parking deck
- Parking ratio 3/1000
- 30-foot atrium with floor to ceiling windows
- On site security
- On-site Leasing
- On-site Maintenance
- On-site Management
- Loading Dock
- Filtered Water
- Fitness Center
- Lounge Space