101 W Grand Ave.
101 W Grand Ave.
Description
101 W Grand Avenue in Chicago, Illinois, is a six-story office property located in the River North neighborhood. The property features modern amenities and is situated near public transportation options, providing convenient access for commuters. The surrounding area is known for its vibrant mix of dining, retail, and entertainment venues, making it an attractive location for businesses seeking a dynamic urban environment.? – At the front of the building, enter #04 on the intercom to ring Sue/sales. She will let tour upstairs to 2nd floor suite. If 3rd floor tour is booked, they can access through second floor or use elevator to 3rd floor
(if you answer this call, press 9 on your phone keypad and it unlocks the door)
Access code for keypad on 2nd floor south side is 7777*
Access code for keypad on 2nd floor NORTH side is *77777
Access code for keypad on 3rd floor both sides is *77777
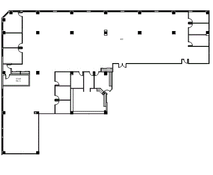
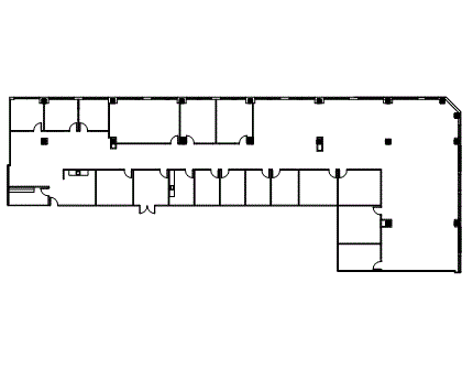
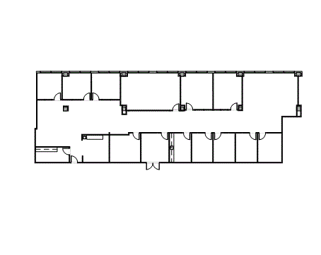
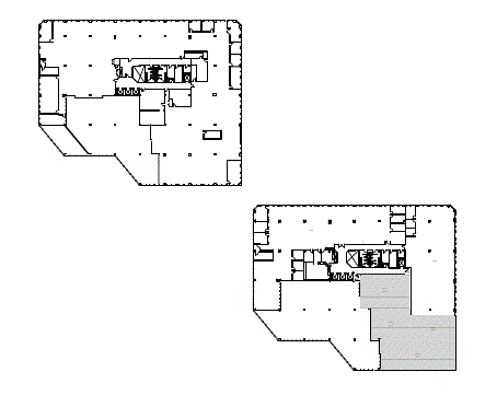
Floor Plans
- Rentable Square Feet 167
- Rentable Square Feet 118
- Rentable Square Feet 121
- Rentable Square Feet 146
- Rentable Square Feet 149
- Rentable Square Feet 191
- Rentable Square Feet 145
- Rentable Square Feet 125
- Rentable Square Feet 178
- Rentable Square Feet 113
- Rentable Square Feet 150
- Rentable Square Feet 130
- Rentable Square Feet 200
- Rentable Square Feet 135
- Rentable Square Feet 135
- Rentable Square Feet 106
- Rentable Square Feet 185
- Rentable Square Feet 211
- Rentable Square Feet 152
- Rentable Square Feet 174
- Rentable Square Feet 150
- Rentable Square Feet 153
- Rentable Square Feet 146
- Rentable Square Feet 145
- Rentable Square Feet 125
- Rentable Square Feet 146
- Rentable Square Feet 274
- Rentable Square Feet 150
- Rentable Square Feet 133
- Rentable Square Feet 150
- Rentable Square Feet 294
- Rentable Square Feet 160
- Rentable Square Feet 157
- Rentable Square Feet 127
- Rentable Square Feet 132
- Rentable Square Feet 96
- Rentable Square Feet 133
- Rentable Square Feet 96